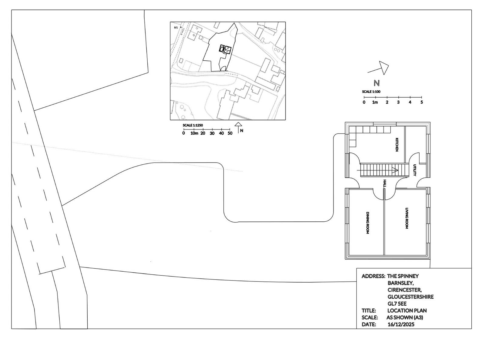
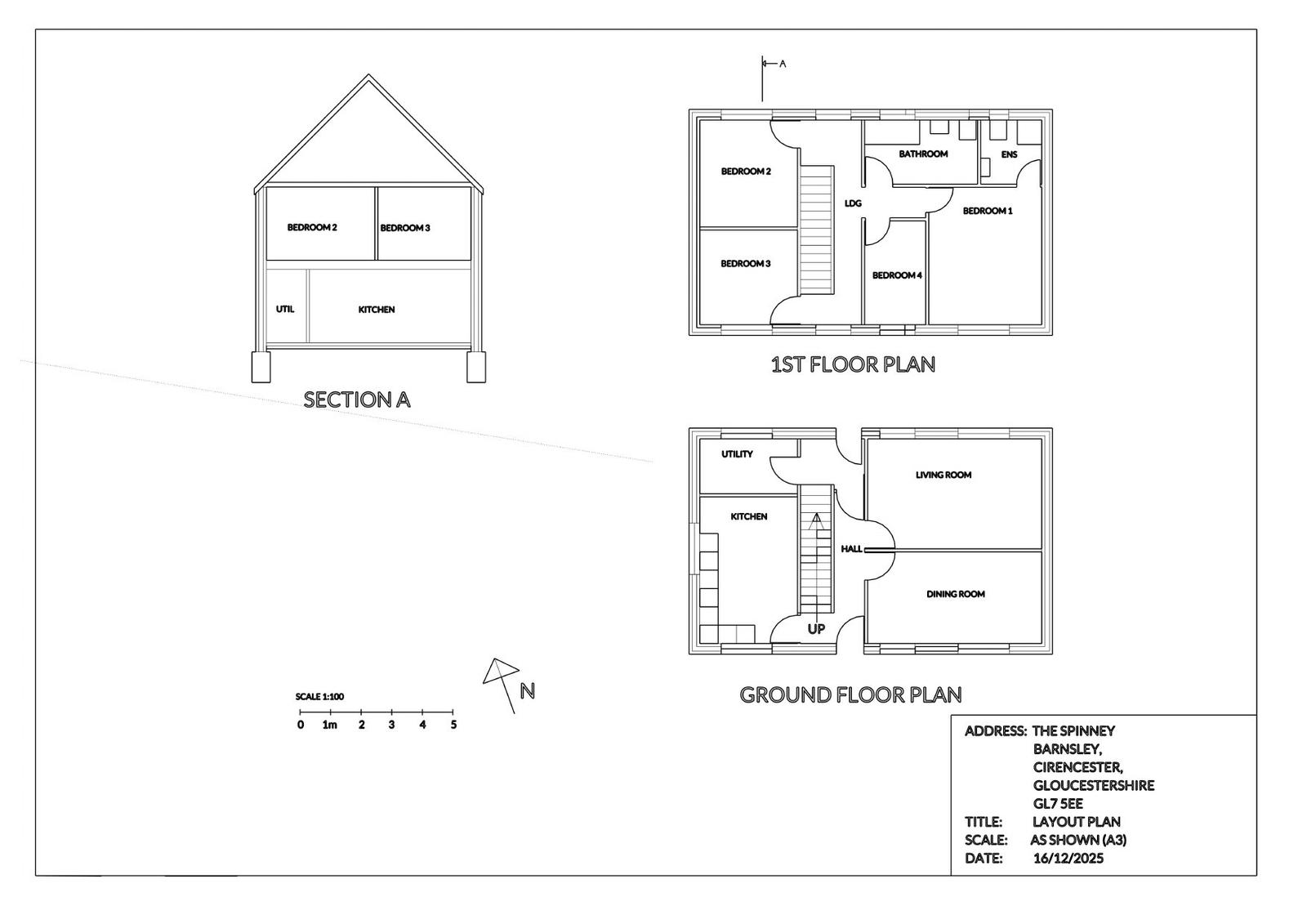
← Cotswold District Council

Status

Awaiting decision New housing
Received
23 Dec 2025
New homes
1

Full proposal

Erection of two-storey self-build dwelling

Documents

Drawing
Archived · Original link
Drawing
Archived · Original link
Drawing
Archived · Original link
Drawing
Archived · Original link
Drawing
Archived · Original link

Have your say

Your comment matters. Councils must consider every representation that raises material planning considerations.

Write a comment