← Cotswold District Council

Status

Awaiting decision House extension
Received
24 Dec 2025
New homes
0

Full proposal

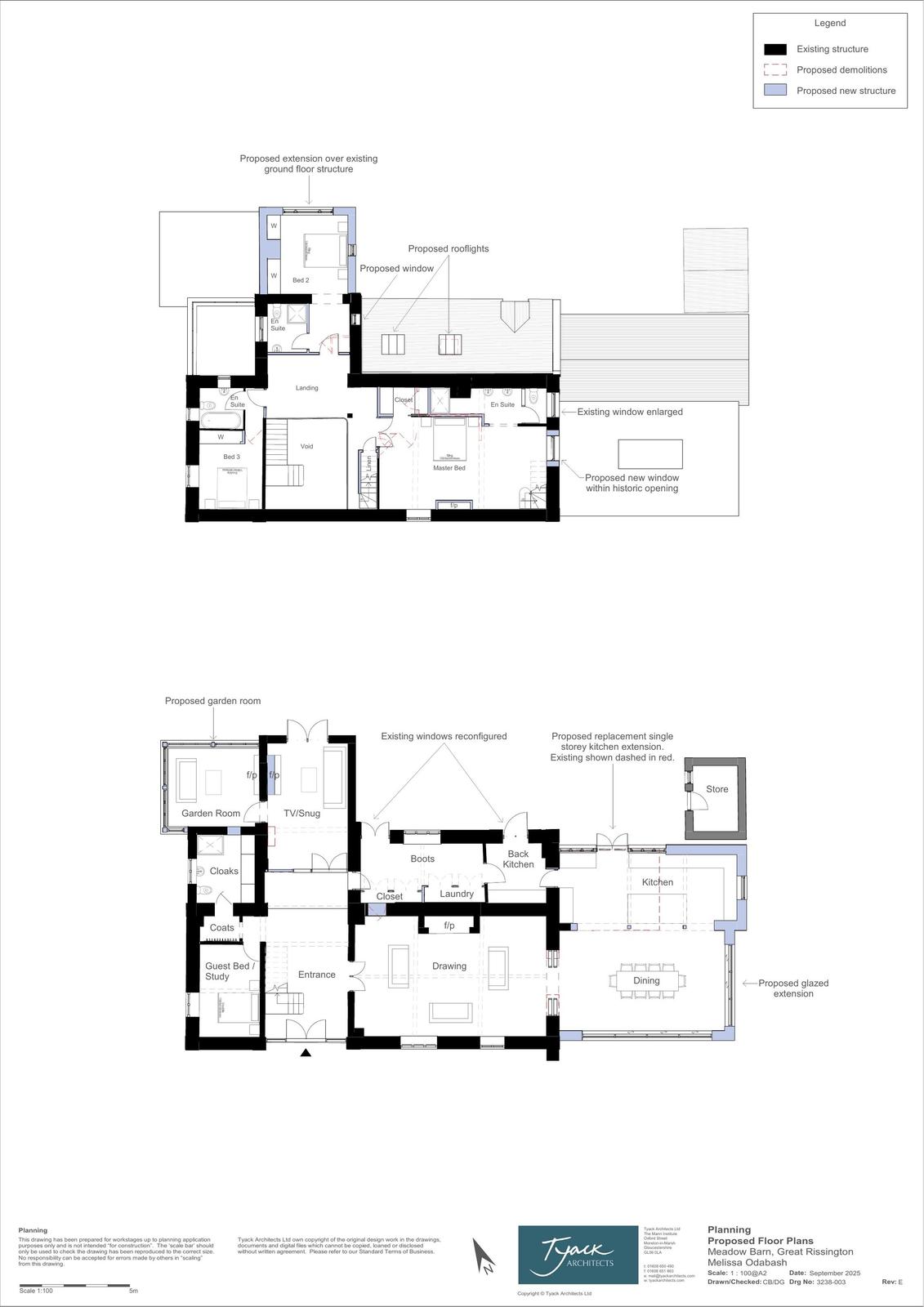
Erection of two single-storey extensions to the rear and an extension over existing ground floor structure with associated works. Demolition of existing extension

Have your say

Your comment matters. Councils must consider every representation that raises material planning considerations.

Write a comment