← Cotswold District Council

Status

Awaiting decision House extension
Received
24 Dec 2025
New homes
0

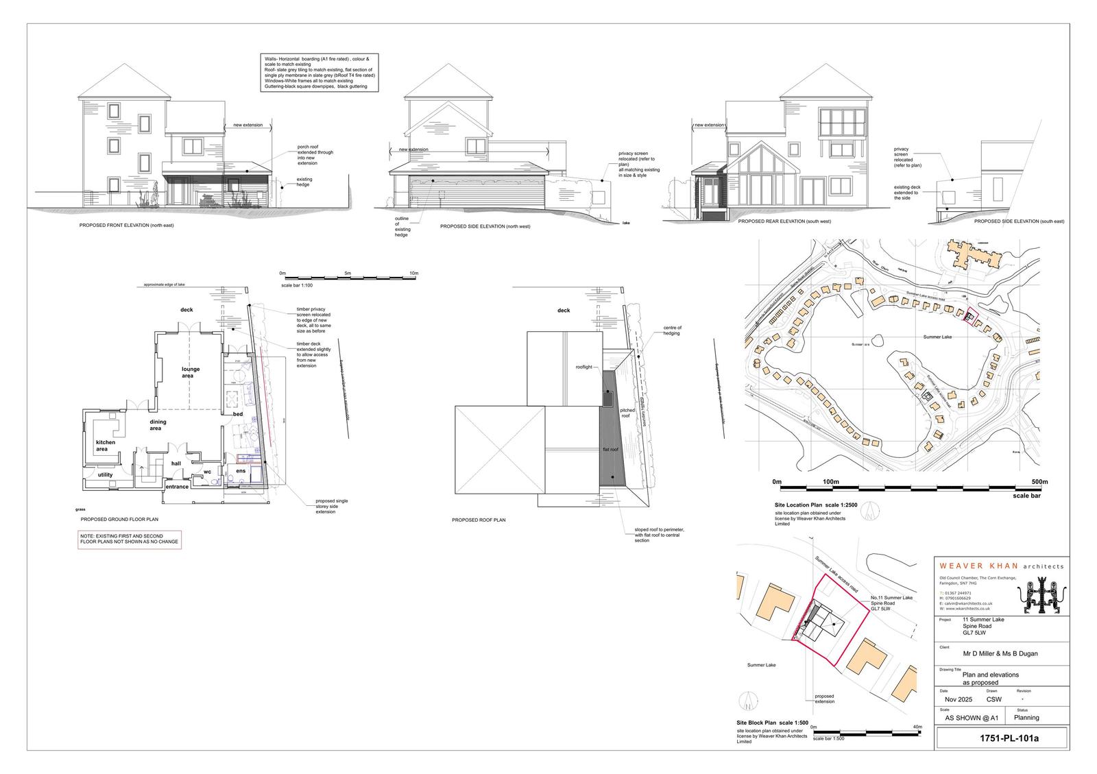
Full proposal

Erection of single-storey side extension with associated works

Have your say

Your comment matters. Councils must consider every representation that raises material planning considerations.

Write a comment