← Cotswold District Council

Status

Awaiting decision House extension
Received
13 Jan 2026
New homes
0

Full proposal

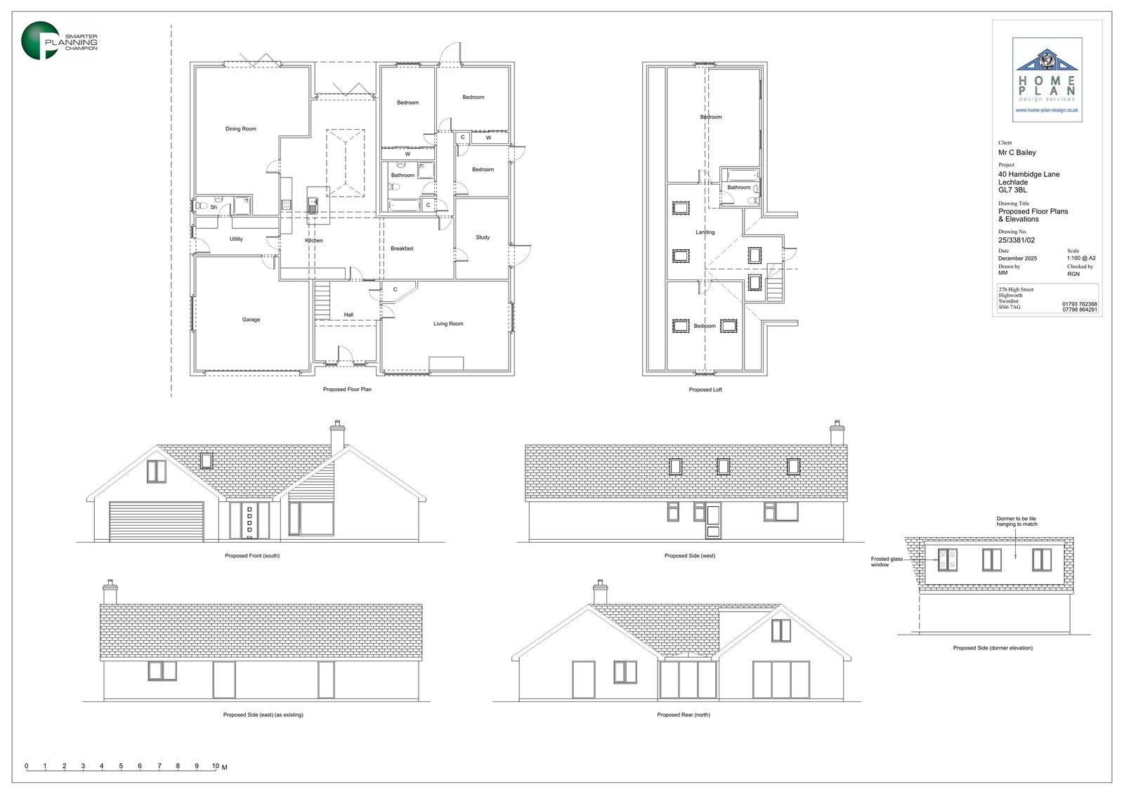
Erection of single storey side, rear and front extensions, loft conversion with rear dormer and associated works

Documents

Drawing
Archived · Original link
Drawing
Archived · Original link
Drawing
Archived · Original link
Drawing
Archived · Original link
Drawing
Archived · Original link

Have your say

Your comment matters. Councils must consider every representation that raises material planning considerations.

Write a comment