← Cotswold District Council

Status

Awaiting decision House extension
Received
15 Jan 2026
New homes
0

Full proposal

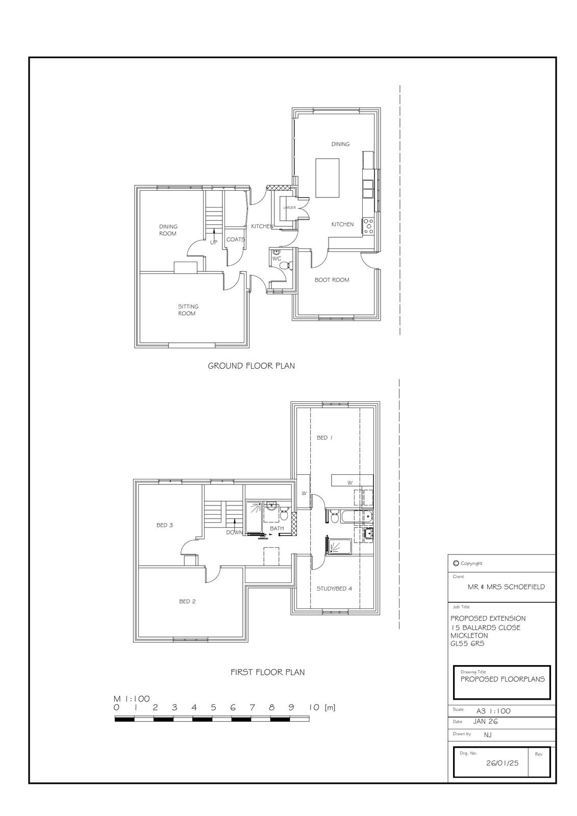
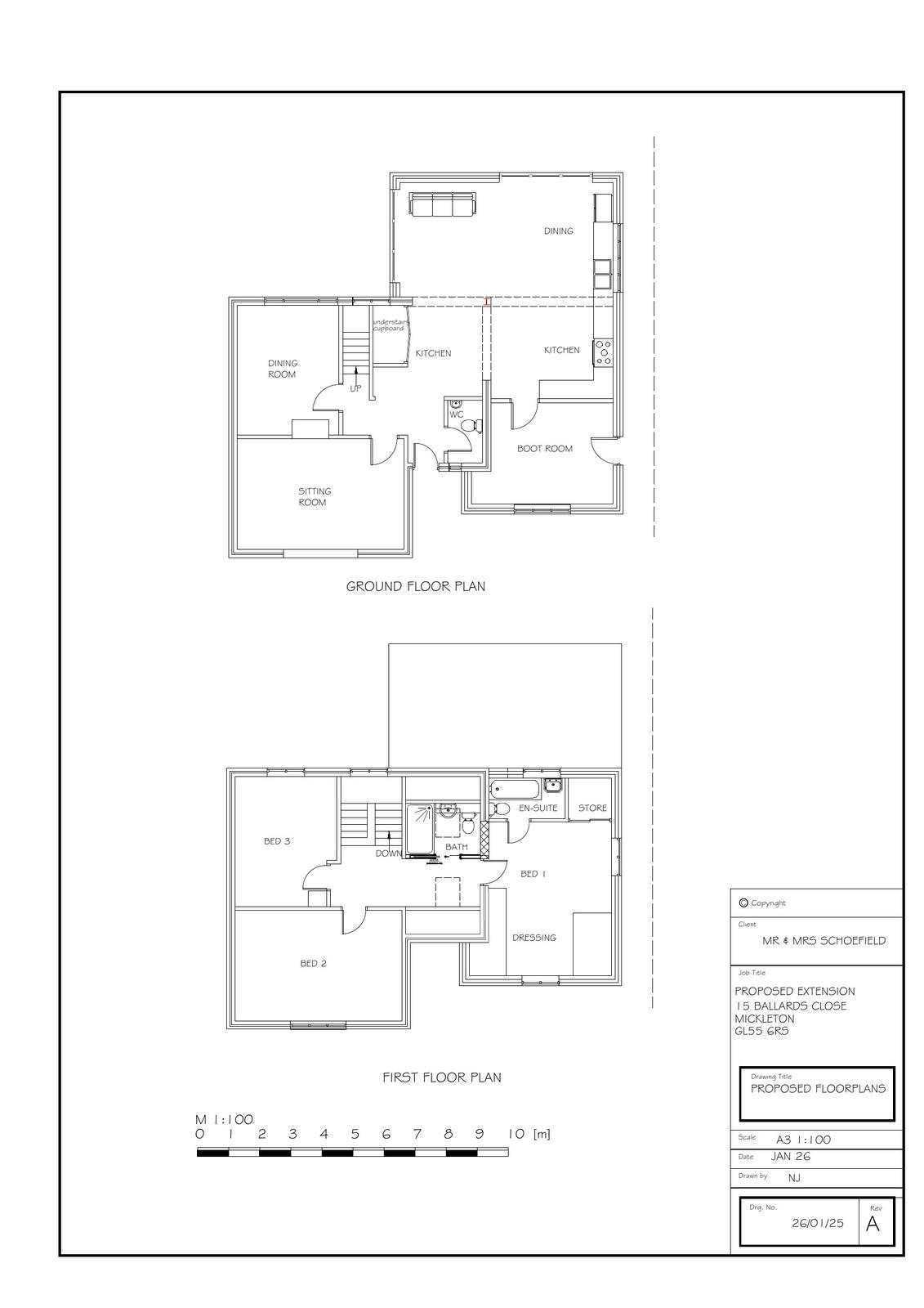
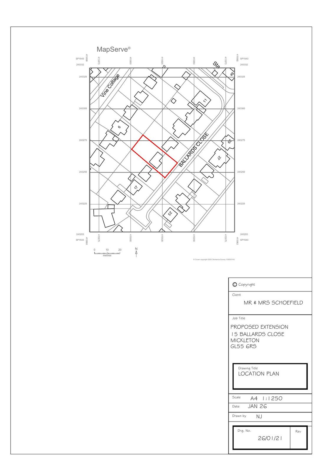
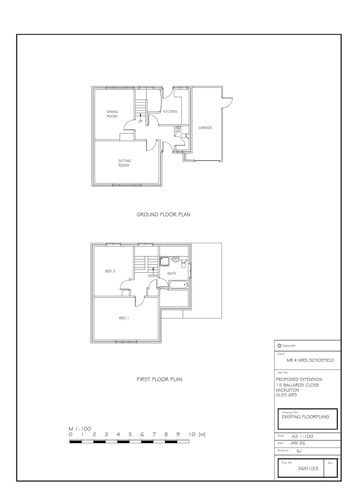
Erection of a two-storey and single-storey front and side extension, with a single-storey rear extension and associated works. Demolition of garage

Documents

Drawing
Archived · Original link
Drawing
Archived · Original link
Drawing
Archived · Original link
Drawing
Archived · Original link
Drawing
Archived · Original link
Superseded Document
Archived · Original link
Superseded Document
Archived · Original link

Have your say

Your comment matters. Councils must consider every representation that raises material planning considerations.

Write a comment