← Cotswold District Council

Status

Awaiting decision House extension
Received
15 Jan 2026
New homes
0

Full proposal

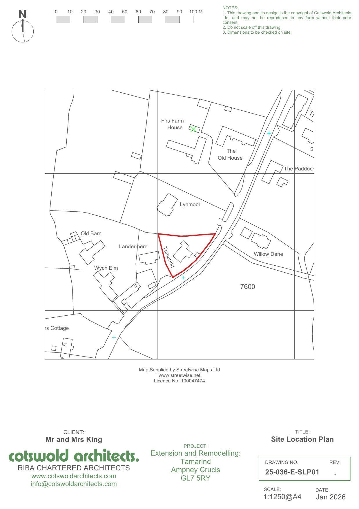
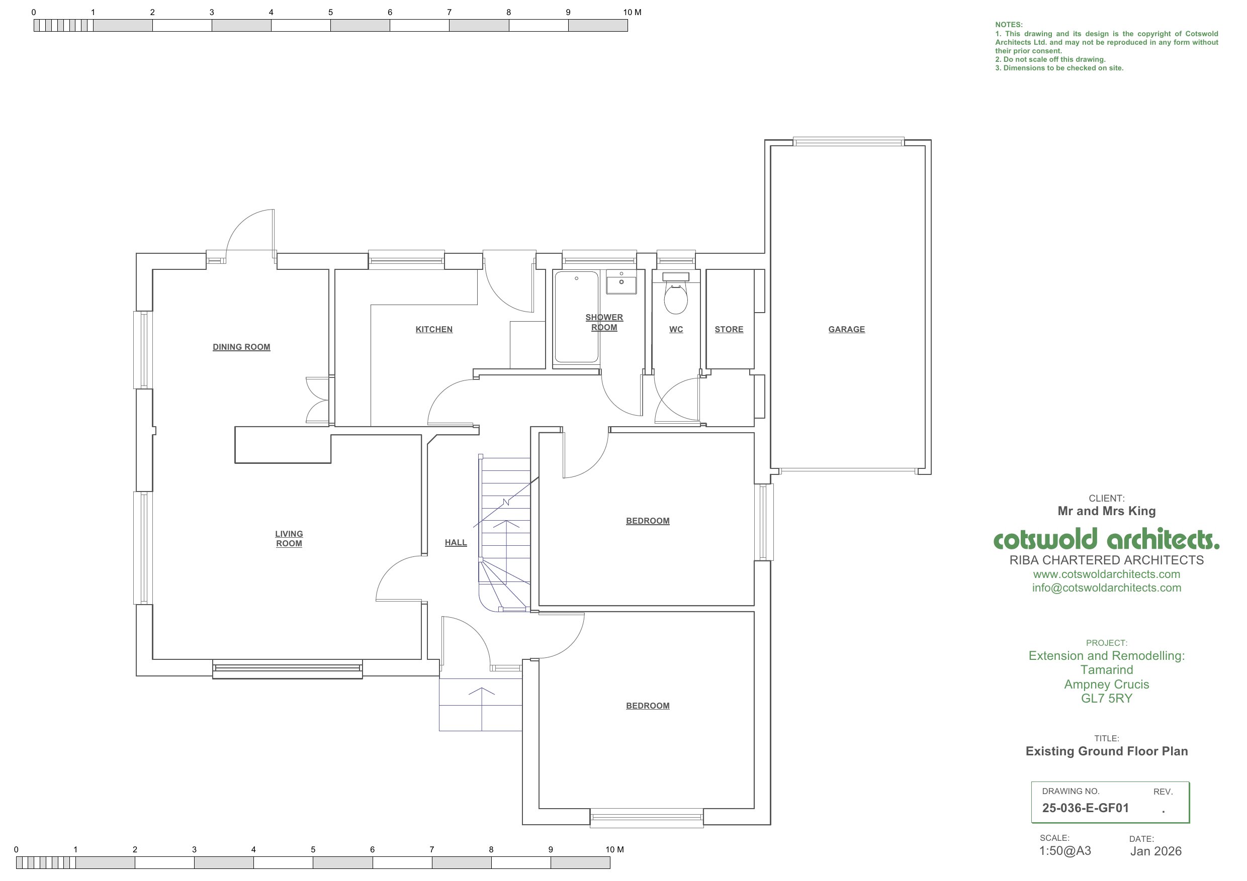
Erection of single storey rear extension, detached car port, open porch and garage conversion with associated works

Have your say

Your comment matters. Councils must consider every representation that raises material planning considerations.

Write a comment