← Cotswold District Council

Status

Awaiting decision New housing
Received
Last month
New homes
7

Full proposal

Erection of 7No new dwellings, with associated works

Documents

ADEY
Support Comment
Not yet archived · Original link
Application Form
Application Form
Not yet archived · Original link
BIODIVERSITY METRIC CALCULATION TOOL
BNG Metric
Not yet archived · Original link
BIODIVERSITY NET GAIN STATEMENT AND ASSESSMENT
Report
Not yet archived · Original link
CIL FORM 1
Application Form
Not yet archived · Original link
CRAIG
Objection Comment
Not yet archived · Original link
ECOLOGICAL IMPACT ASSESSMENT
Report
Not yet archived · Original link
ENERGY AND SUSTAINABILITY STATEMENT
Report
Not yet archived · Original link
EVANS
Objection Comment
Not yet archived · Original link
Drawing
Archived · Original link
FITZHERBERT
Objection Comment
Not yet archived · Original link
FLOOD RISK ASSESSMENT
Report
Not yet archived · Original link
FLOOD RISK OFFICER
Consultee Comment
Not yet archived · Original link
GALE
General Comment
Not yet archived · Original link
LAURA H
Objection Comment
Not yet archived · Original link
LOCATION PLAN
Drawing
Not yet archived · Original link
LOTS 5 & 6 - TYPE D - PROPOSED ELEVATIONS
Drawing
Not yet archived · Original link
PHILLIPS
Support Comment
Not yet archived · Original link
PLANNING STATEMENT
Report
Not yet archived · Original link
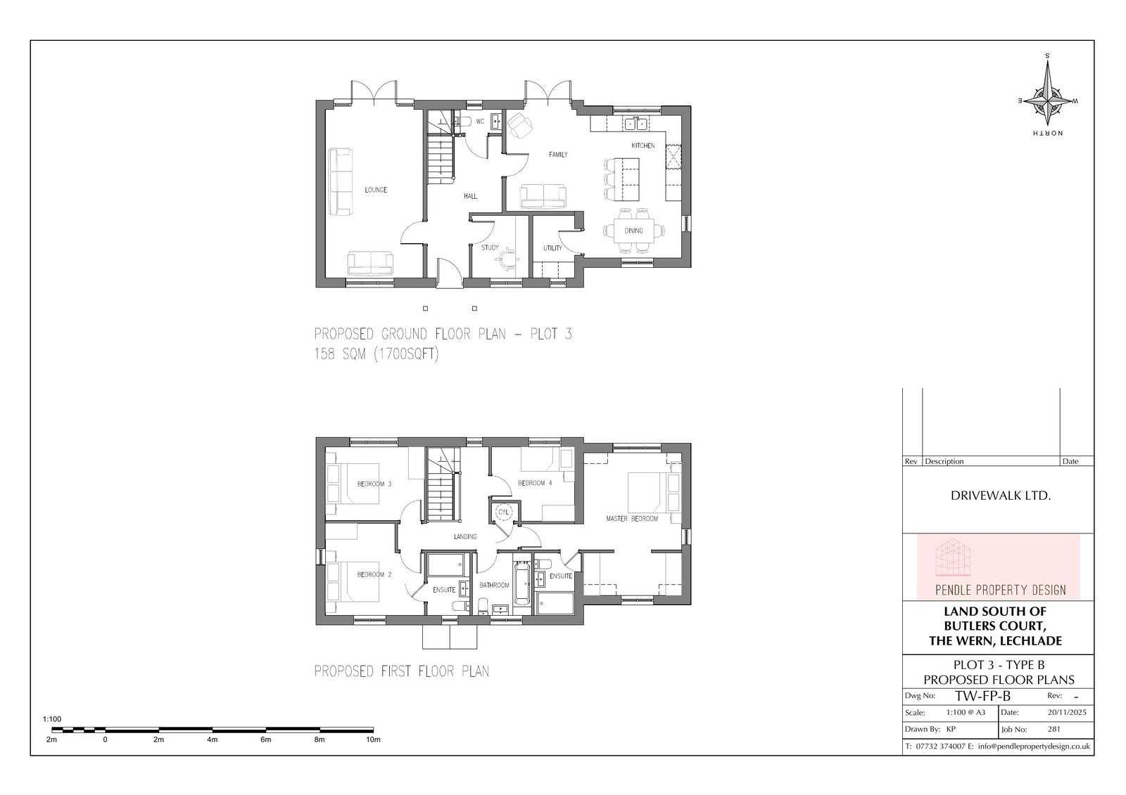
PLOT 3 - TYPE B - PROPOSED ELEVATIONS
Drawing
Not yet archived · Original link
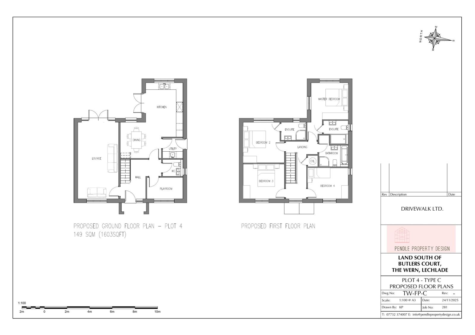
PLOT 4 - TYPE C - PROPOSED ELEVATIONS
Drawing
Not yet archived · Original link
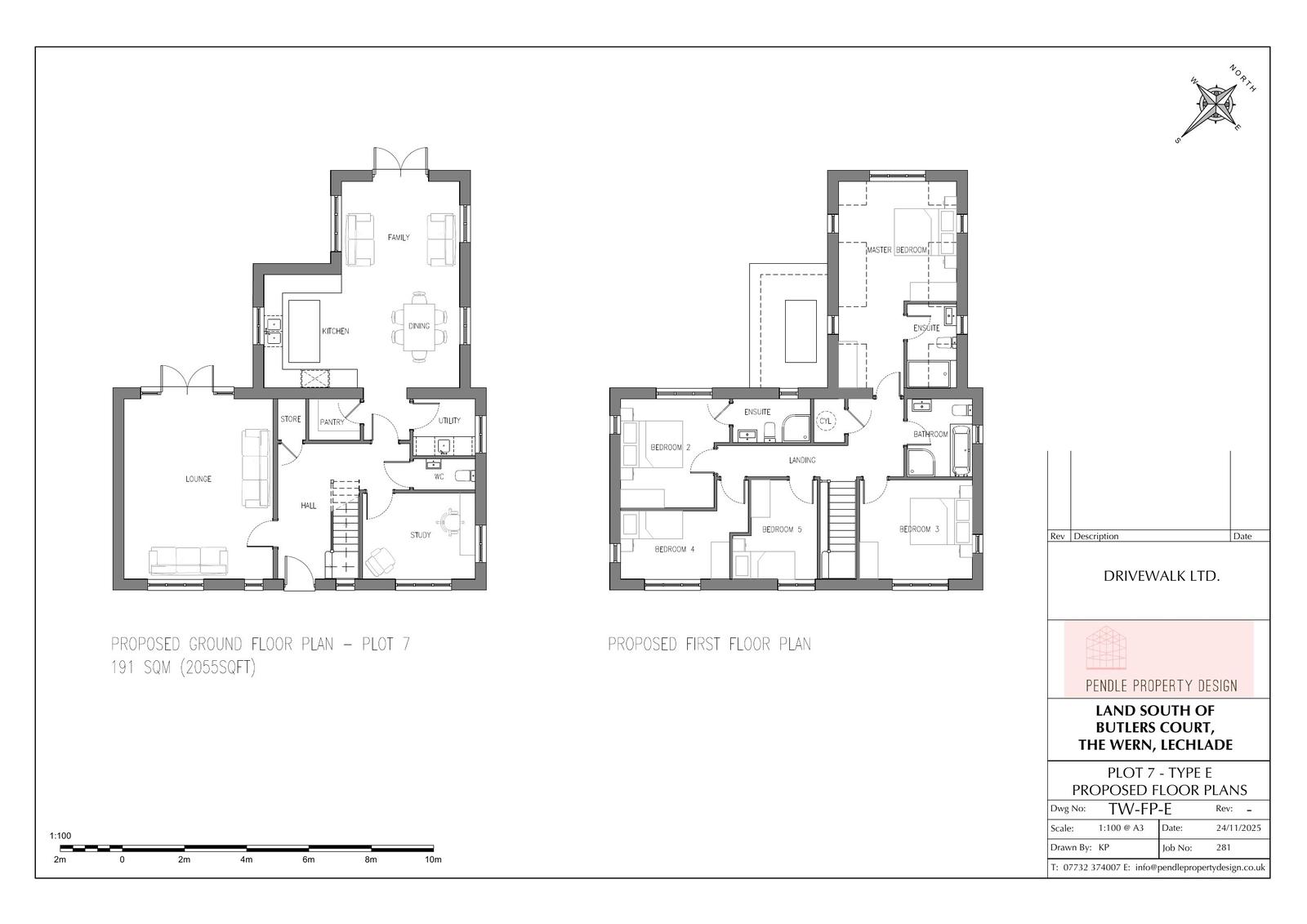
PLOT 7 - TYPE E - PROPOSED ELEVATIONS
Drawing
Not yet archived · Original link
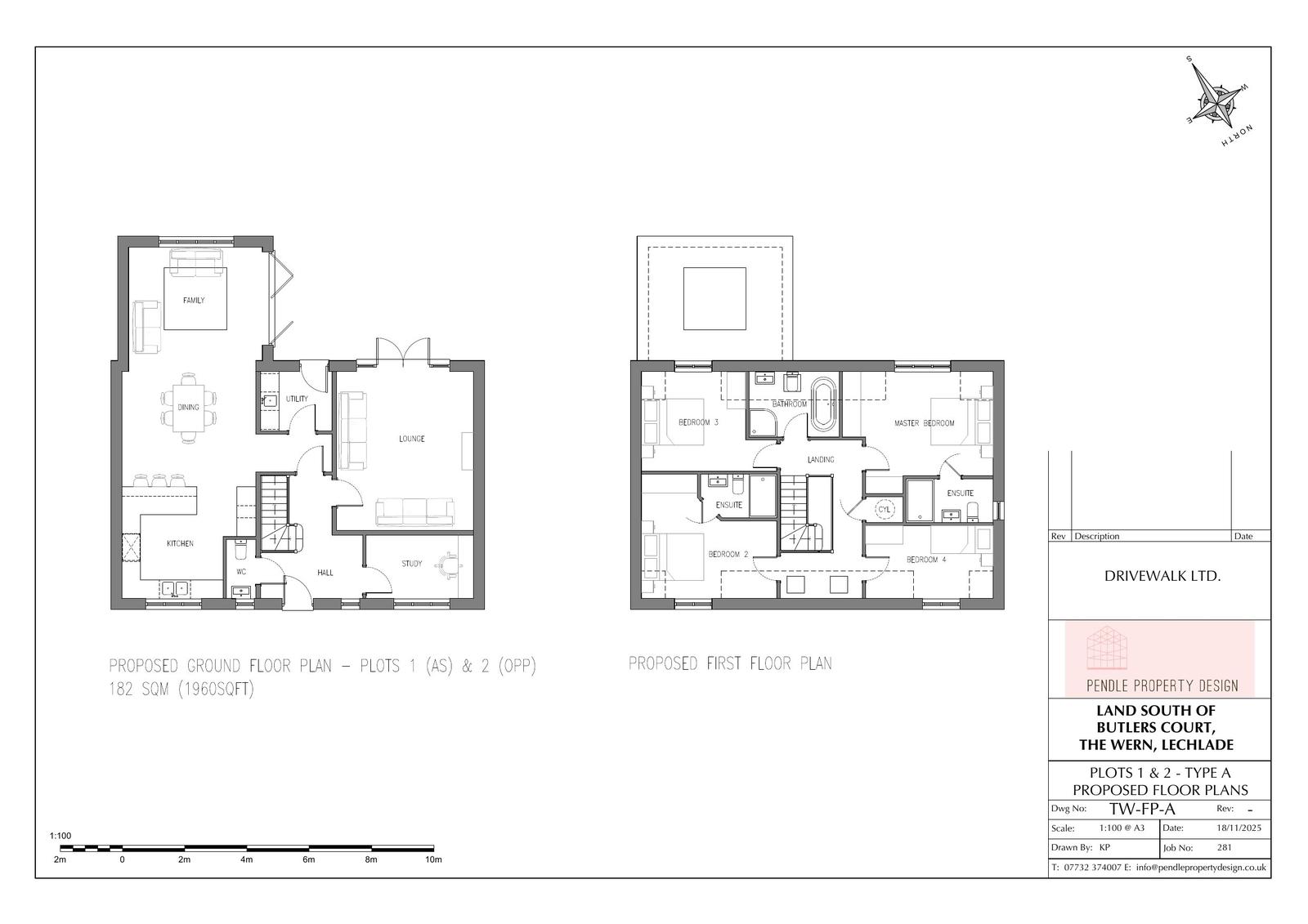
PLOTS 1 & 2 - TYPE A - PROPOSED ELEVATIONS
Drawing
Not yet archived · Original link
PLOTS 5 & 6 - TYPE D - PROPOSED FLOOR PLAN
Drawing
Not yet archived · Original link
PROPOSED EXTERNAL MATERIALS PLANS
Drawing
Not yet archived · Original link
Drawing
Archived · Original link
THAMES WATER
Consultee Comment
Not yet archived · Original link
WARD
Objection Comment
Not yet archived · Original link

Have your say

Your comment matters. Councils must consider every representation that raises material planning considerations.

Write a comment