← Cotswold District Council

Status

Awaiting decision Commercial
Received
Last month
New homes
0

Full proposal

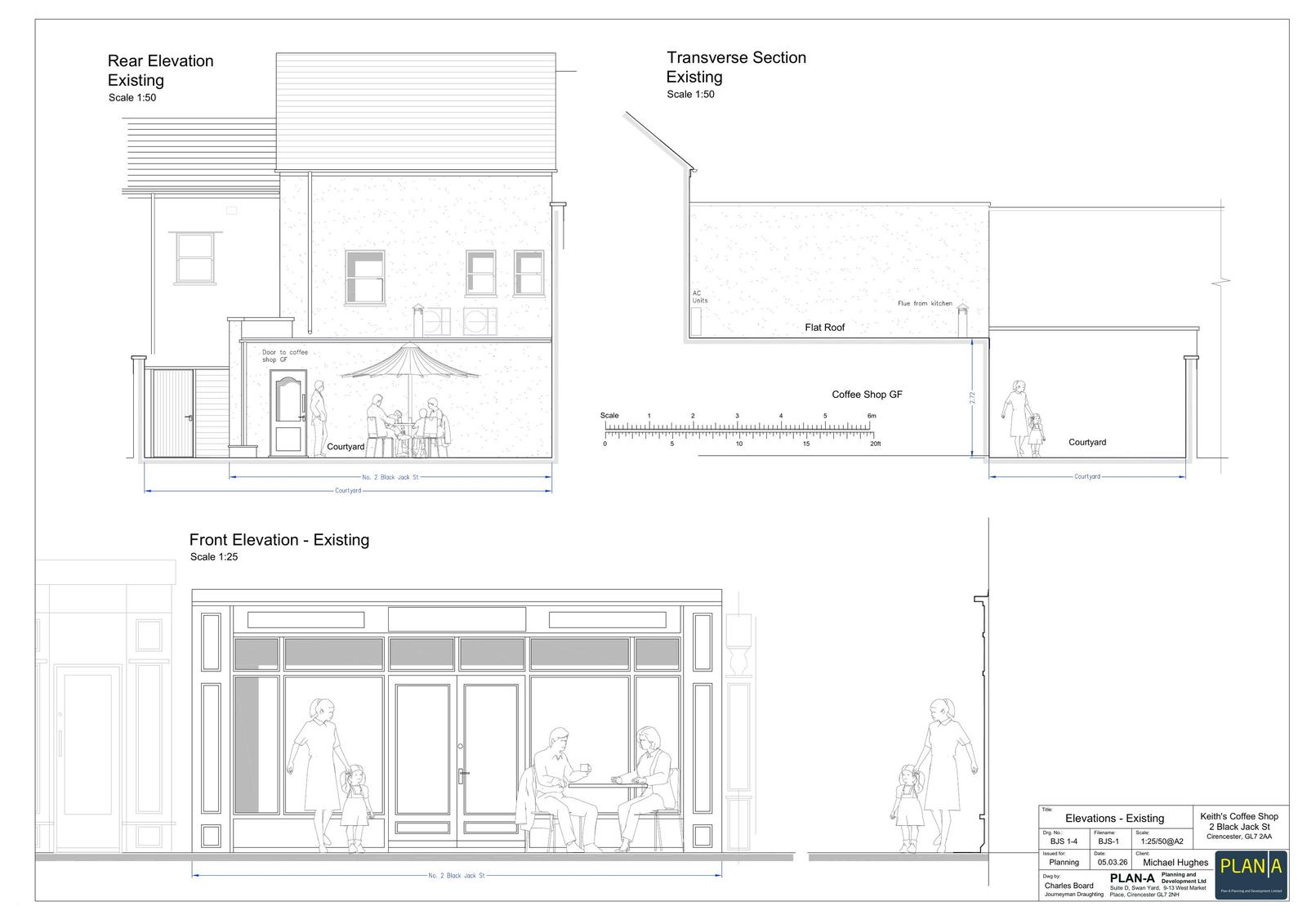
Erection of external rear staircase and alterations to existing flat roof to facilitate additional seating area, and installation of awning to front elevation with associated works

Have your say

Your comment matters. Councils must consider every representation that raises material planning considerations.

Write a comment