← Cotswold District Council

Status

Awaiting decision Listed building
Received
Last month
New homes
0

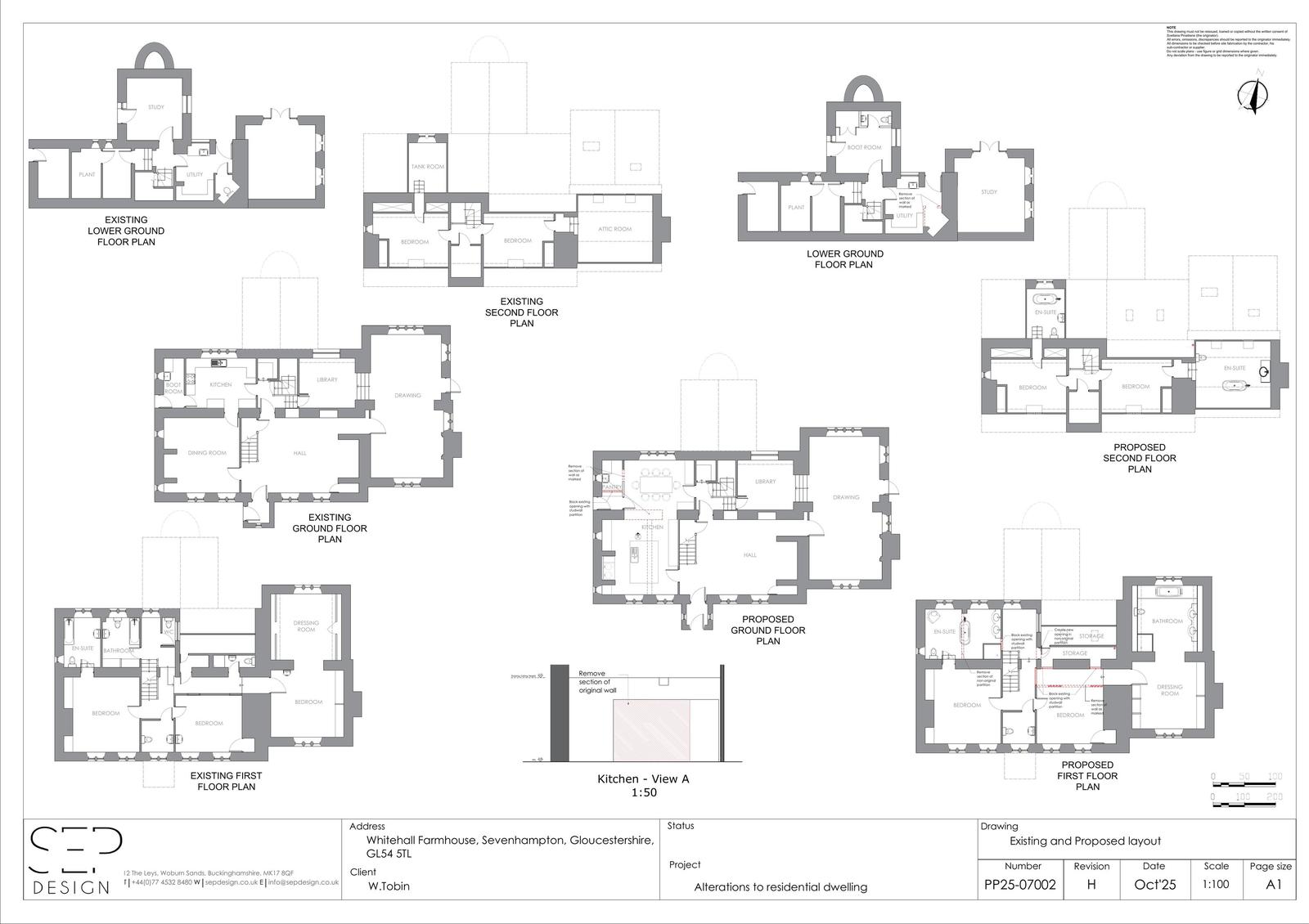
Full proposal

Alterations to the existing front porch including closure of the side doorway opening, formation of a new door opening to the front elevation, and the resitting and installation of porch windows to match existing. Internal works across the lower ground, ground, first and top floors include removal of later stud partitions and lightweight block walls, partial removal of a modern structural wall, reinstatement and blocking up of openings, creation of new door openings within modern extension areas, erection of new stud partitions, and installation of bathrooms and ensuites with associated plumbing

Have your say

Your comment matters. Councils must consider every representation that raises material planning considerations.

Write a comment