26/00659/FUL
Cotswold District Council
Status
Awaiting decision
House extension
Received
Last month
New homes
0
Full proposal
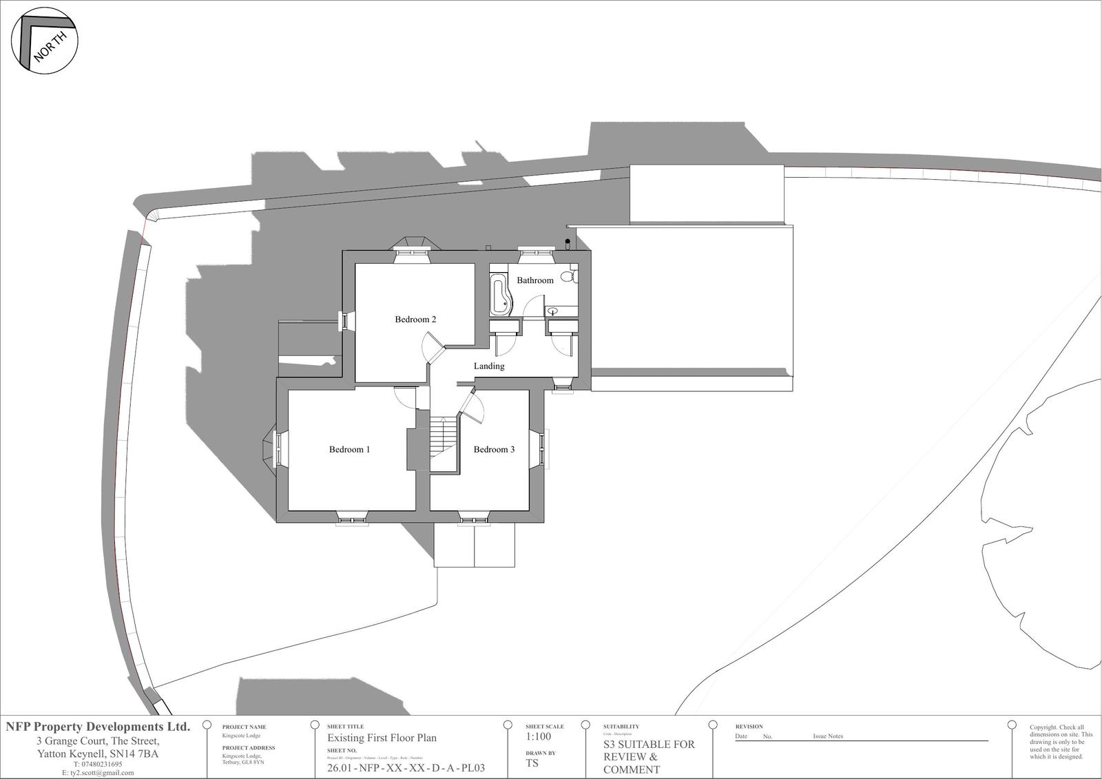
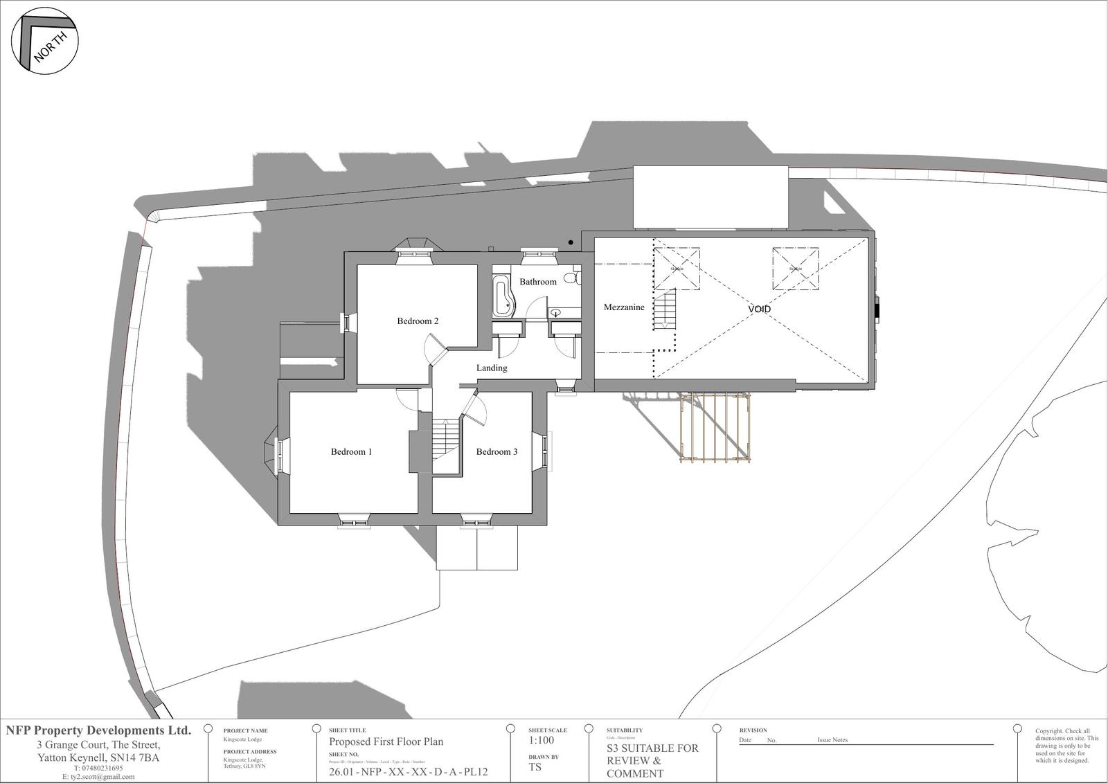
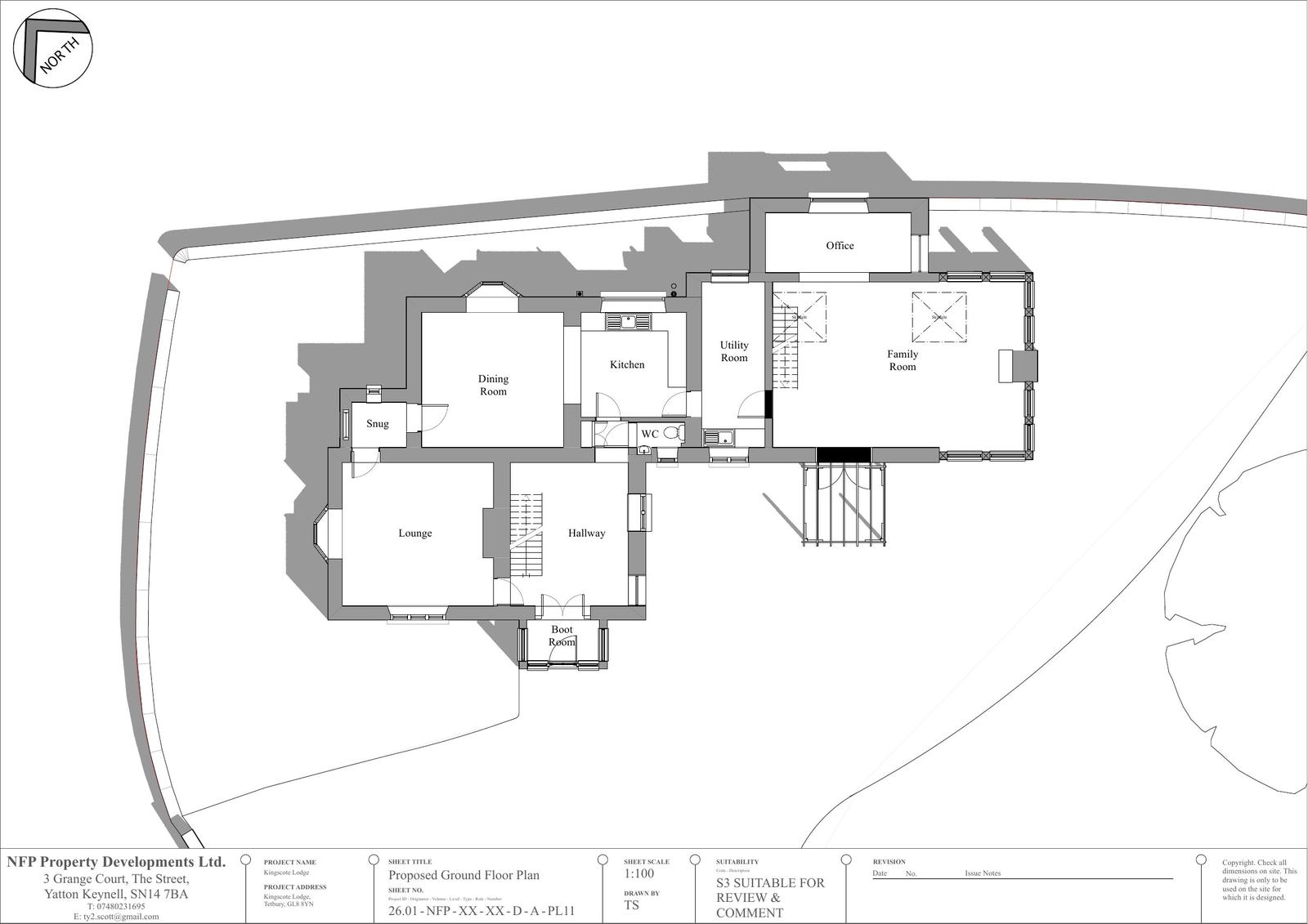
Erection of a single storey side extension, installation of an attached timber pergola, conversion of the garage with creation of a mezzanine level, and roof alterations with associated works
Documents
Have your say
Your comment matters. Councils must consider every representation that raises material planning considerations.