← Cotswold District Council

Status

Awaiting decision Change of use
Received
28 days ago
New homes
1

Full proposal

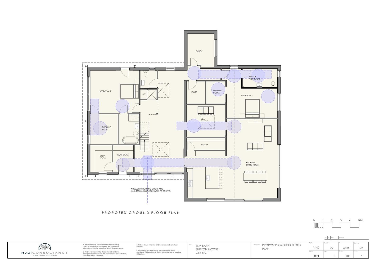
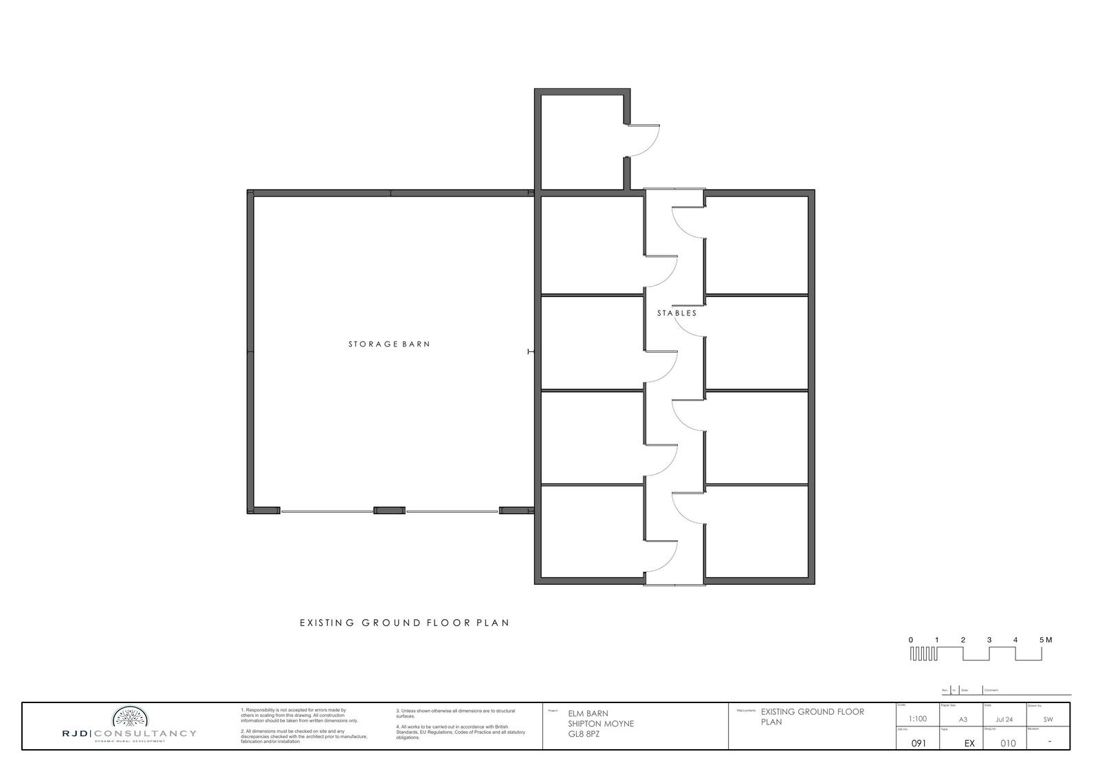
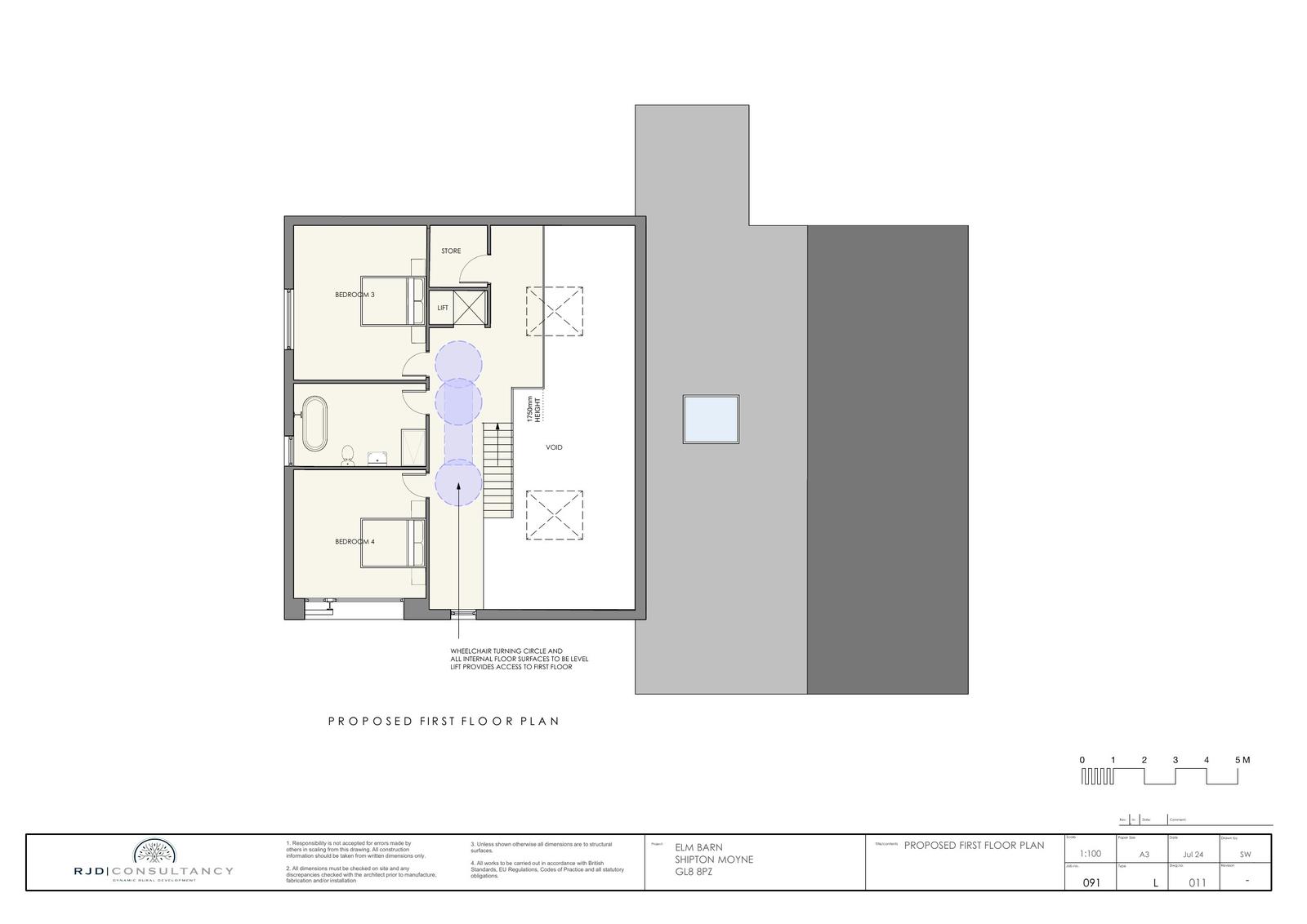
Conversion of existing rural building to self-build dwelling

Have your say

Your comment matters. Councils must consider every representation that raises material planning considerations.

Write a comment