← Coventry City Council

Status

Pending House extension
Received
Not recorded
New homes
0

Full proposal

Single storey side extension over existing garage, loft conversion with dormer extension

Documents

ApplicationFormRedacted.pdf
Application form (redacted)
Not yet archived · Original link
Decision Notice
Decision notice
Not yet archived · Original link
Existing Elevations DWG PL120
Elevations
Not yet archived · Original link
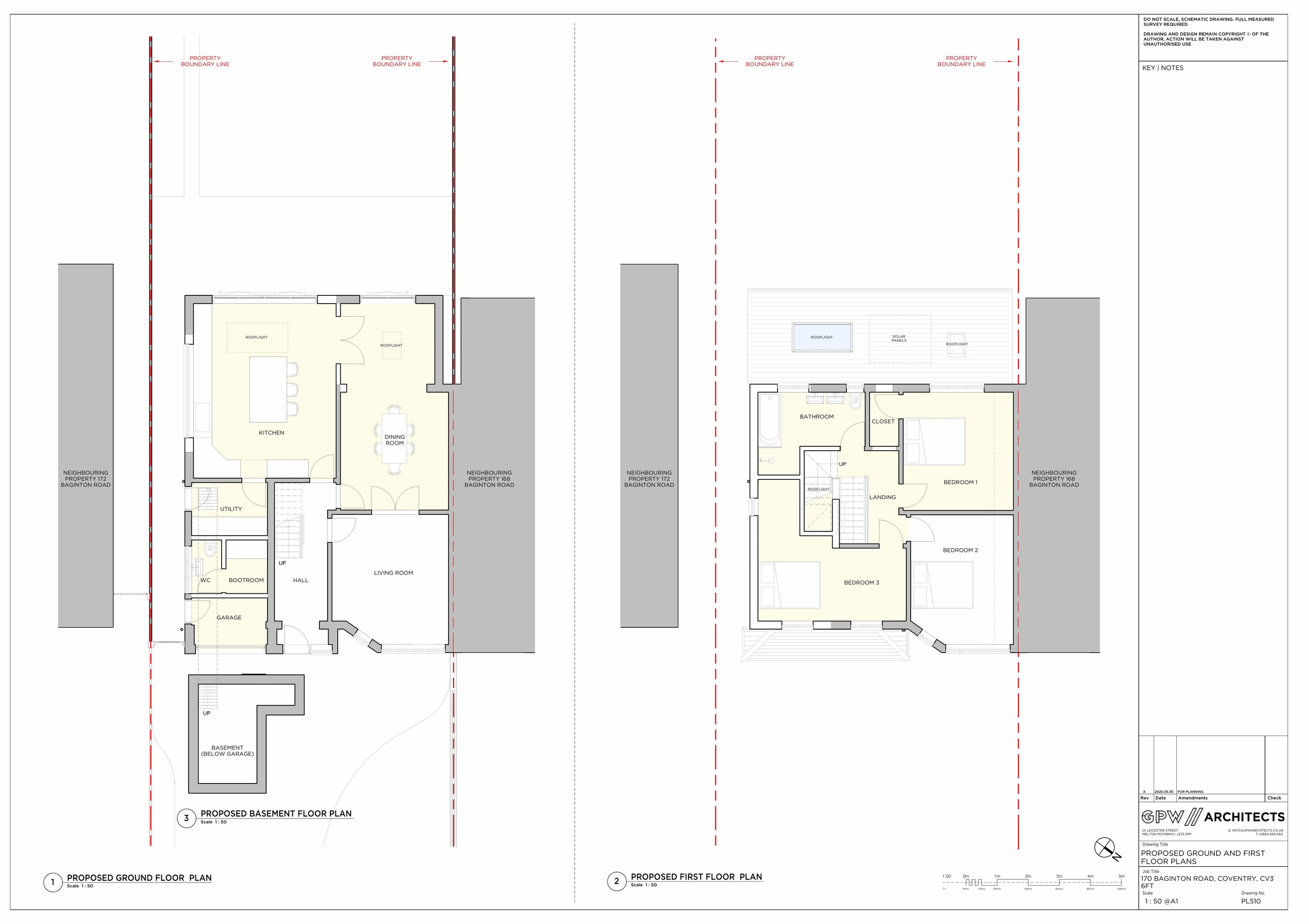
Existing Floor Plans DWG PL110
Floor plans
Not yet archived · Original link
Existing Loft Floor Plan DWG PL111
Floor plans
Not yet archived · Original link
Location Plan DWG PL000
Location plan
Not yet archived · Original link
Officer Report
Delegated report
Not yet archived · Original link
Proposed External Elevations DWG PL520
Elevations
Not yet archived · Original link
Proposed Loft Floor Plan DWG PL511
Floor plans
Not yet archived · Original link
Superseded - Proposed Elevations DWG PL520
Elevations
Not yet archived · Original link
Superseded - Proposed Loft Floor Plan DWG PL511
Floor plans
Not yet archived · Original link

Have your say

Your comment matters. Councils must consider every representation that raises material planning considerations.

Write a comment