← Coventry City Council

Status

Pending Commercial
Received
Not recorded
New homes
0

Summary

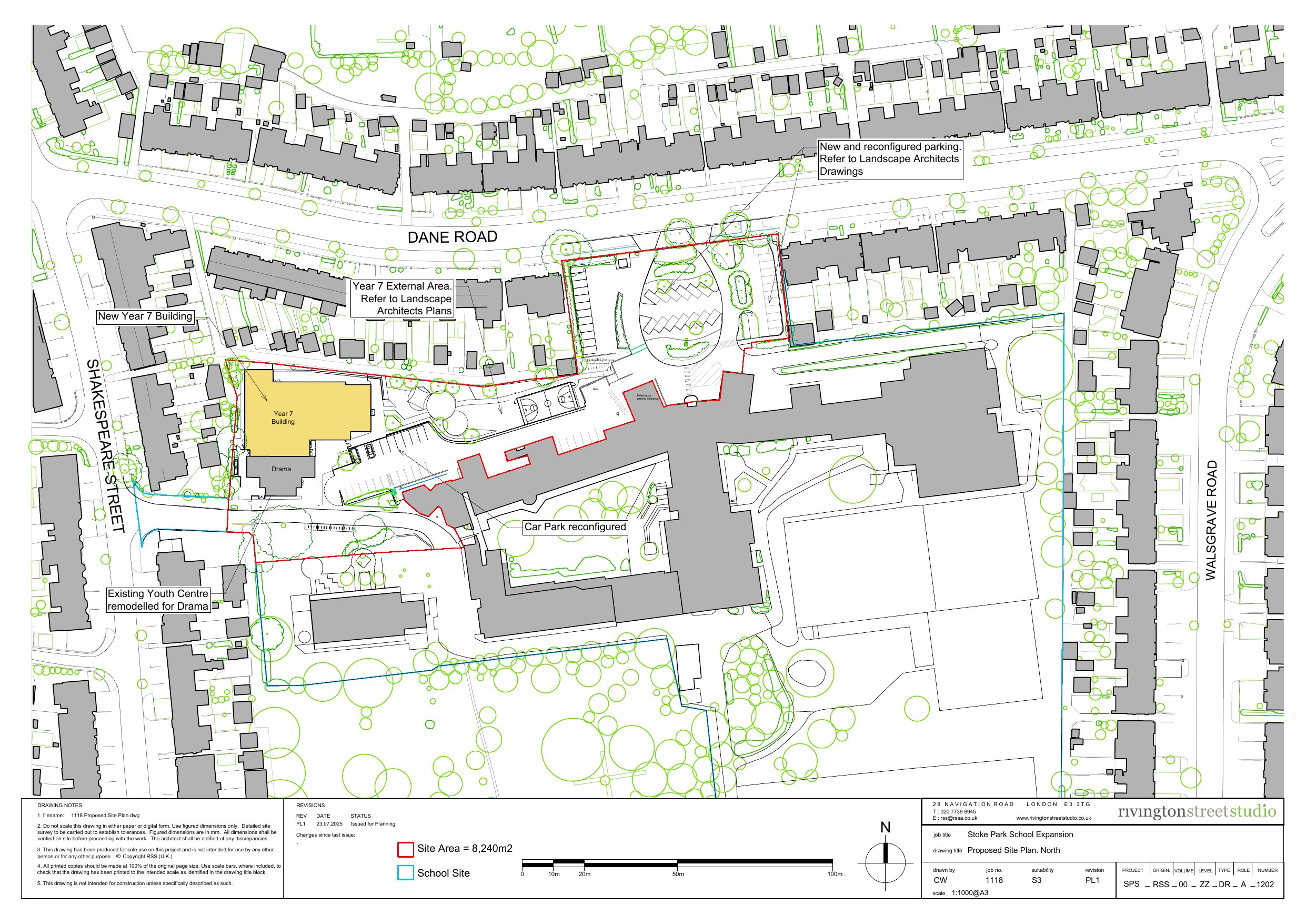
Erection of single-storey teaching block with landscaping, access improvements and minor demolition.

Full proposal

Erection of single storey teaching block , external works including landscaping, access improvements and minor demolition

Documents

Air Quality Assessment
Air quality assessment
Not yet archived · Original link
Application From
Application form (redacted)
Not yet archived · Original link
Archaeological Heritage Assessment
Archaeological assessment
Not yet archived · Original link
Biodiversity Metric
Biodiversity Metric Calculation
Not yet archived · Original link
Biodiversity Statement & Metric Assessment
Biodiversity impact assessment
Not yet archived · Original link
Decision notice
Decision notice
Not yet archived · Original link
Design and Access Statement
Design and access statement
Not yet archived · Original link
Drawing Register
Supporting information
Not yet archived · Original link
Enabling Works Plan DWG 1110 Rev PL1
Detail drawing
Not yet archived · Original link
Enabling Works Plan DWG 1111 Rev PL1
Detail drawing
Not yet archived · Original link
Energy Statement
Energy statement
Not yet archived · Original link
Existing Elevations DWG 1010 Rev PL1
Elevations
Not yet archived · Original link
Existing Elevations DWG 1011 Rev PL1
Elevations
Not yet archived · Original link
Existing Section AA DWG 1005 Rev PL1
Section plans
Not yet archived · Original link
Existing Youth Centre Plan DWG 1004 Rev PL1
Site plans
Not yet archived · Original link
Exploratory Hole Plan
Detail drawing
Not yet archived · Original link
External Visual DWG 8001 Rev PL1
Detail drawing
Not yet archived · Original link
External Visual DWG 8002 Rev PL1
Detail drawing
Not yet archived · Original link
External Visual DWG 8003 Rev PL1
Detail drawing
Not yet archived · Original link
Foundation Inspection Log
Supporting information
Not yet archived · Original link
Landscape Masterplan DWG SPS MEL 00 XX DR L 0001 D06
Landscaping plan/details
Not yet archived · Original link
Landscape Masterplan DWG SPS MEL 00 XX DR L 0001 Rev D04
Landscaping plan/details
Not yet archived · Original link
Landscape Masterplan DWG SPS MEL 00 XX DR L 0002 Rev D03
Landscaping plan/details
Not yet archived · Original link
Landscape Masterplan DWG SPS MEL 00 XX DR L 002 D06
Landscaping plan/details
Not yet archived · Original link
Location Plan DWG 0501 Rev PL1
Location plan
Not yet archived · Original link
Noise Impact Assessment
Noise impact assessment
Not yet archived · Original link
Noise Impact Assessment
Noise impact assessment
Not yet archived · Original link
Officer Report PDF
Delegated report
Not yet archived · Original link
Planning Statement
Planning statement
Not yet archived · Original link
Preliminary Bat Roost Assessment
Bat survey
Not yet archived · Original link
Preliminary Ecological Appraisal
Biodiversity/Ecology survey and report
Not yet archived · Original link
Proposed Elevations DWG 1410 Rev PL1
Elevations
Not yet archived · Original link
Proposed Elevations DWG 1411 Rev PL1
Elevations
Not yet archived · Original link
Proposed External Lighting
Supporting information
Not yet archived · Original link
Proposed Landscape Details
Landscaping plan/details
Not yet archived · Original link
Proposed Plan DWG 1210 PL2
Site plans
Not yet archived · Original link
Proposed Plan DWG 1220 DWG PL1
Site plans
Not yet archived · Original link
Proposed Plan with External Area DWG 1210 Rev PL1
Detail drawing
Not yet archived · Original link
Proposed Roof Plan DWG 1230 Rev PL1
Roof plans
Not yet archived · Original link
Proposed Section AA DWG 1310 Rev PL1
Section plans
Not yet archived · Original link
Soil Test
Supporting information
Not yet archived · Original link
Surface Water Management Strategy
Supporting information
Not yet archived · Original link
Transport Assessment
Transport assessment
Not yet archived · Original link
Travel Plan
Travel plan
Not yet archived · Original link
Tree Constraints, Impact Assessment & Tree Protection Method Statement
Tree survey/arboricultural implications
Not yet archived · Original link

Have your say

Your comment matters. Councils must consider every representation that raises material planning considerations.

Write a comment