← Coventry City Council

Status

Pending Change of use
Received
Not recorded
New homes
1

Full proposal

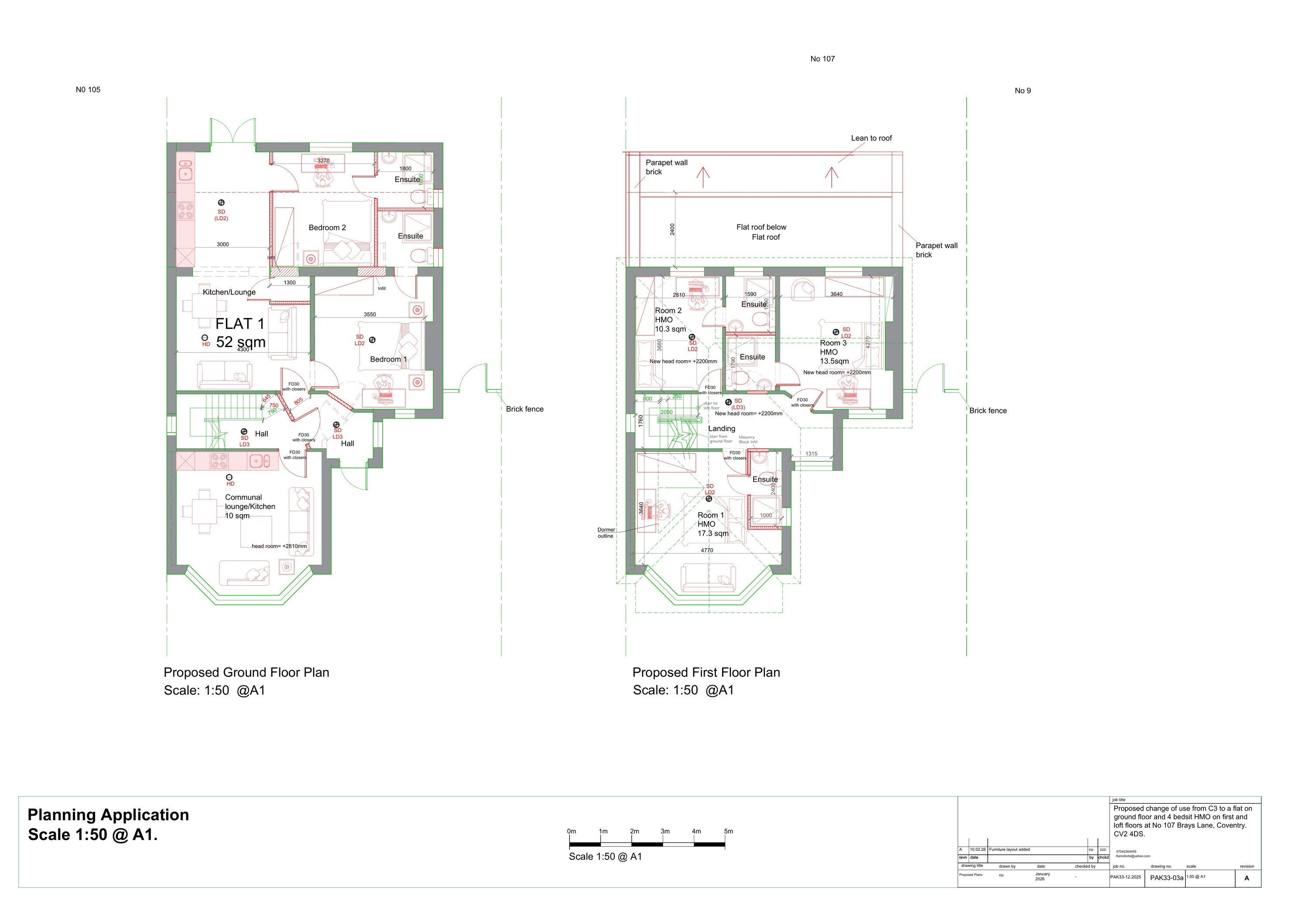
Change of use and subdivision of existing dwellinghouse (C3) to form one No. 2-bed flat (C3) and 4-bedroom House in Multiple Occupation (C4) and erection of single storey rear extension (part-retrospective) and external modifications to...

Documents

ApplicationFormRedacted.pdf
Application form (redacted)
Not yet archived · Original link
Block Plan DWG 00A
Block plan
Not yet archived · Original link
Design and Access Statement
Design and access statement
Not yet archived · Original link
Existing Elevations DWG 04A
Elevations
Not yet archived · Original link
Existing Floor Plan DWG 01
Floor plans
Not yet archived · Original link
HMO Concentration Survey
Supporting information
Not yet archived · Original link
Location Plan
Location plan
Not yet archived · Original link
Parking Survey
Parking survey
Not yet archived · Original link
Proposed Elevations DWG 05A
Elevations
Not yet archived · Original link
Proposed Ground and First Floor Plan DWG PAK33-03a-A
Floor plans
Not yet archived · Original link
Proposed Loft Plan DWG PAK33-02a-A
Floor plans
Not yet archived · Original link

Have your say

Your comment matters. Councils must consider every representation that raises material planning considerations.

Write a comment