CR/2025/0725/FUL
Crawley Borough Council
Status
Awaiting Decision
House extension
Received
Last month
New homes
0
Full proposal
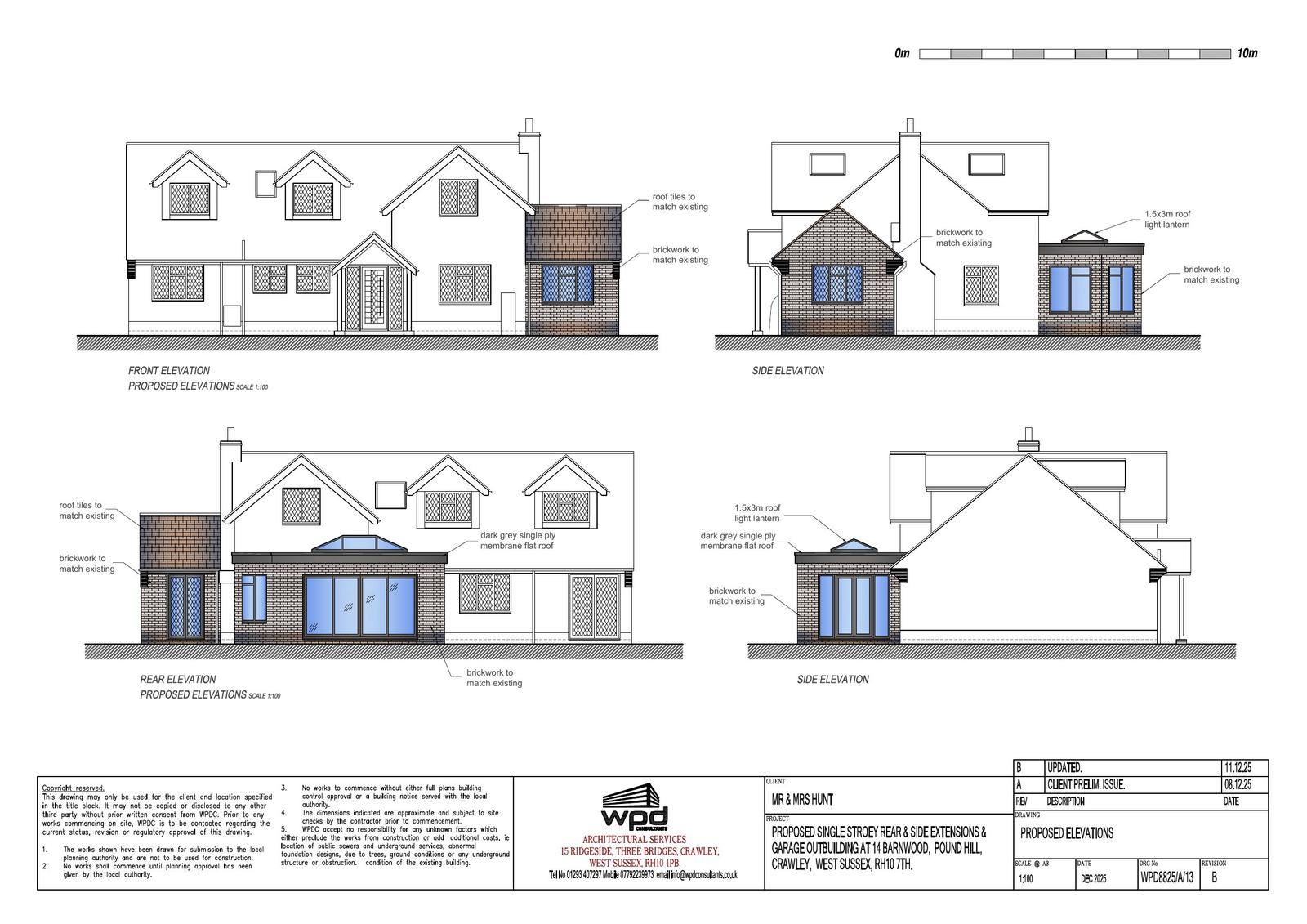
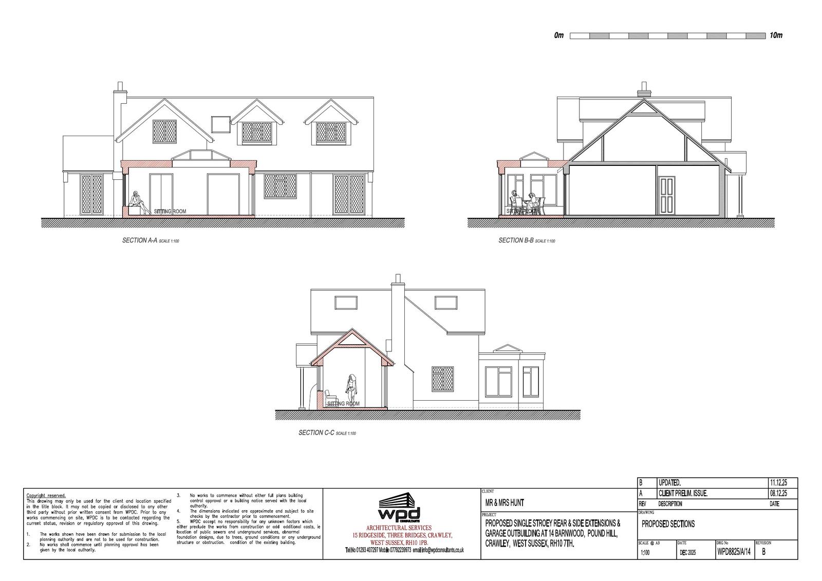
Erection of single storey rear and side extensions and detached garage
Documents
Have your say
Your comment matters. Councils must consider every representation that raises material planning considerations.