Application
24/04071/FUL
Croydon · IDOX
Status
Awaiting decision
New housing
Received
29 Nov 2024
New dwellings
1
What you can do
Take Action
Make your voice heard. Authorities need to hear from people who support new homes.
Summary
Demolish existing house and erect two replacement dwellings (1x4-bed and 1x3-bed).
Full Proposal
Demolition of existing house and erection of a replacement dwelling consisting of 1 x 4 bedroom and 1 x 3 bedroom units.
Detail pages
- View live detail on council site
- No archived detail page available.
Documents
DESIGN STATEMENT
Statements / Assessments
Not downloaded
· Council link
EXISTING AND PROPOSED ROOF PLANS
Drawing
Not downloaded
· Council link
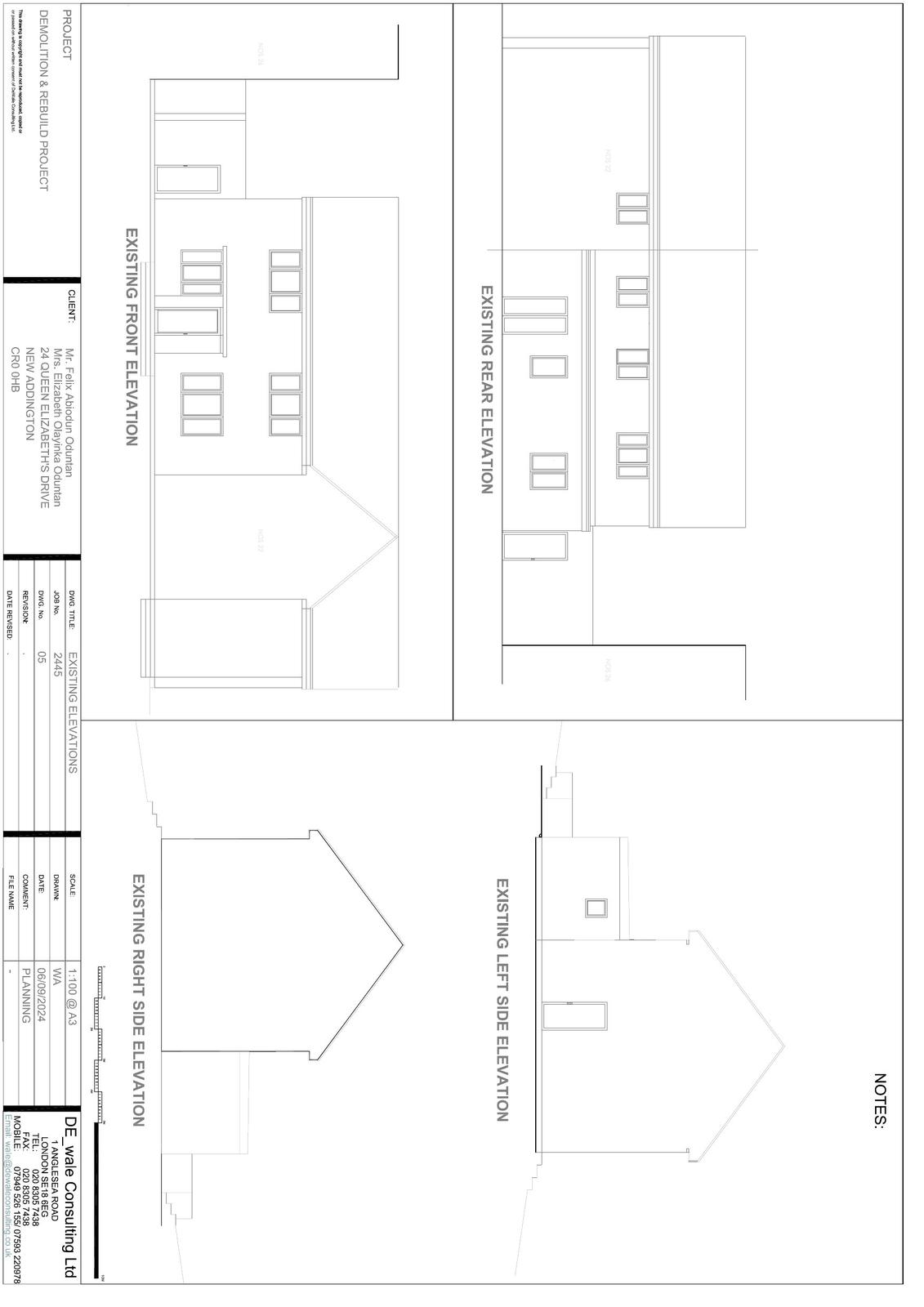
EXISTING ELEVATIONS
Drawing
Not downloaded
· Council link
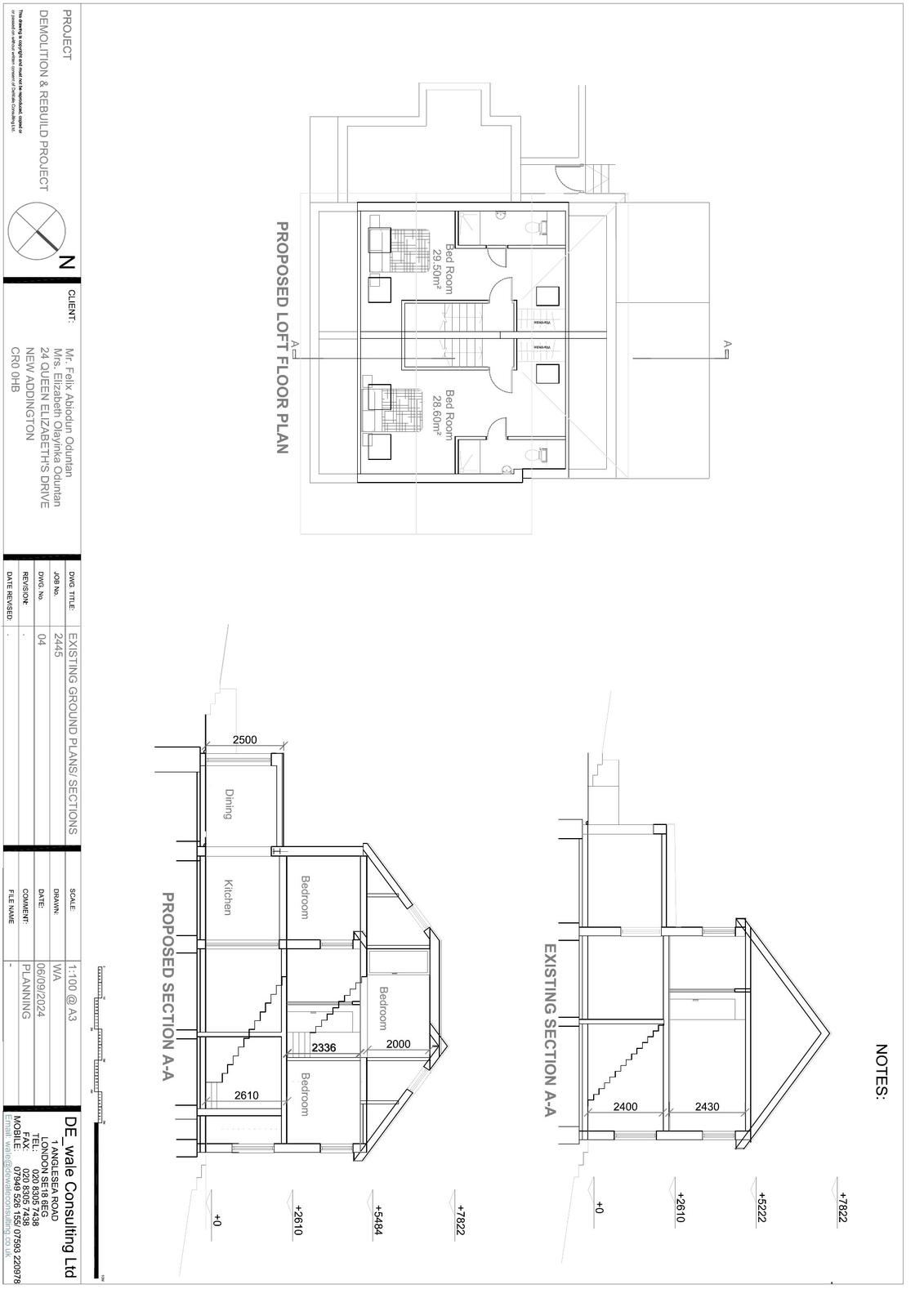
EXISTING PLANS
Drawing
Not downloaded
· Council link
LOCATION AND BLOCK PLANS
Drawing
Not downloaded
· Council link
PLANNING FIRE SAFETY STRATEGY
Statements / Assessments
Not downloaded
· Council link
PLANNING STATEMENT
Statements / Assessments
Not downloaded
· Council link
PRO-LOFT SECTIONS
Drawing
Not downloaded
· Council link
PROPOSED BLOCK PLAN
Drawing
Not downloaded
· Council link
PROPOSED ELEVATIONS
Drawing
Not downloaded
· Council link
PROPOSED PLANS
Drawing
Archived copy
· Council link