Application
25/01233/FUL
Croydon · IDOX
Status
Awaiting decision
New housing
Received
07 Apr 2025
New dwellings
6
What you can do
Take Action
Make your voice heard. Authorities need to hear from people who support new homes.
Summary
Demolition and three-storey replacement building providing six residential flats with parking and landscaping.
Full Proposal
Demolition of existing dwelling and erection of a 3 storey building to provide 6 no. residential flats with vehicular access, car parking and associated soft and hard landscaping.
Detail pages
- View live detail on council site
- No archived detail page available.
Documents
APPLICATION FORM - WITHOUT PERSONAL DATA
Application Form
Not downloaded
· Council link
ARBORICULTURAL IMPACT ASSESSMENT
Statements / Assessments
Not downloaded
· Council link
ARBORICULTURAL REPORT
Statements / Assessments
Not downloaded
· Council link
BAT SURVEY
Statements / Assessments
Not downloaded
· Council link
BAT SURVEY
Statements / Assessments
Not downloaded
· Council link
BAT SURVEY ADDENDUM
Statements / Assessments
Not downloaded
· Council link
BLOCK PLAN OF THE SITE
Drawing
Not downloaded
· Council link
BNG METRIC CALCULATION SPREADSHEET
Other
Not downloaded
· Council link
BNG REPORT
Statements / Assessments
Not downloaded
· Council link
CGI IMAGES
Other
Not downloaded
· Council link
CGI IMAGES
Other
Not downloaded
· Council link
CGI IMAGES
Other
Not downloaded
· Council link
CGI IMAGES
Other
Not downloaded
· Council link
ENERGY STATEMENT
Statements / Assessments
Not downloaded
· Council link
EXISTING SITE PLAN
Drawing
Archived copy
· Council link
FIRE SAFETY STRATGY
Statements / Assessments
Not downloaded
· Council link
FIRE STATEMENT
Statements / Assessments
Not downloaded
· Council link
FLOOD RISK ASSESSMENT
Statements / Assessments
Not downloaded
· Council link
FLOOD RISK ASSESSMENT
Statements / Assessments
Not downloaded
· Council link
INFILTRATION TESTING REPORT
Statements / Assessments
Not downloaded
· Council link
LANDSCAPING DETAILS
Drawing
Not downloaded
· Council link
LANDSCAPING DETAILS
Statements / Assessments
Not downloaded
· Council link
LANDSCAPING DETAILS
Drawing
Not downloaded
· Council link
LANDSCAPING DETAILS
Drawing
Not downloaded
· Council link
LANDSCAPING DETAILS
Drawing
Not downloaded
· Council link
LANDSCAPING PLAN
Amended Drawings
Not downloaded
· Council link
PLANNING STATEMENT
Statements / Assessments
Not downloaded
· Council link
PRELIMINARY ECOLOGICAL APPRAISAL
Statements / Assessments
Not downloaded
· Council link
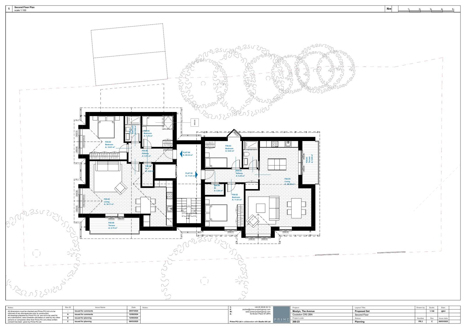
PROPOSED 2ND FLOOR PLAN
Drawing
Not downloaded
· Council link
PROPOSED ELEVATIONS
Amended Drawings
Not downloaded
· Council link
PROPOSED ELEVATIONS
Drawing
Not downloaded
· Council link
PROPOSED ELEVATIONS AND SECTIONS
Amended Drawings
Not downloaded
· Council link
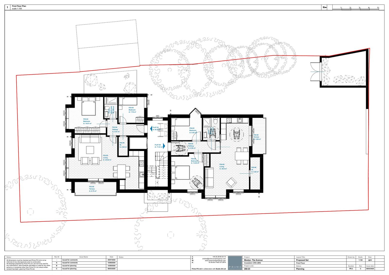
PROPOSED FIRST FLOOR PLAN
Drawing
Not downloaded
· Council link
PROPOSED FLOORPLANS
Amended Drawings
Not downloaded
· Council link
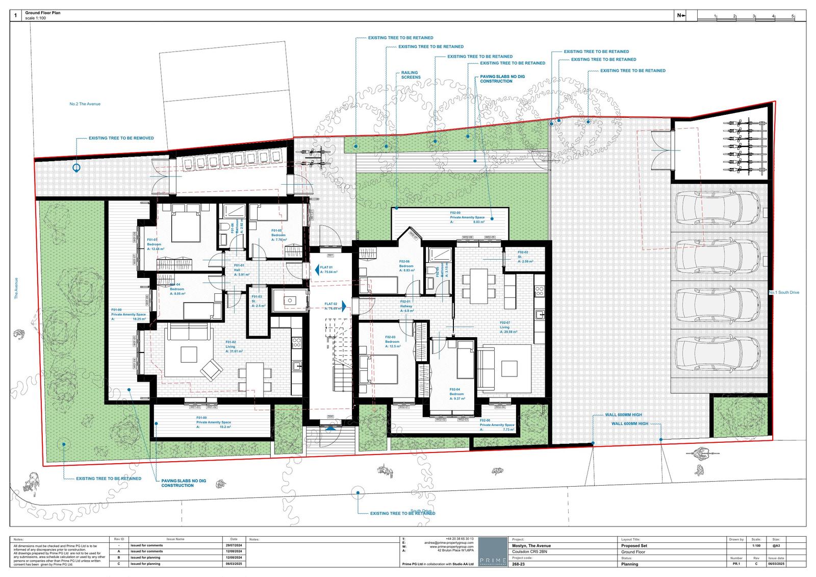
PROPOSED GROUND FLOOR PLAN
Drawing
Not downloaded
· Council link
PROPOSED PLANS AND ELEVATIONS
Amended Drawings
Archived copy
· Council link
PROPOSED SIDE ELEVATION
Drawing
Not downloaded
· Council link
PROPOSED SOUTH DRIVE ELEVATION
Drawing
Not downloaded
· Council link
PROPOSED STREETSCENE ELEVATIONS
Drawing
Not downloaded
· Council link
REVISED BNG ASSESSMENT
Statements / Assessments
Not downloaded
· Council link
REVISED BNG METRIC SPREADSHEET
Statements / Assessments
Not downloaded
· Council link
SCHEDULE OF ACCOMMODATION
Drawing
Not downloaded
· Council link
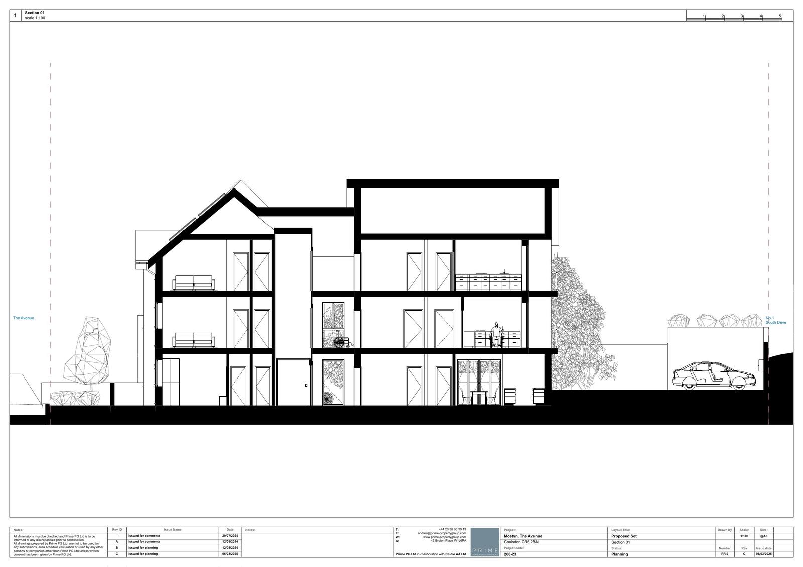
SECTION - PROPOSED
Drawing
Not downloaded
· Council link
SECTION - PROPOSED
Drawing
Not downloaded
· Council link
SITE NOTICE NEIGHBOUR NOTIFICATION
Site Notices
Not downloaded
· Council link
SITE/BLOCK PLAN - EXISTING
Drawing
Not downloaded
· Council link
THE LOCATION PLAN
Drawing
Not downloaded
· Council link
TRANSPORT ASSESSMENT
Statements / Assessments
Not downloaded
· Council link
TREE PROTECTION PLAN
Statements / Assessments
Not downloaded
· Council link
TREE SURVEY
Statements / Assessments
Not downloaded
· Council link
TREE SURVEY
Statements / Assessments
Not downloaded
· Council link
WINDOW SCHEDULE
Amended Drawings
Not downloaded
· Council link
WINDOW SCHEDULE
Drawing
Not downloaded
· Council link