← Croydon

Status

Awaiting decision House extension
Received
22 Sep 2025
New homes
0

Full proposal

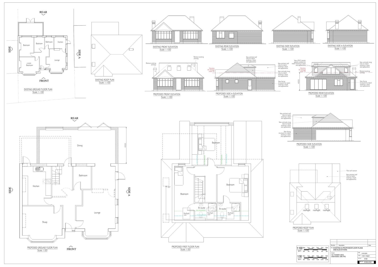
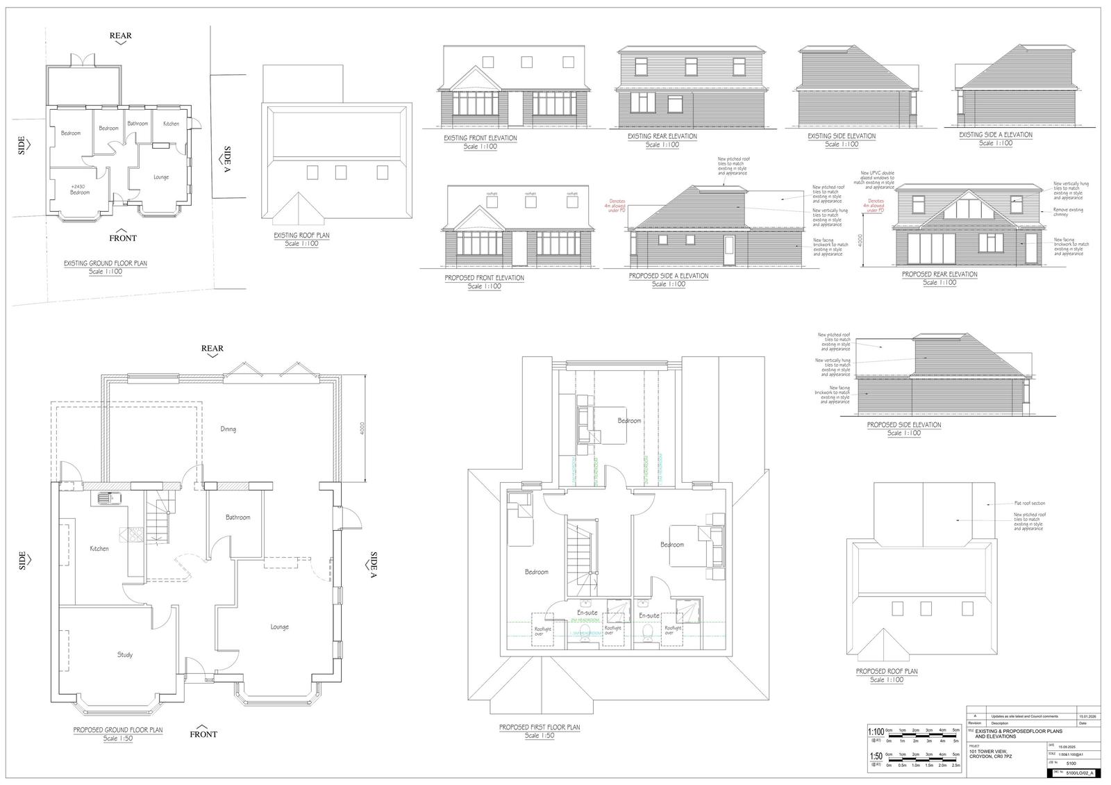
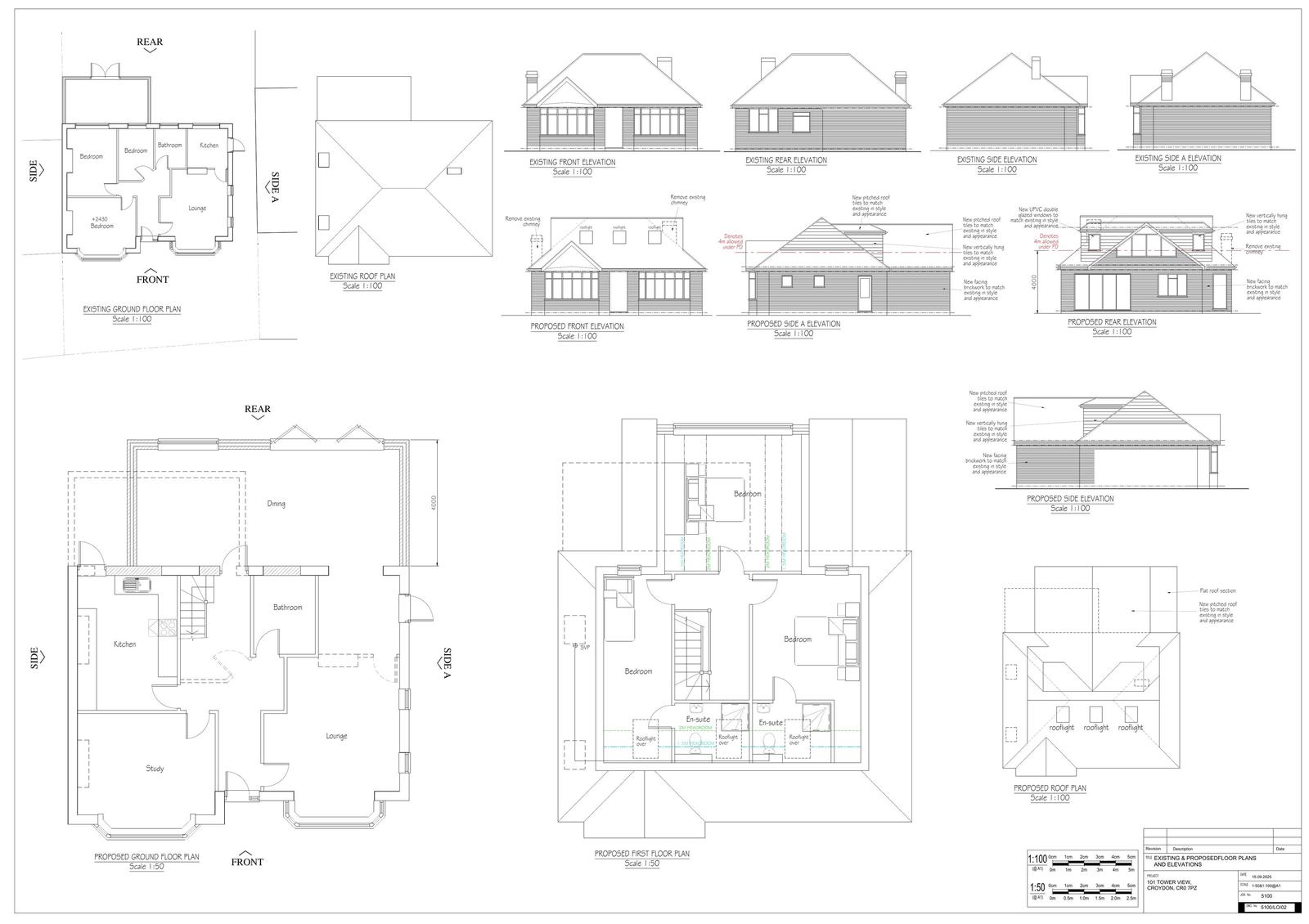
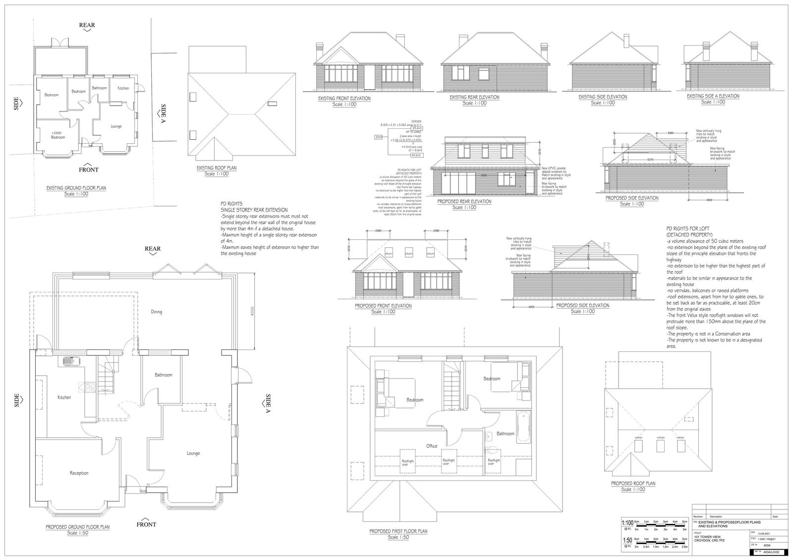
Addition of a storey to the existing bungalow, together with the erection of a single/two-storey rear extension with pitched roof

Documents

Plans
Archived · Original link
Plans
Archived · Original link
Drawing
Archived · Original link
PHOTO OF SITE NOTICE
Site Notices
Not yet archived · Original link

Have your say

Your comment matters. Councils must consider every representation that raises material planning considerations.

Write a comment