← Croydon

Status

Awaiting decision House extension
Received
01 Dec 2025
New homes
0

Full proposal

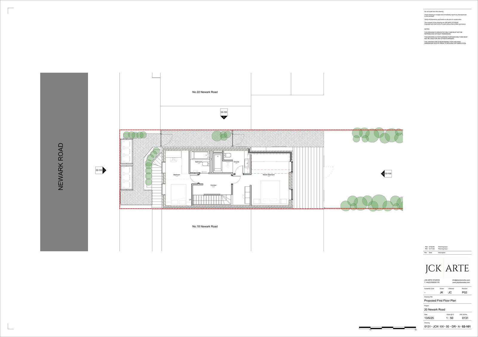
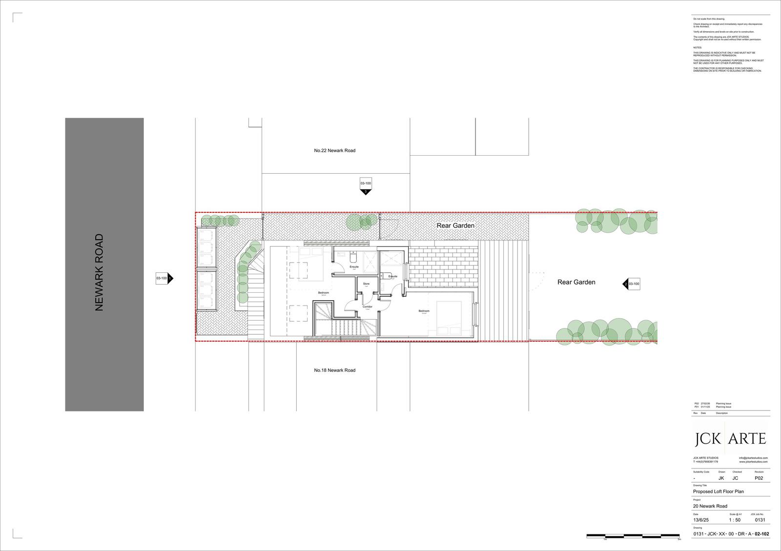
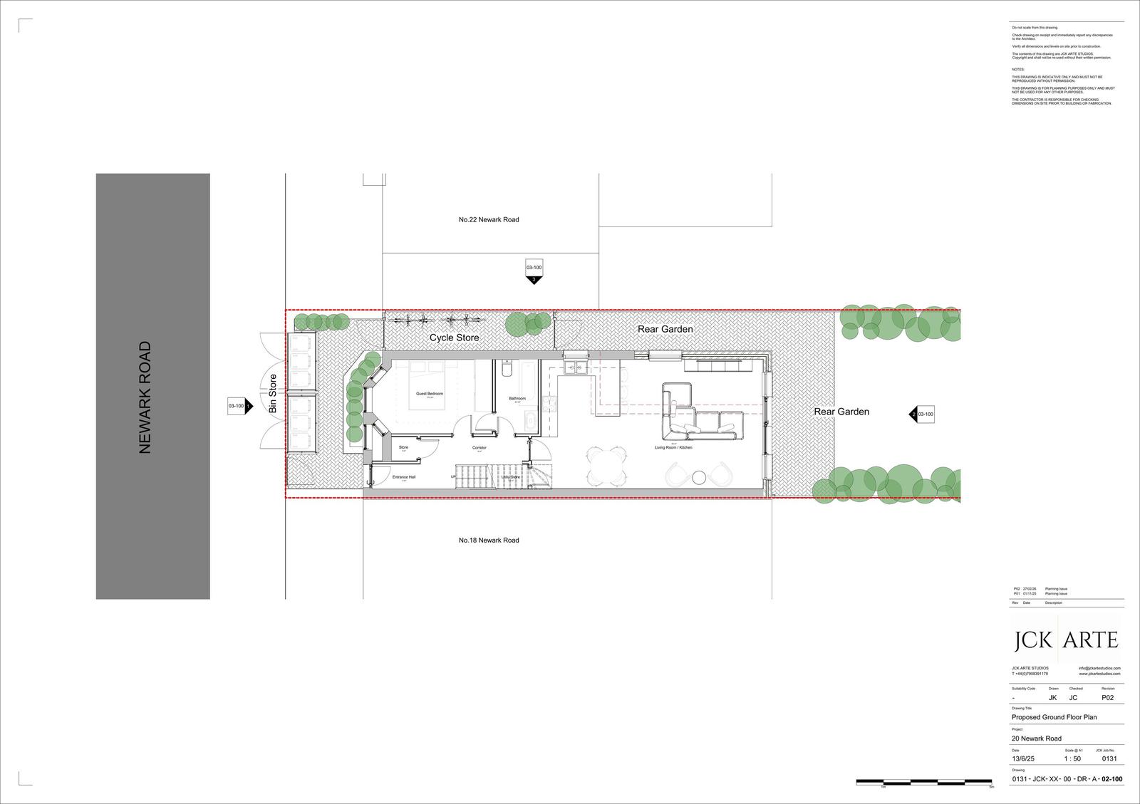
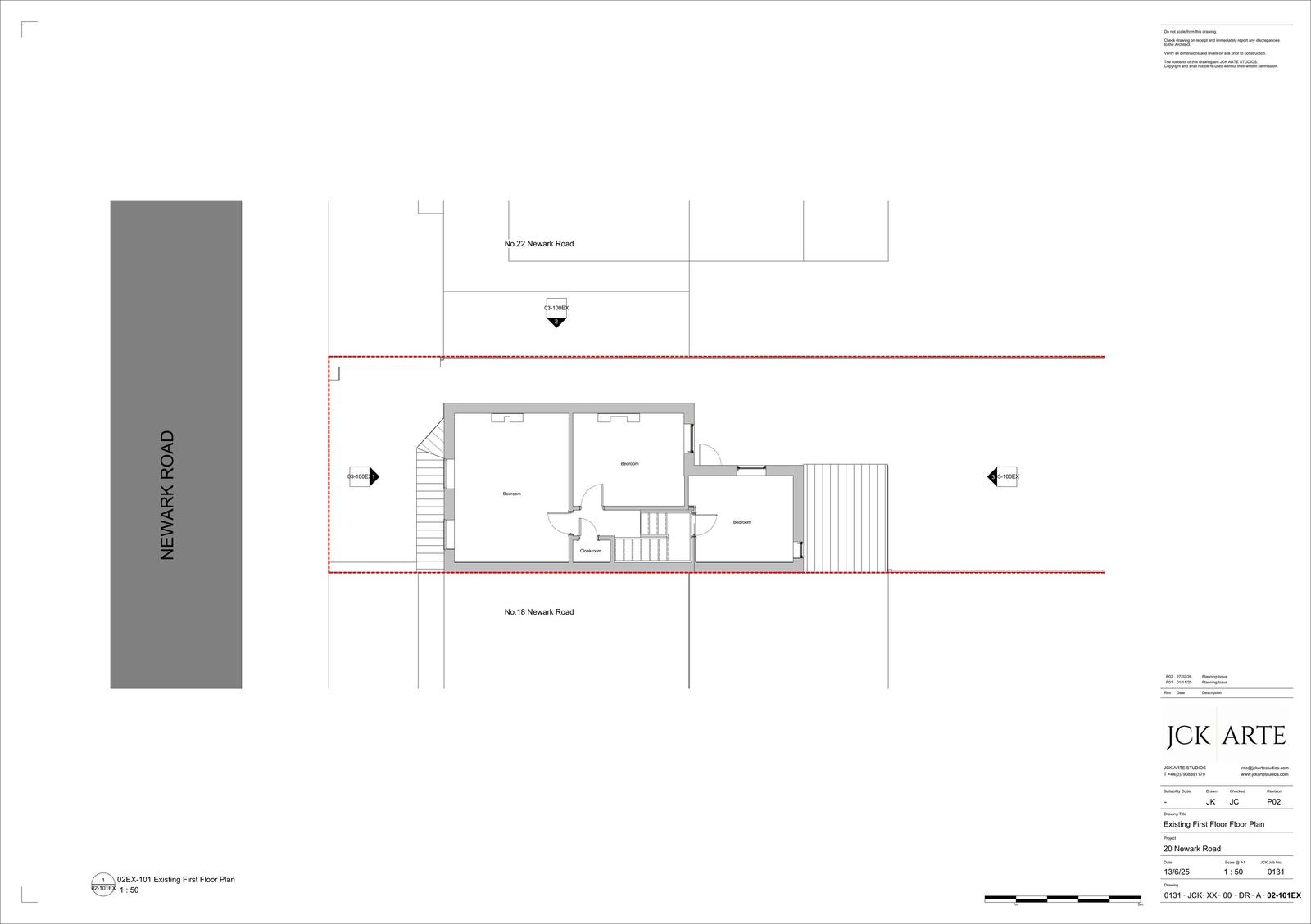
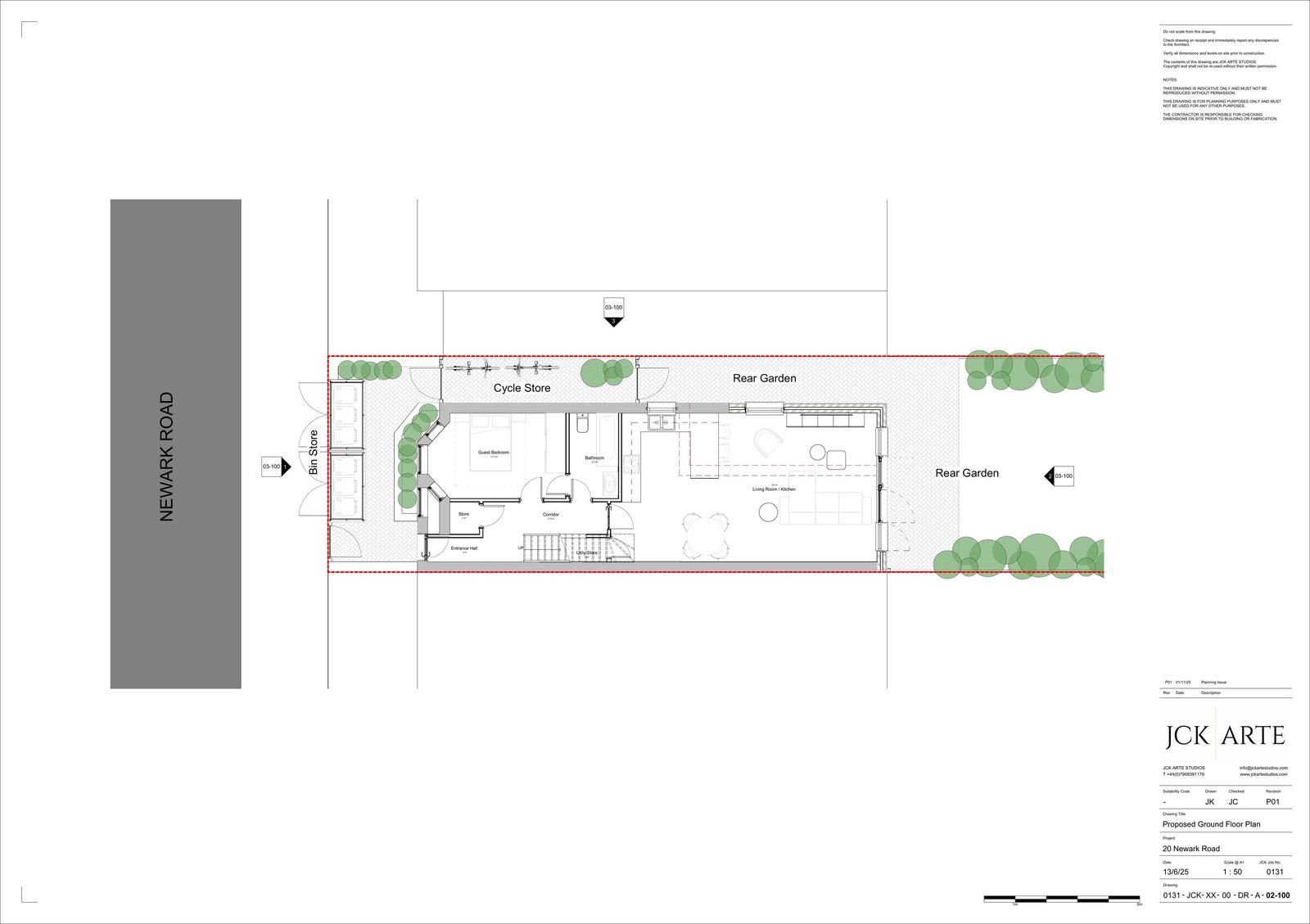
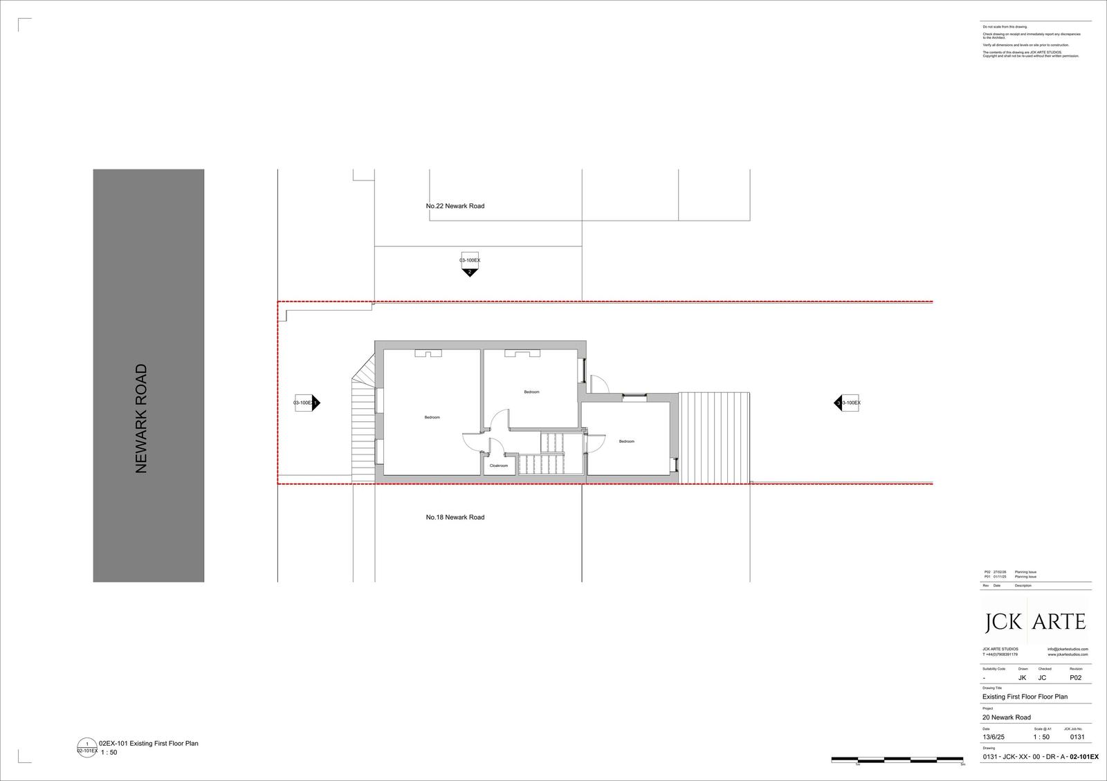
The proposal seeks planning permission for the construction of part single-storey and part first-floor rear extensions, together with a loft conversion including a rear dormer and rooflights to the front roof slope.

Documents

Drawing
Archived · Original link
Drawing
Archived · Original link
Drawing
Archived · Original link
Statements / Assessments
Archived · Original link
Drawing
Archived · Original link
Drawing
Archived · Original link
Drawing
Archived · Original link
Drawing
Archived · Original link
Drawing
Archived · Original link
Drawing
Archived · Original link
Drawing
Archived · Original link
Drawing
Archived · Original link
Drawing
Archived · Original link

Have your say

Your comment matters. Councils must consider every representation that raises material planning considerations.

Write a comment