← Croydon

Status

Awaiting decision House extension
Received
29 Dec 2025
New homes
0

Full proposal

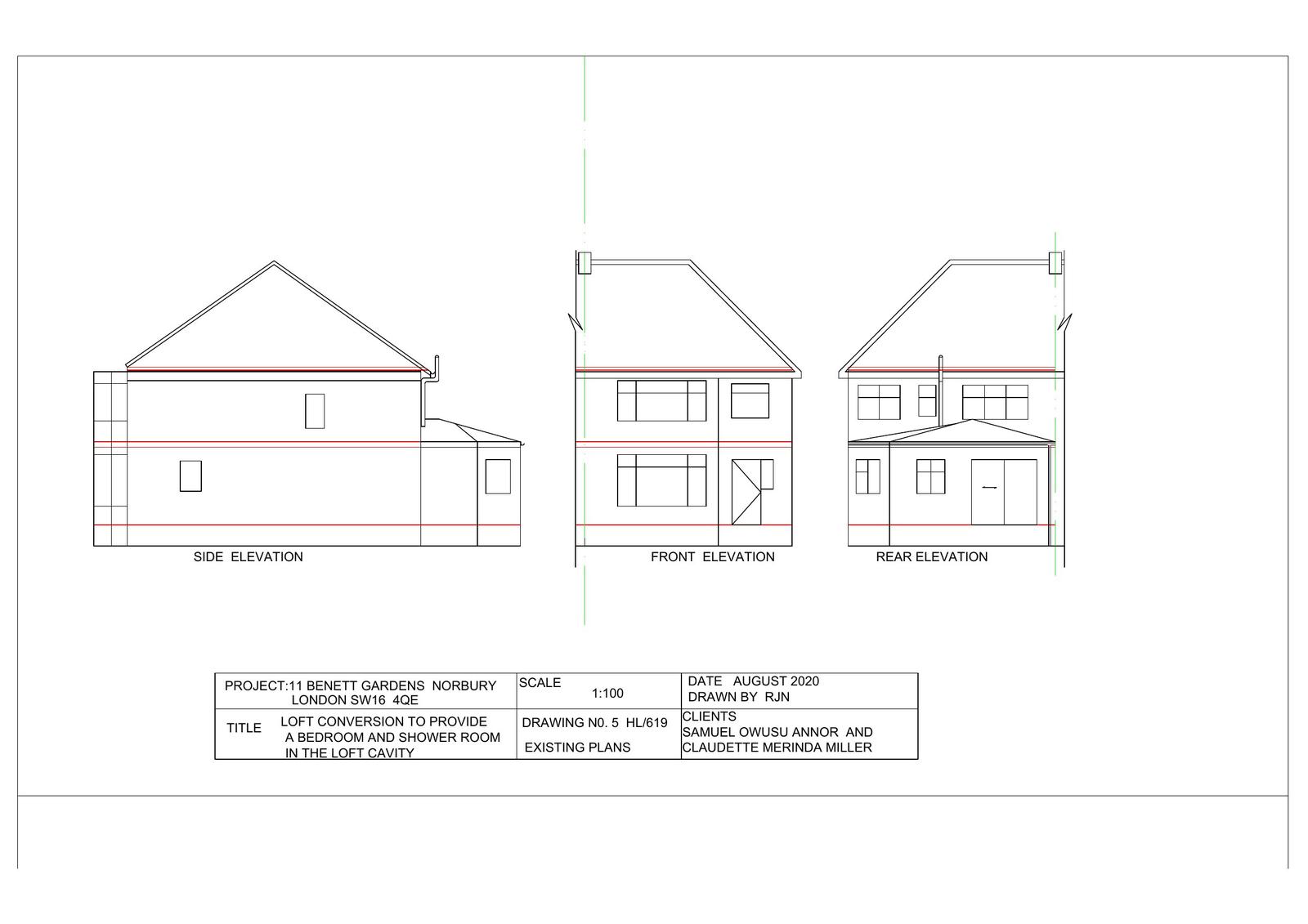
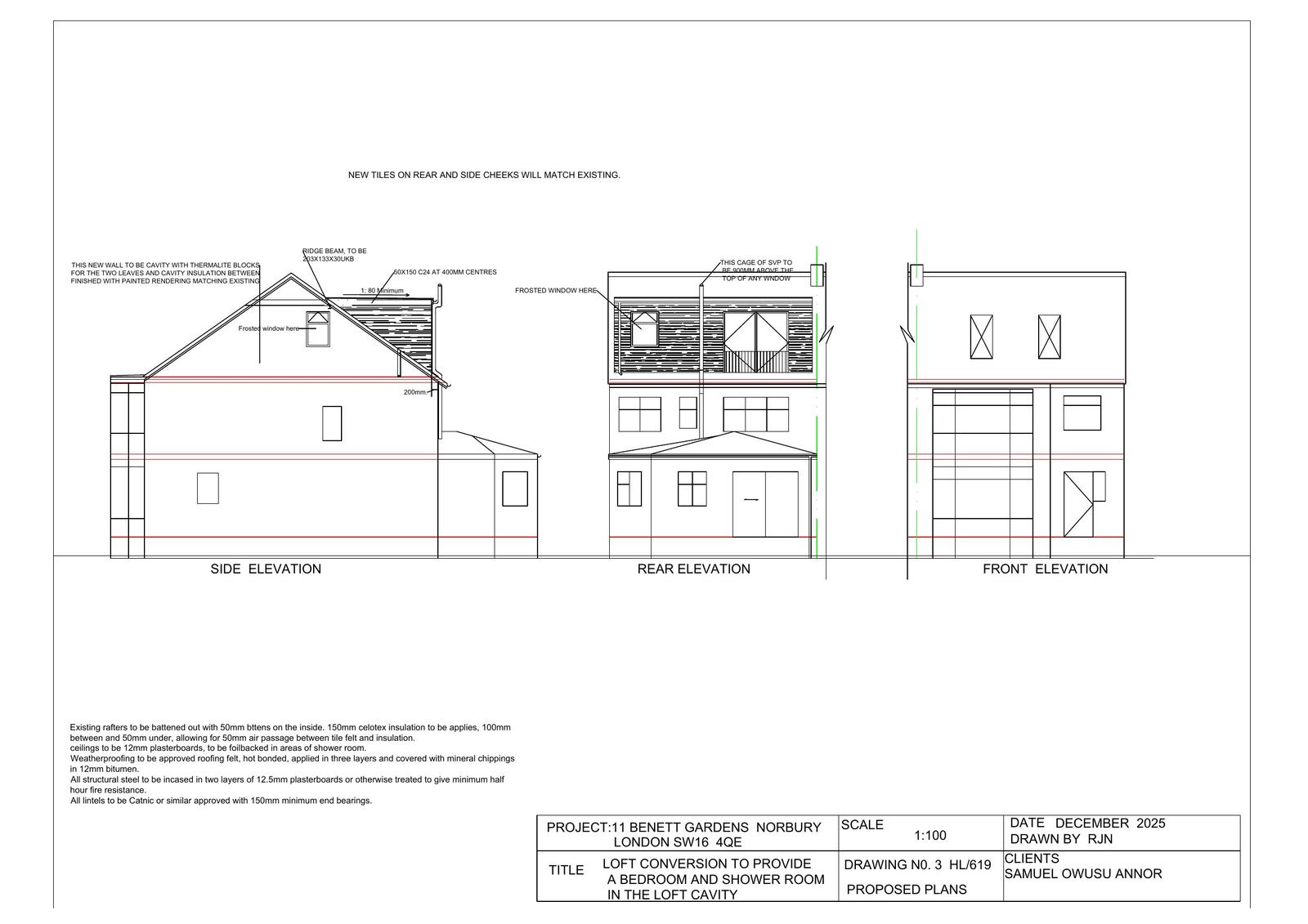
Erection of a rear dormer with the installation of a juliette balcony and two (2) roof lights on the front roof slope

Have your say

Your comment matters. Councils must consider every representation that raises material planning considerations.

Write a comment