← Croydon

Status

Awaiting decision House extension
Received
02 Jan 2026
New homes
0

Full proposal

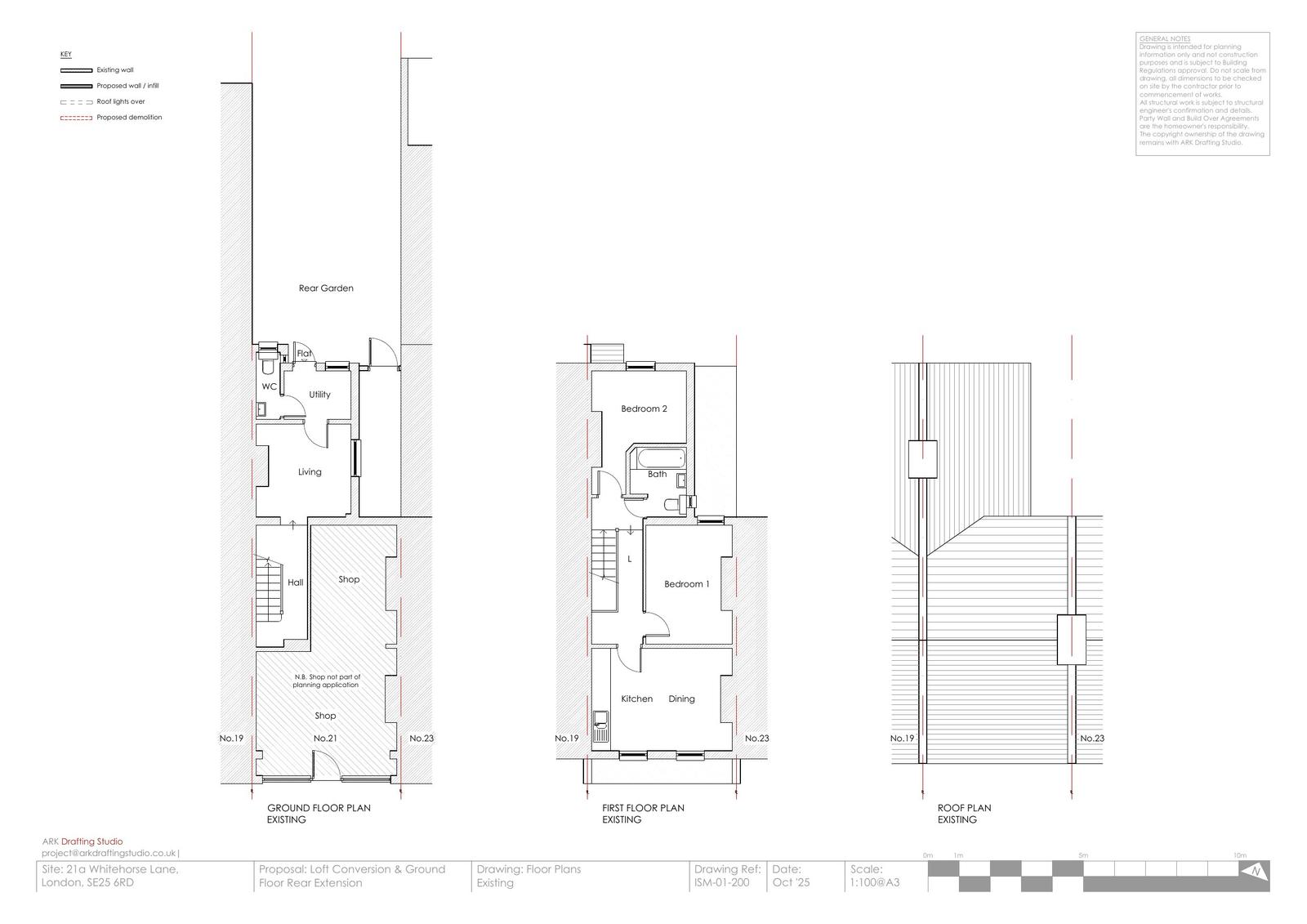
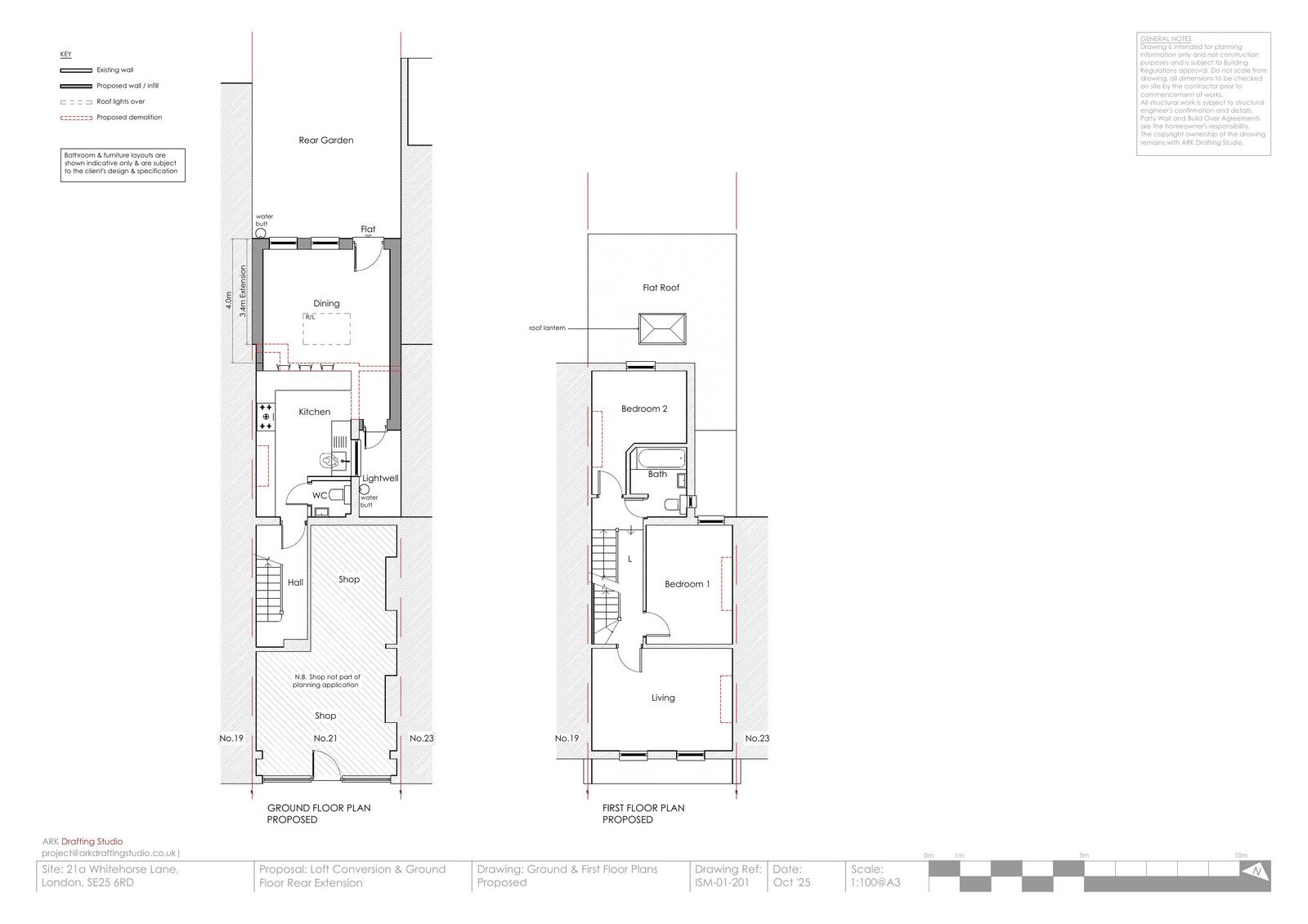
Alterations to existing maisonette; Construction of a single storey rear extension and loft conversion involving construction of dormers on the rear roof slopes and installation of 2no. roof lights on the front roof slope.

Documents

Statements / Assessments
Archived · Original link
Statements / Assessments
Archived · Original link
Statements / Assessments
Archived · Original link
Drawing
Archived · Original link
Drawing
Archived · Original link
Drawing
Archived · Original link
Drawing
Archived · Original link
Drawing
Archived · Original link
Drawing
Archived · Original link

Have your say

Your comment matters. Councils must consider every representation that raises material planning considerations.

Write a comment