← Croydon

Status

Awaiting decision House extension
Received
09 Jan 2026
New homes
0

Full proposal

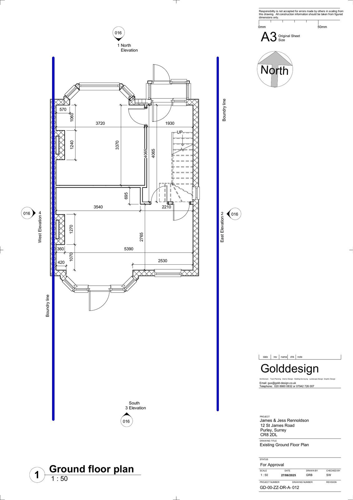
Erection of single storey rear extension and alterations to side elevation.

Documents

Drawing
Archived · Original link
FIRE STATEMENT FORM
Statements / Assessments
Not yet archived · Original link
Statements / Assessments
Archived · Original link
Statements / Assessments
Archived · Original link
FLOOD RISK STATEMENT
Statements / Assessments
Not yet archived · Original link
Statements / Assessments
Archived · Original link
Drawing
Archived · Original link
Drawing
Archived · Original link
Drawing
Archived · Original link
Drawing
Archived · Original link
Drawing
Archived · Original link
Drawing
Archived · Original link
Drawing
Archived · Original link
Drawing
Archived · Original link
Drawing
Archived · Original link
Drawing
Archived · Original link
Drawing
Archived · Original link

Have your say

Your comment matters. Councils must consider every representation that raises material planning considerations.

Write a comment