← Croydon

Status

Awaiting decision House extension
Received
13 Jan 2026
New homes
0

Full proposal

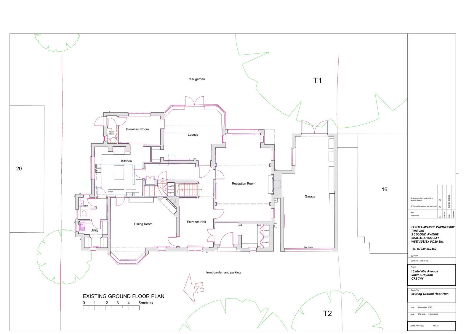
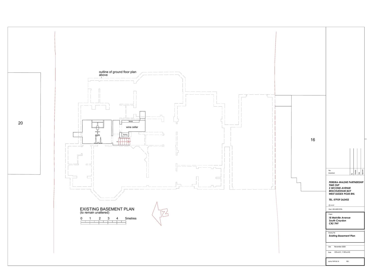
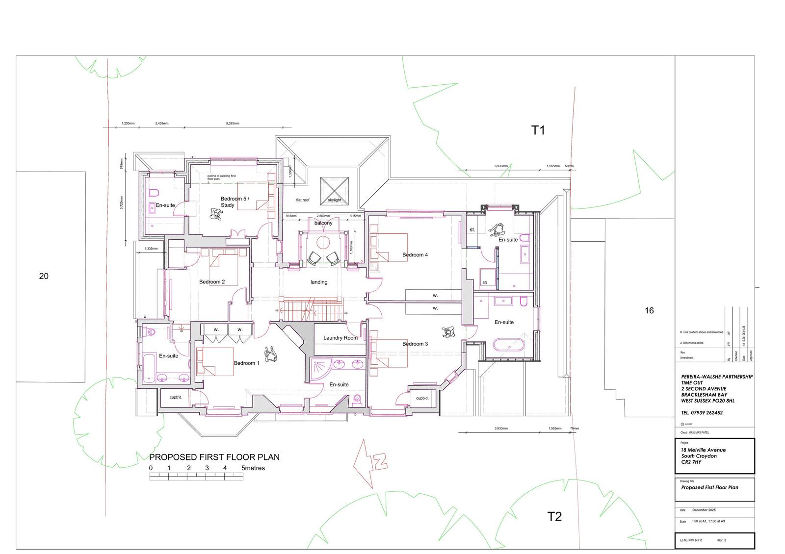
Demolition of existing attached garage and partial demolition of single storey rear extension. Erection of part single storey/part two storey side and rear extensions, and erection of dormers to front and rear roof slopes in connection with conversion of roof space to habitable accommodation, together with associated internal alteration works.

Have your say

Your comment matters. Councils must consider every representation that raises material planning considerations.

Write a comment