← Croydon

Status

Awaiting decision House extension
Received
15 Jan 2026
New homes
0

Full proposal

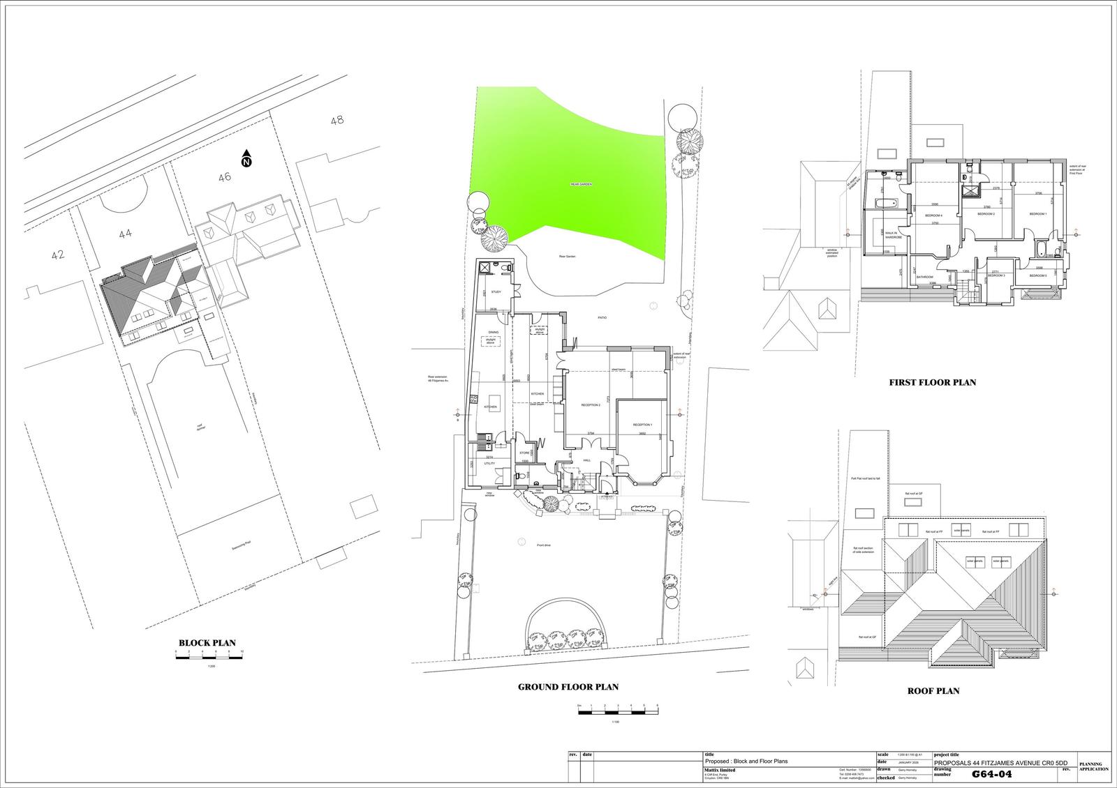
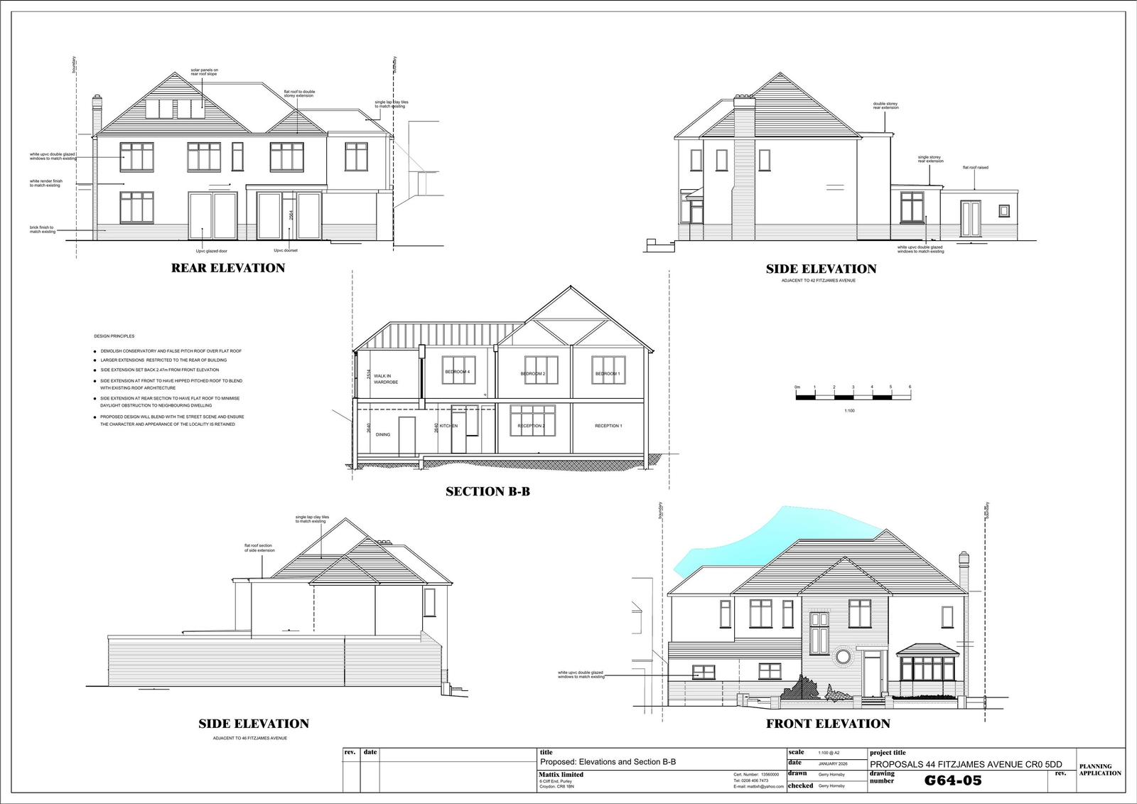
Erection of ground-floor front extension, first-floor side extension, one/two-storey rear extension, installation of solar panels on rear roof slopes, extension to existing rear patio and all associated works

Have your say

Your comment matters. Councils must consider every representation that raises material planning considerations.

Write a comment