← Croydon

Status

Awaiting decision House extension
Received
27 Jan 2026
New homes
0

Full proposal

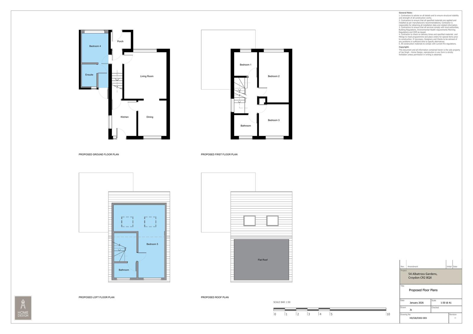
Increase in height of existing garage and porch roof and conversion of existing garage to habitable accommodation. Erection of dormer extension to rear roof slope and two roof lights to front roof slope in connection with conversion of resultant roof space to habitable accommodation.

Documents

Statements / Assessments
Archived · Original link
Statements / Assessments
Archived · Original link
Statements / Assessments
Archived · Original link
Drawing
Archived · Original link
Drawing
Archived · Original link
Drawing
Archived · Original link

Have your say

Your comment matters. Councils must consider every representation that raises material planning considerations.

Write a comment