← Croydon

Status

Awaiting decision Demolition
Received
30 Jan 2026
New homes
0

Full proposal

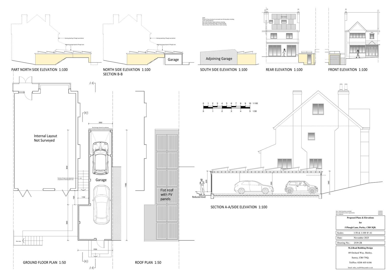
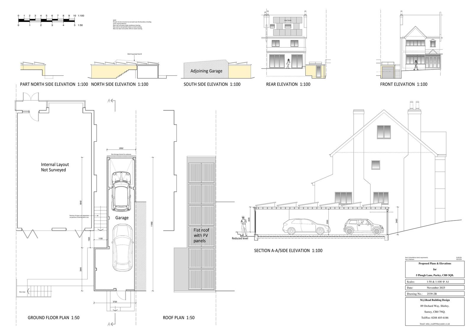
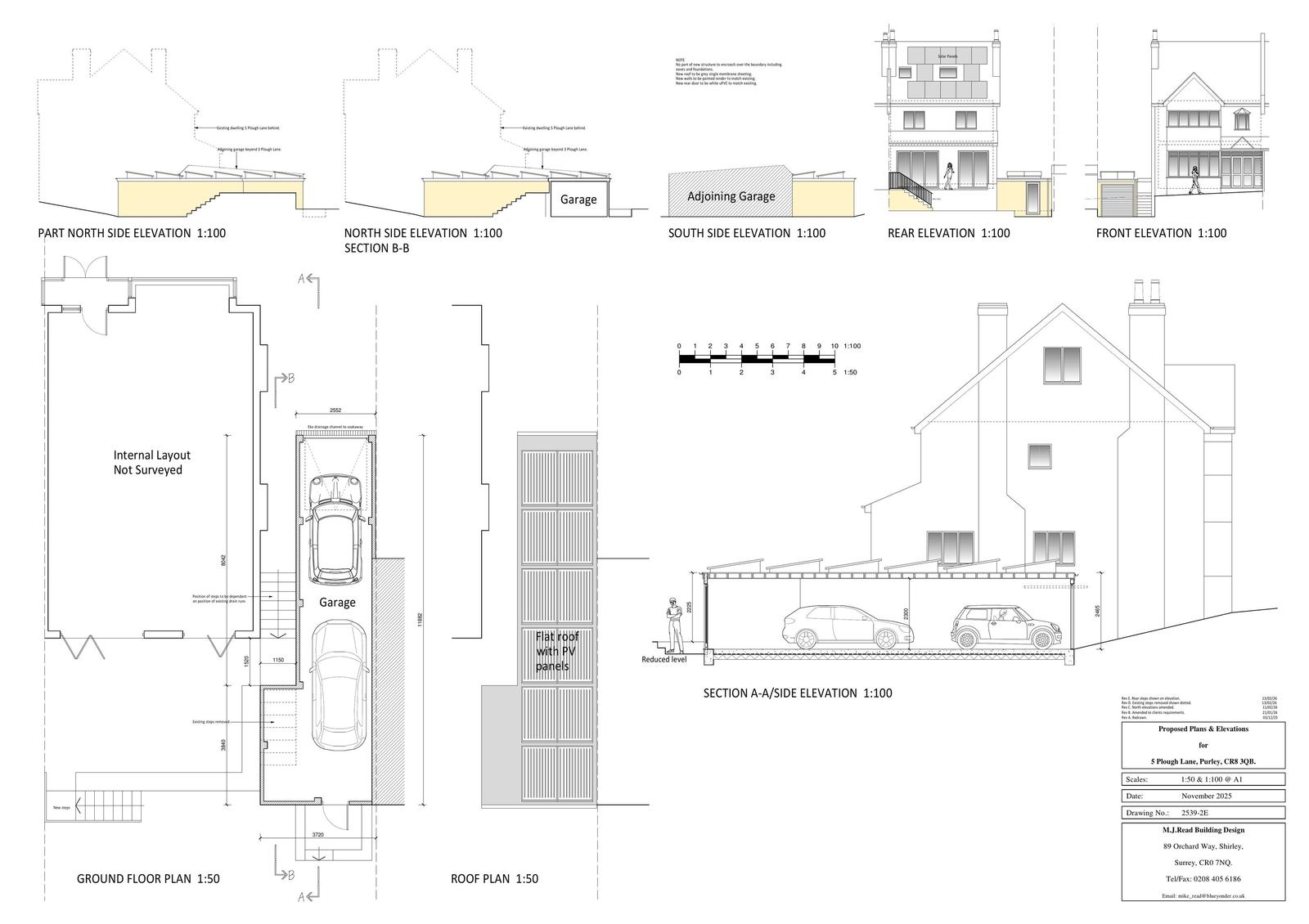
Demolition of existing garage, alterations to include alterations to land levels, erection of enlarged garage at side/rear and alterations to existing raised patio area and steps

Have your say

Your comment matters. Councils must consider every representation that raises material planning considerations.

Write a comment