← Croydon

Status

Awaiting decision House extension
Received
02 Feb 2026
New homes
0

Full proposal

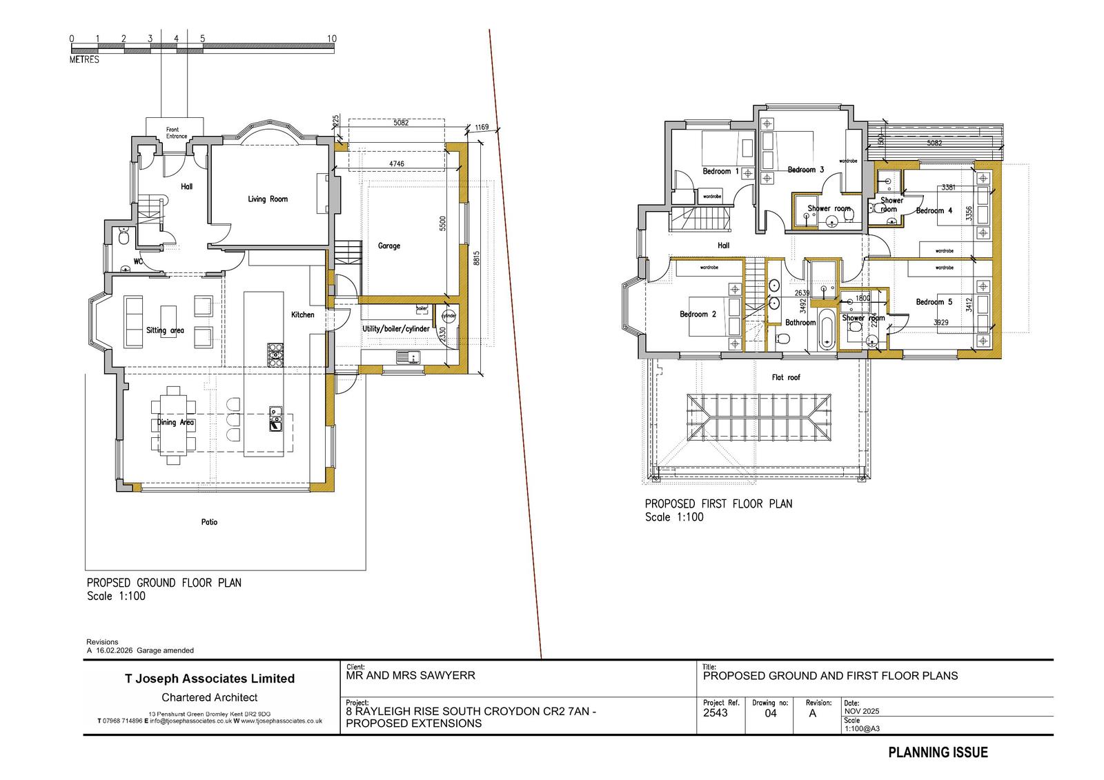
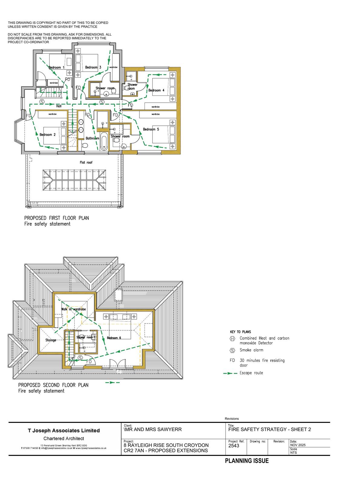
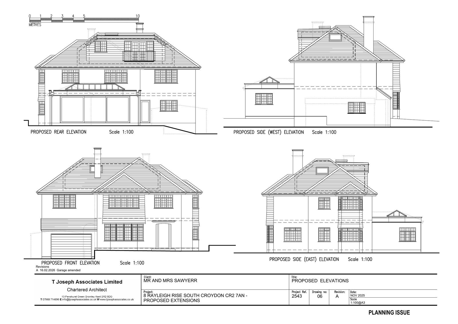
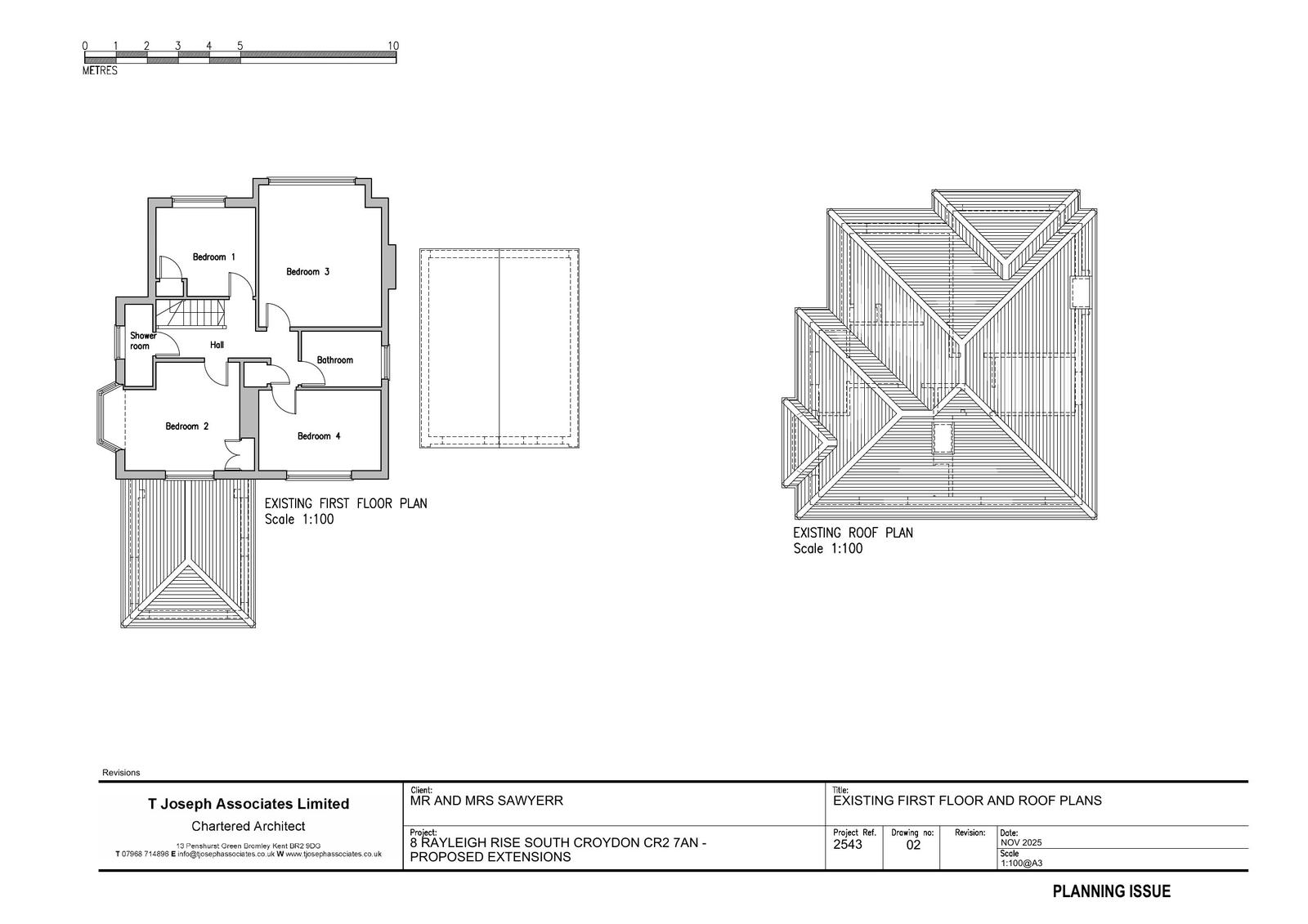
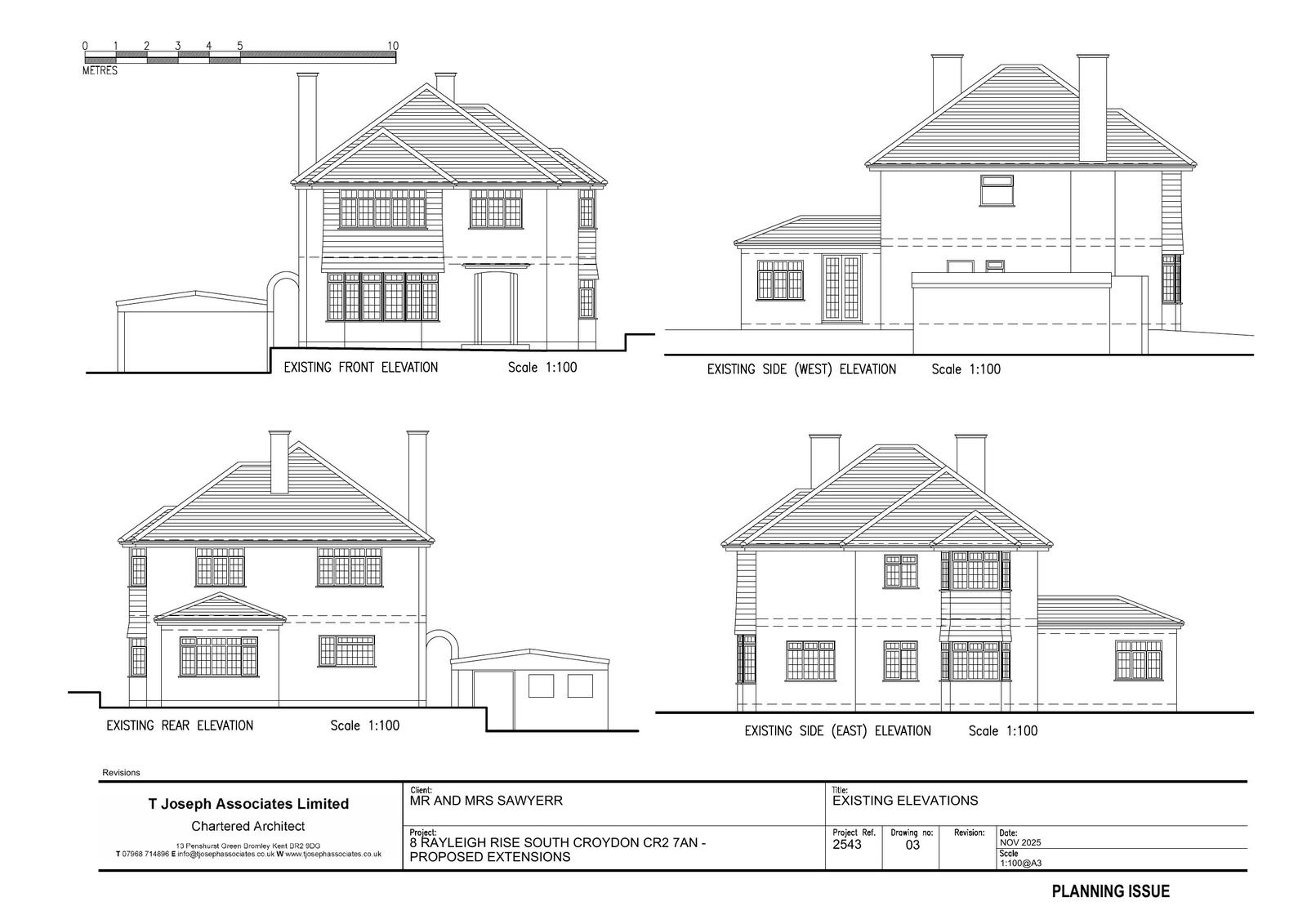
Demolition of detached garage and erection of two storey side and single storey rear extensions and dormer extension in rear roof slope.

Documents

Drawing
Archived · Original link
Drawing
Archived · Original link
Drawing
Archived · Original link
Drawing
Archived · Original link
Drawing
Archived · Original link
Drawing
Archived · Original link
Drawing
Archived · Original link
Drawing
Archived · Original link
Statements / Assessments
Archived · Original link
Drawing
Archived · Original link
Drawing
Archived · Original link

Have your say

Your comment matters. Councils must consider every representation that raises material planning considerations.

Write a comment