← Croydon

Status

Awaiting decision Change of use
Received
03 Feb 2026
New homes
0

Full proposal

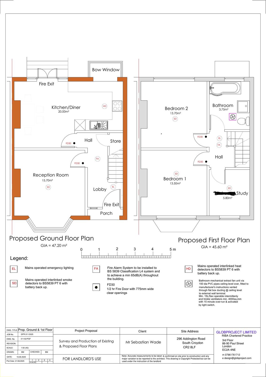
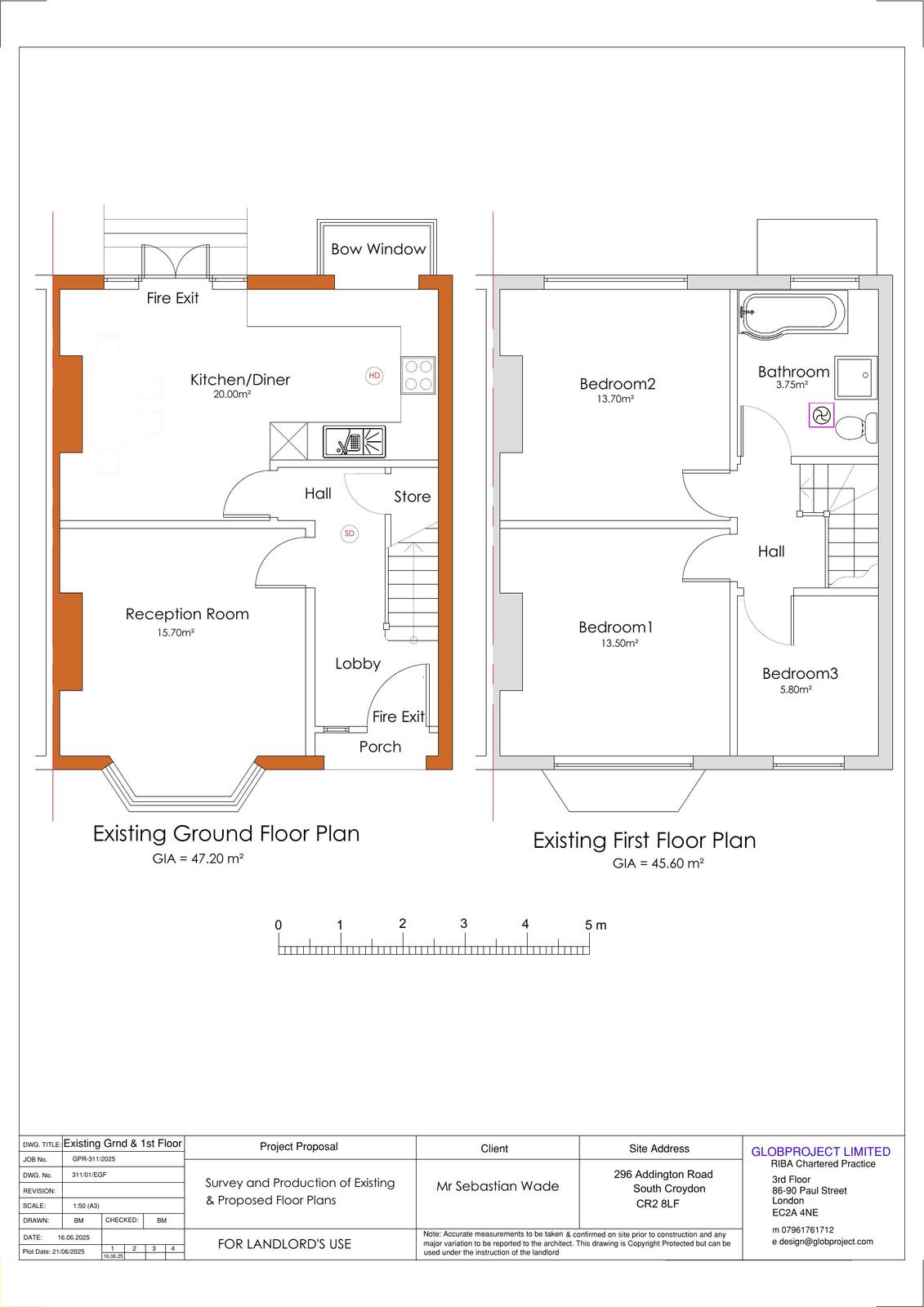
Use of the existing dwellinghouse as a care home for up to 2 people (Use Class C3(b)), that would accommodate up to two people aged 16+.

Documents

Drawing
Archived · Original link
Drawing
Archived · Original link
Statements / Assessments
Archived · Original link
Drawing
Archived · Original link

Have your say

Your comment matters. Councils must consider every representation that raises material planning considerations.

Write a comment