← Croydon

Status

Awaiting decision Commercial
Received
04 Feb 2026
New homes
0

Full proposal

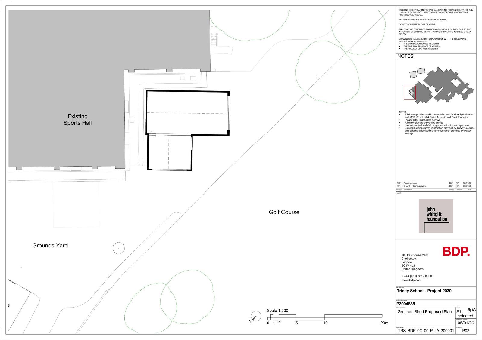
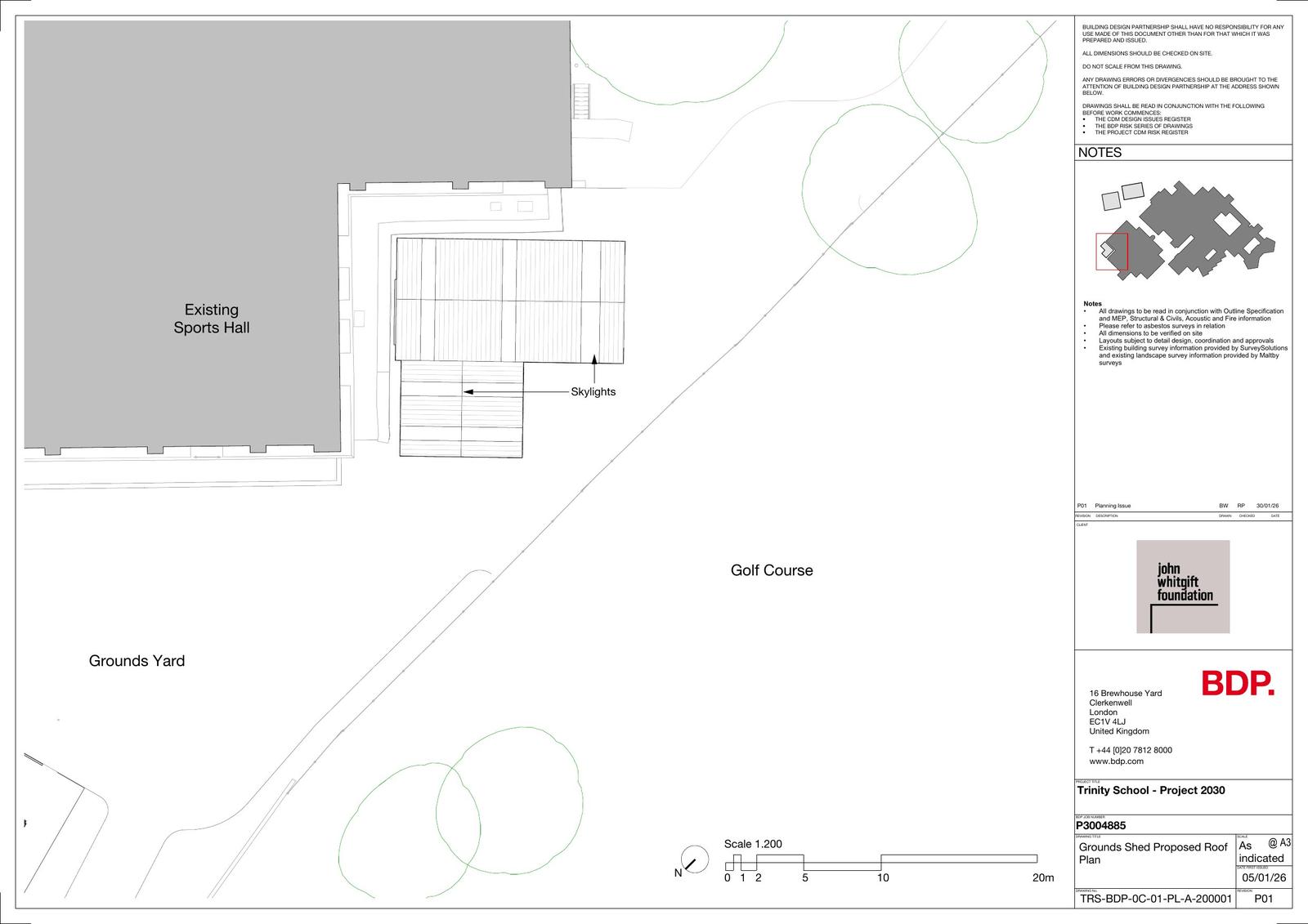
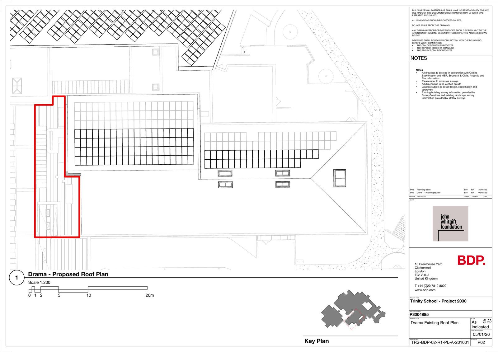
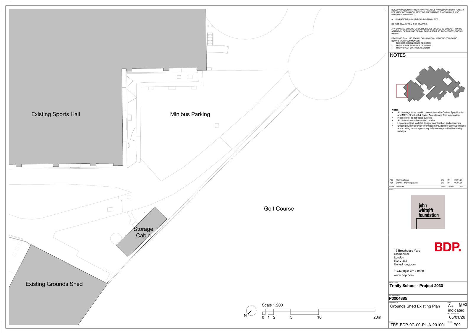
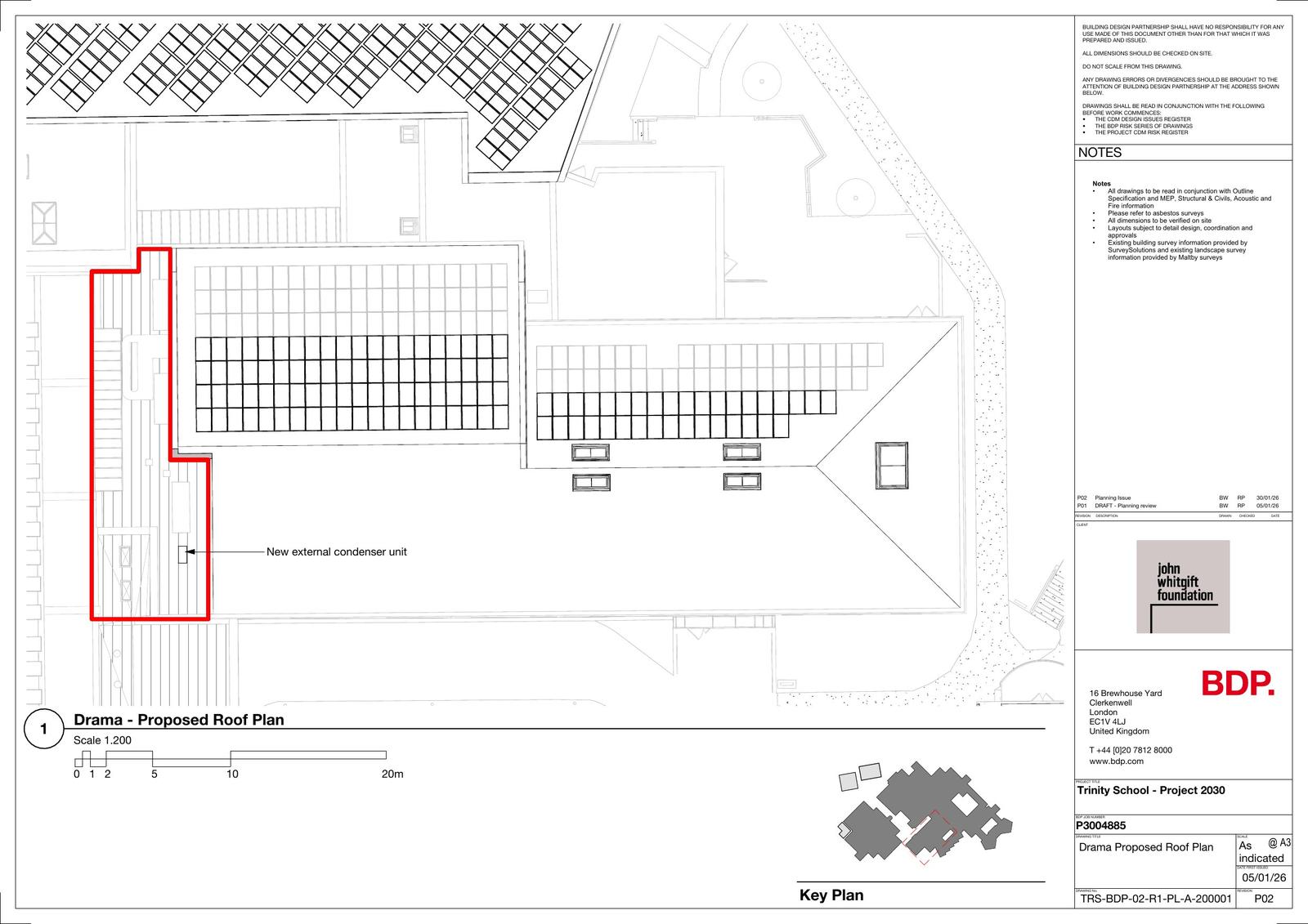
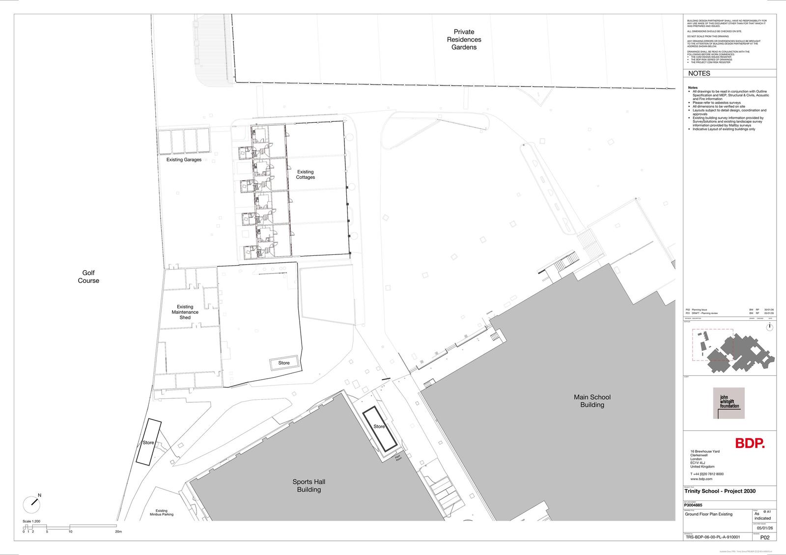
Phased development comprising the demolition of four dwellings (Class C3) used as staff accommodation and maintenance store. Erection of a 3-storey sixth form building with associated facilities linked to a new 3-storey building with fitness suite and classrooms (Class F1). Formation of canopy linking new buildings with existing school. Erection of grounds shed and plant structures. Formation of associated car parking areas, creation of new hard and soft landscaping areas, retention of existing access/egress points, and other associated external works.

Documents

Statements / Assessments
Archived · Original link
Statements / Assessments
Archived · Original link
BIODIVERSITY METRIC CALCULATIONS
Other
Not yet archived · Original link
Drawing
Archived · Original link
Statements / Assessments
Archived · Original link
BackGround Papers
Archived · Original link
Statements / Assessments
Archived · Original link
Statements / Assessments
Archived · Original link
Statements / Assessments
Archived · Original link
Statements / Assessments
Archived · Original link
Statements / Assessments
Archived · Original link
Statements / Assessments
Archived · Original link
Statements / Assessments
Archived · Original link
Amended Drawings
Archived · Original link
Amended Drawings
Archived · Original link
Amended Drawings
Archived · Original link
Amended Drawings
Archived · Original link
Statements / Assessments
Archived · Original link
Amended Drawings
Archived · Original link
Amended Drawings
Archived · Original link
Amended Drawings
Archived · Original link
Drawing
Archived · Original link
Statements / Assessments
Archived · Original link
Statements / Assessments
Archived · Original link
Amended Drawings
Archived · Original link
Amended Drawings
Archived · Original link
Amended Drawings
Archived · Original link
Amended Drawings
Archived · Original link
Amended Drawings
Archived · Original link
Drawing
Archived · Original link
Statements / Assessments
Archived · Original link
Amended Drawings
Archived · Original link
Amended Drawings
Archived · Original link
Drawing
Archived · Original link
Amended Drawings
Archived · Original link
Drawing
Archived · Original link
Drawing
Archived · Original link
Drawing
Archived · Original link
Drawing
Archived · Original link
Drawing
Archived · Original link
Drawing
Archived · Original link
Amended Drawings
Archived · Original link
Statements / Assessments
Archived · Original link
Statements / Assessments
Archived · Original link
Drawing
Archived · Original link
Statements / Assessments
Archived · Original link
Statements / Assessments
Archived · Original link
Statements / Assessments
Archived · Original link

Have your say

Your comment matters. Councils must consider every representation that raises material planning considerations.

Write a comment