← Croydon

Status

Awaiting decision House extension
Received
Last month
New homes
0

Full proposal

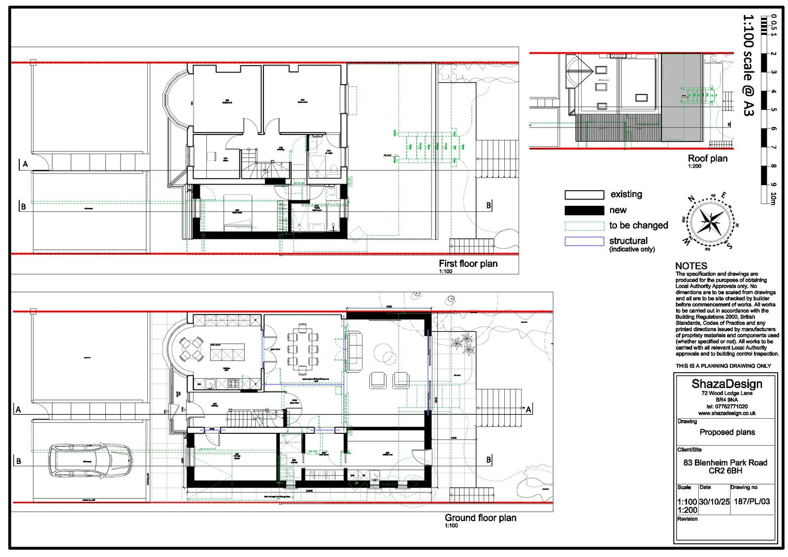
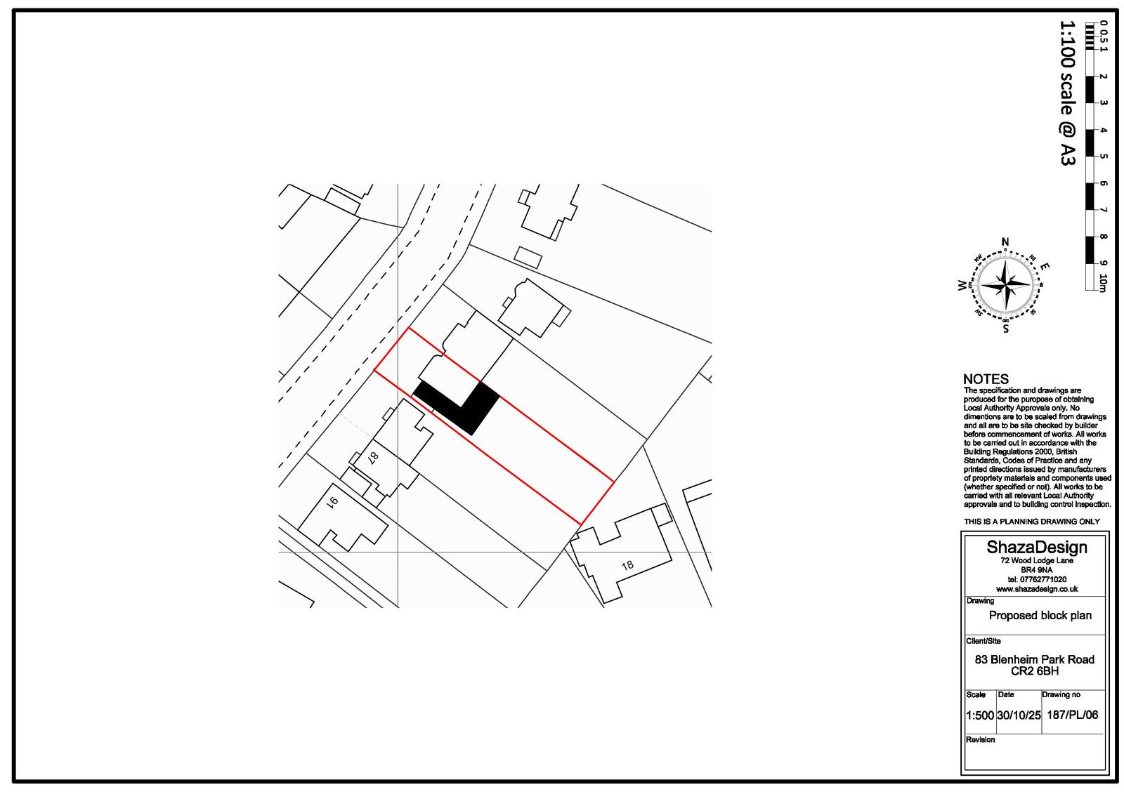
Erection of a two storey side extension and single storey rear extension, including a raised patio to the rear and alterations to the landscaping to the front of the property.

Documents

Drawing
Archived · Original link
Drawing
Archived · Original link
Drawing
Archived · Original link
Drawing
Archived · Original link
Drawing
Archived · Original link
Statements / Assessments
Archived · Original link
Drawing
Archived · Original link

Have your say

Your comment matters. Councils must consider every representation that raises material planning considerations.

Write a comment