← Croydon

Status

Awaiting decision House extension
Received
Last month
New homes
0

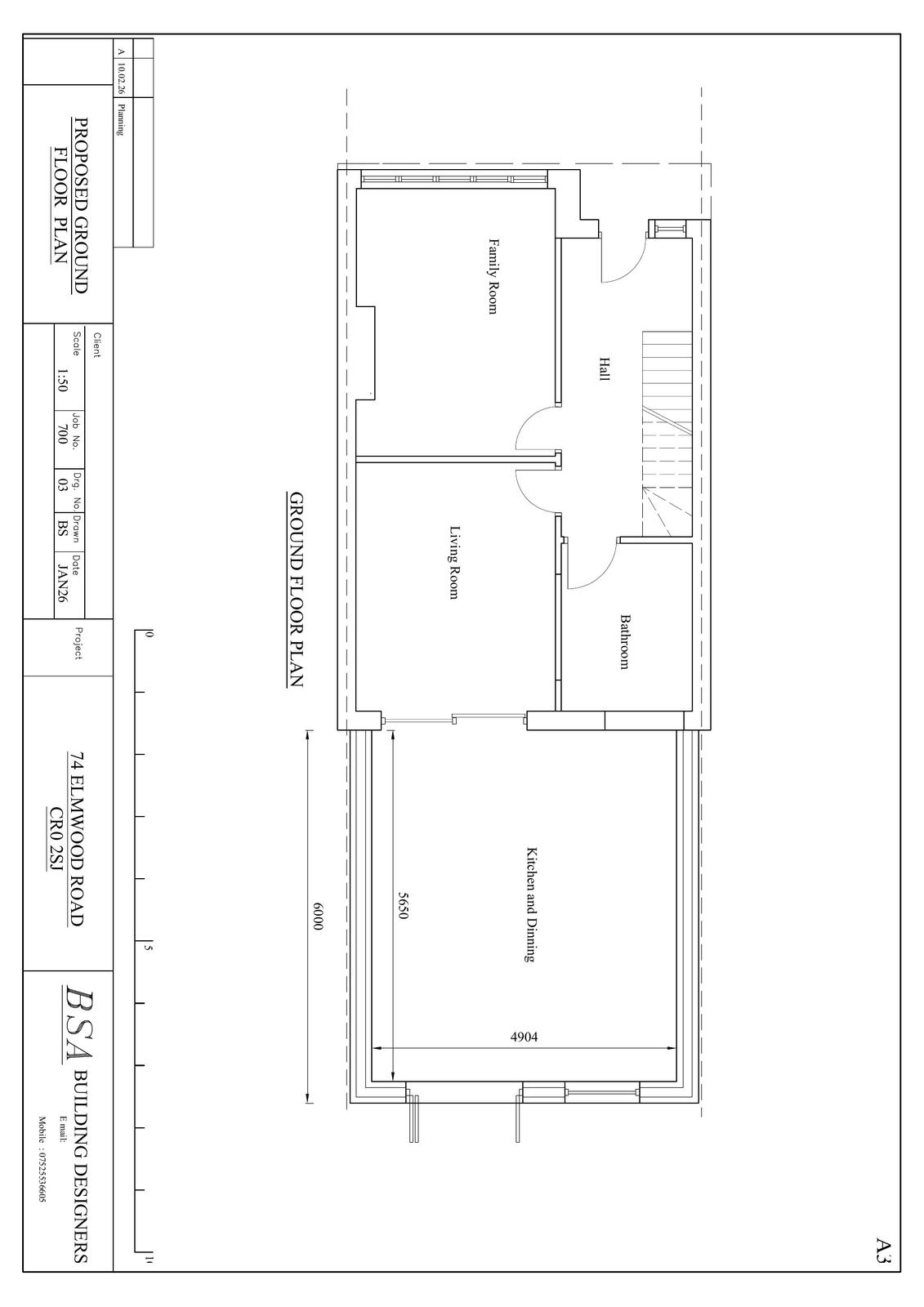
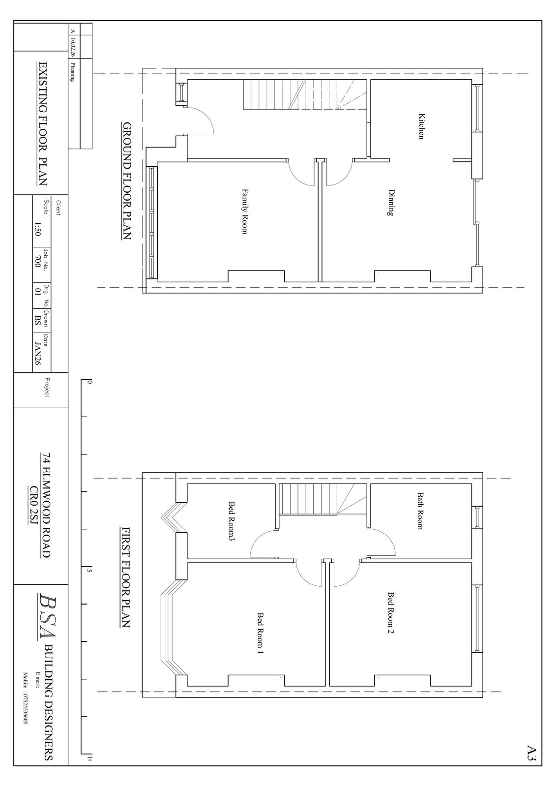
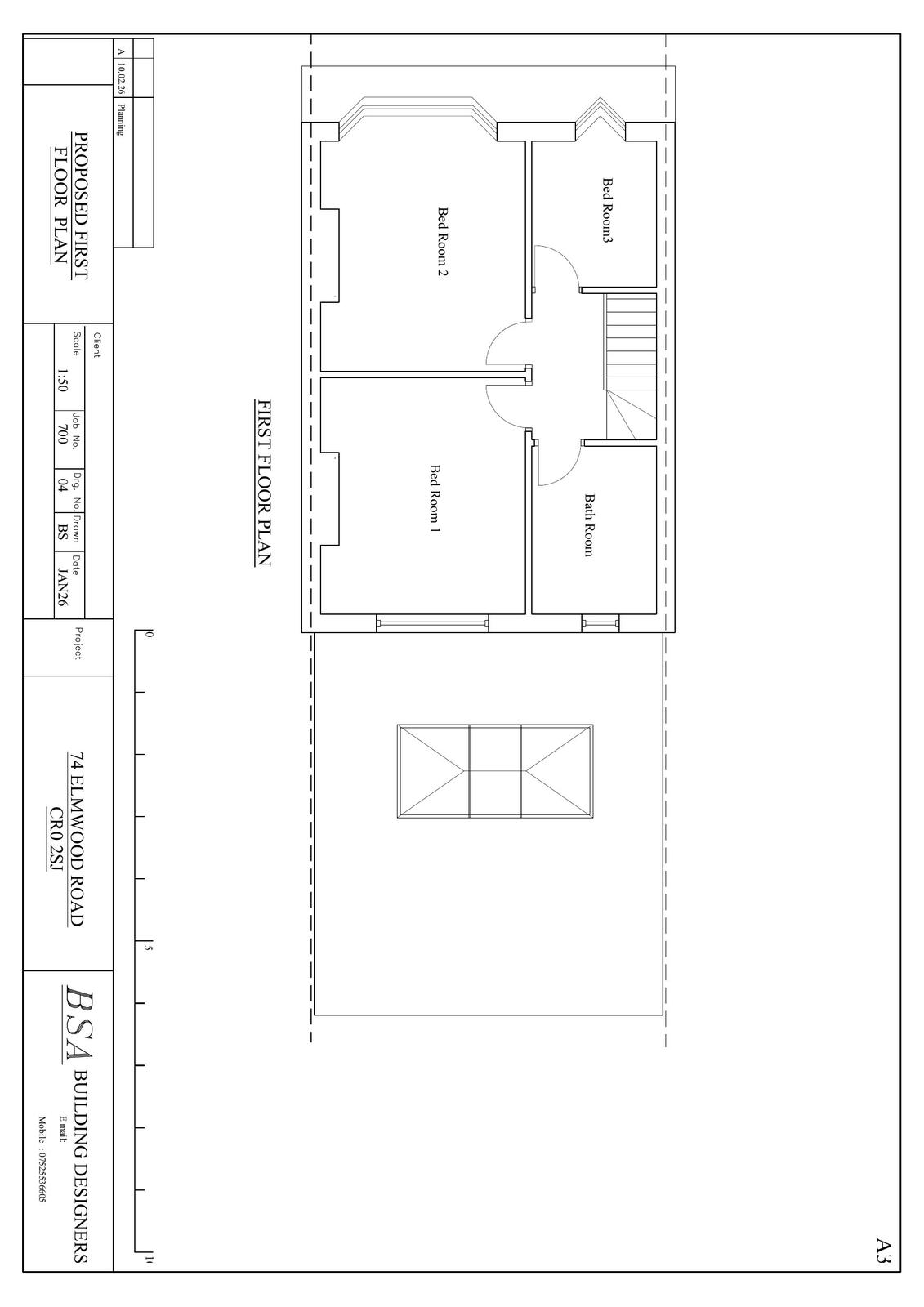
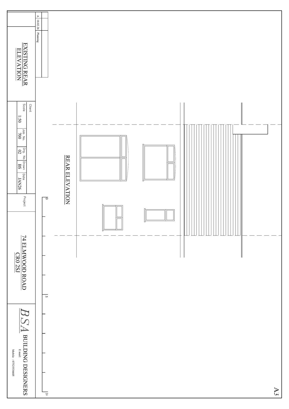
Full proposal

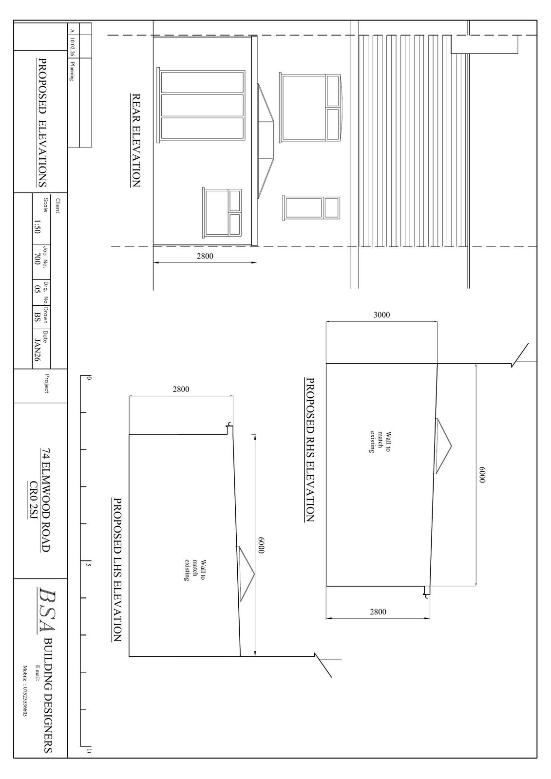
Erection of a single storey rear extension which projects out from the rear wall of the original house by 6 metres, with an eaves height of 2.8 metres and a maximum roof height of 3.2 metres

Have your say

Your comment matters. Councils must consider every representation that raises material planning considerations.

Write a comment