← Croydon

Status

Awaiting decision New housing
Received
Last month
New homes
1

Full proposal

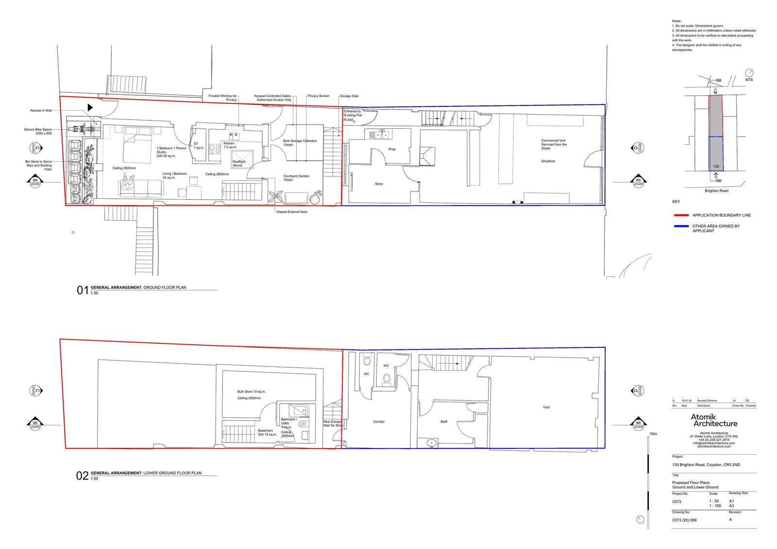
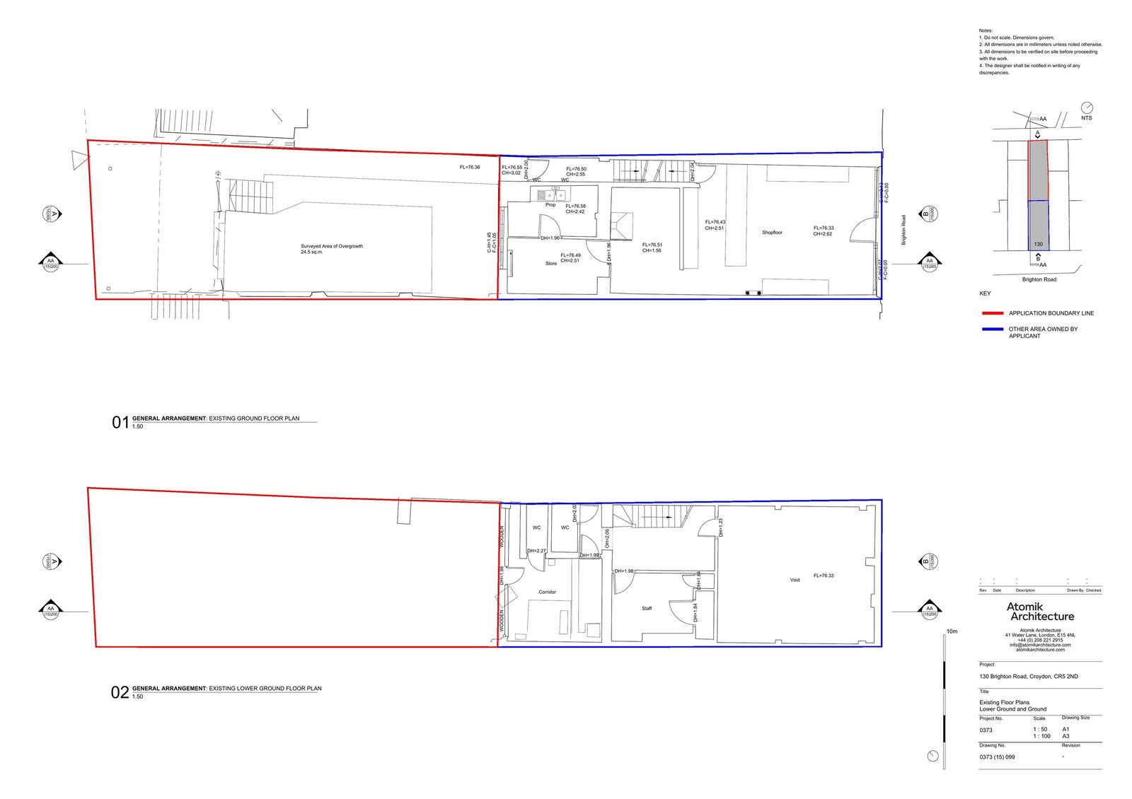
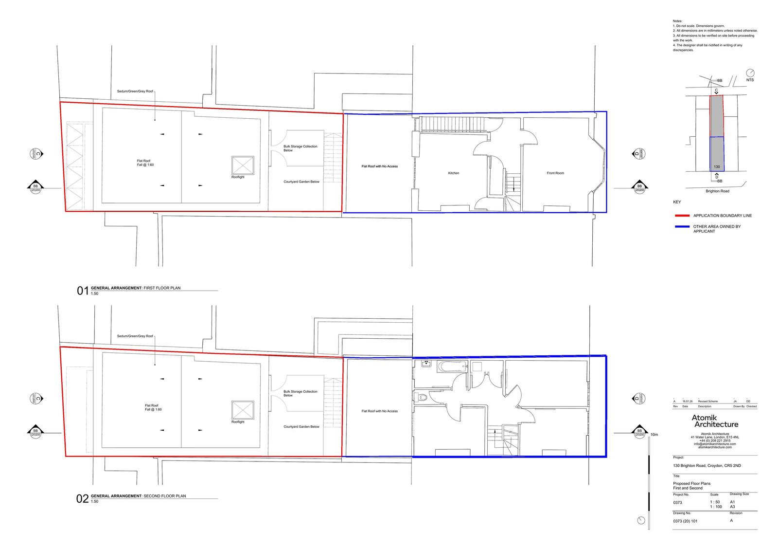
Creation of single residential dwelling (C3 use) and associated works.

Have your say

Your comment matters. Councils must consider every representation that raises material planning considerations.

Write a comment