← Croydon

Status

Awaiting decision Demolition
Received
Last month
New homes
0

Full proposal

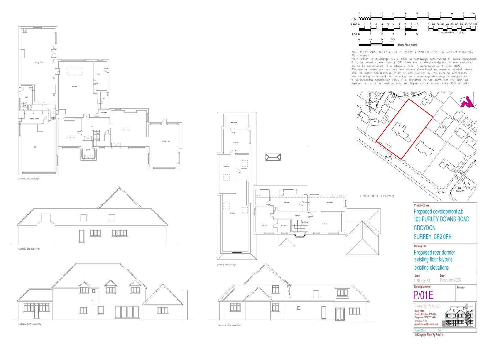
Demolition of two rear dormers and erection of one rear dormer.

Documents

FIRE STRATEGY REPORT
Statements / Assessments
Not yet archived · Original link
FLOOD RISK ASSESSMENT
Statements / Assessments
Not yet archived · Original link
Drawing
Archived · Original link

Have your say

Your comment matters. Councils must consider every representation that raises material planning considerations.

Write a comment