← Croydon

Status

Awaiting decision House extension
Received
Last month
New homes
0

Full proposal

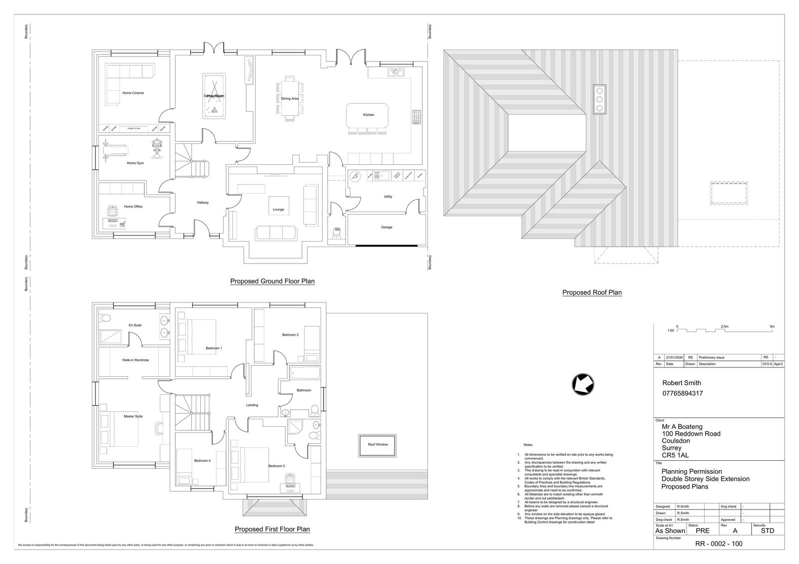
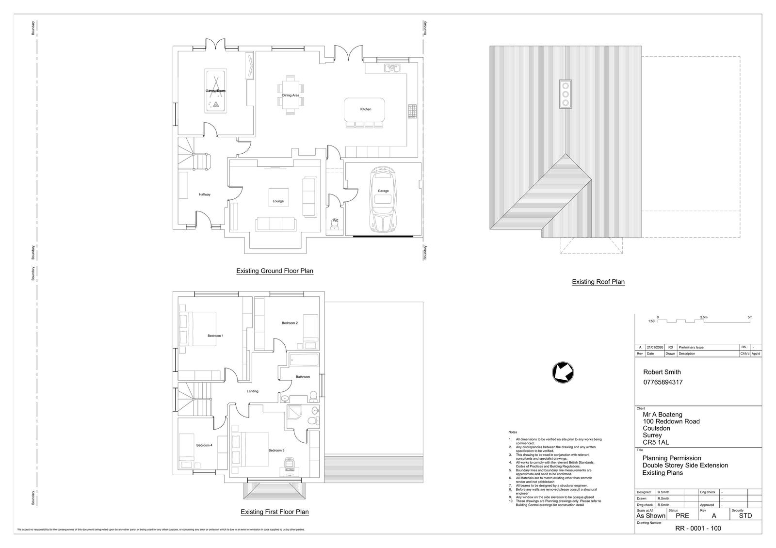
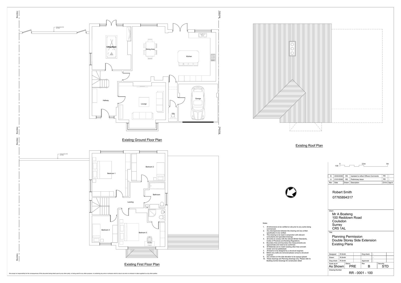
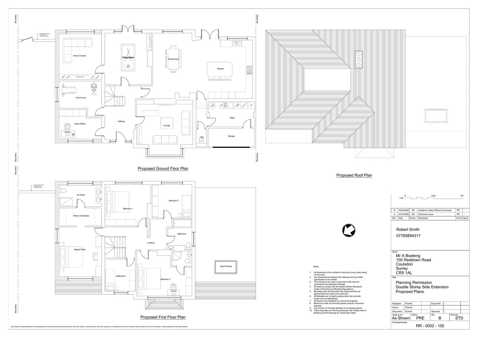
Alterations to include alterations to the existing garden wall and erection of a single/two storey side extension

Have your say

Your comment matters. Councils must consider every representation that raises material planning considerations.

Write a comment