26/00485/LP
Croydon
Status
Awaiting decision
House extension
Received
Last month
New homes
0
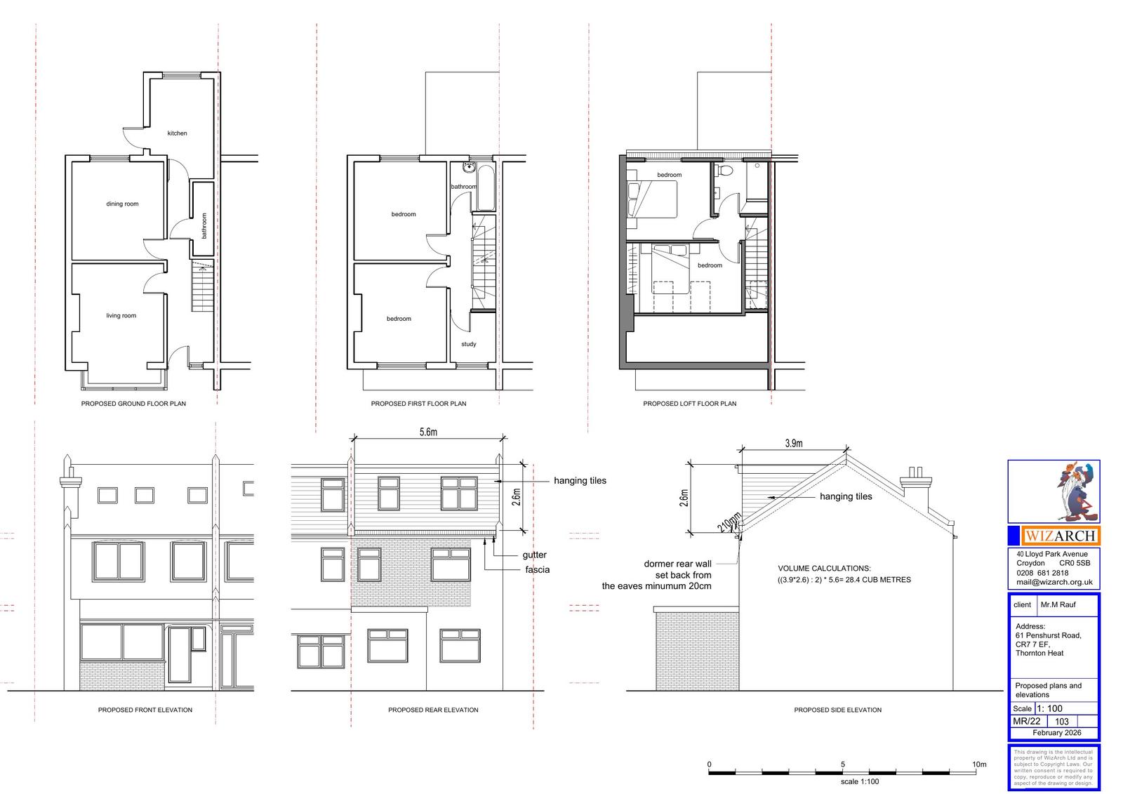
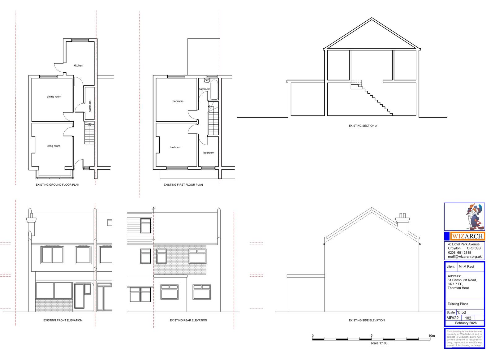
Full proposal
Erection of rear dormer loft extension and installation of 3x rooflights to front.
Documents
Have your say
Your comment matters. Councils must consider every representation that raises material planning considerations.