← Croydon

Status

Awaiting decision Change of use
Received
Last month
New homes
1

Full proposal

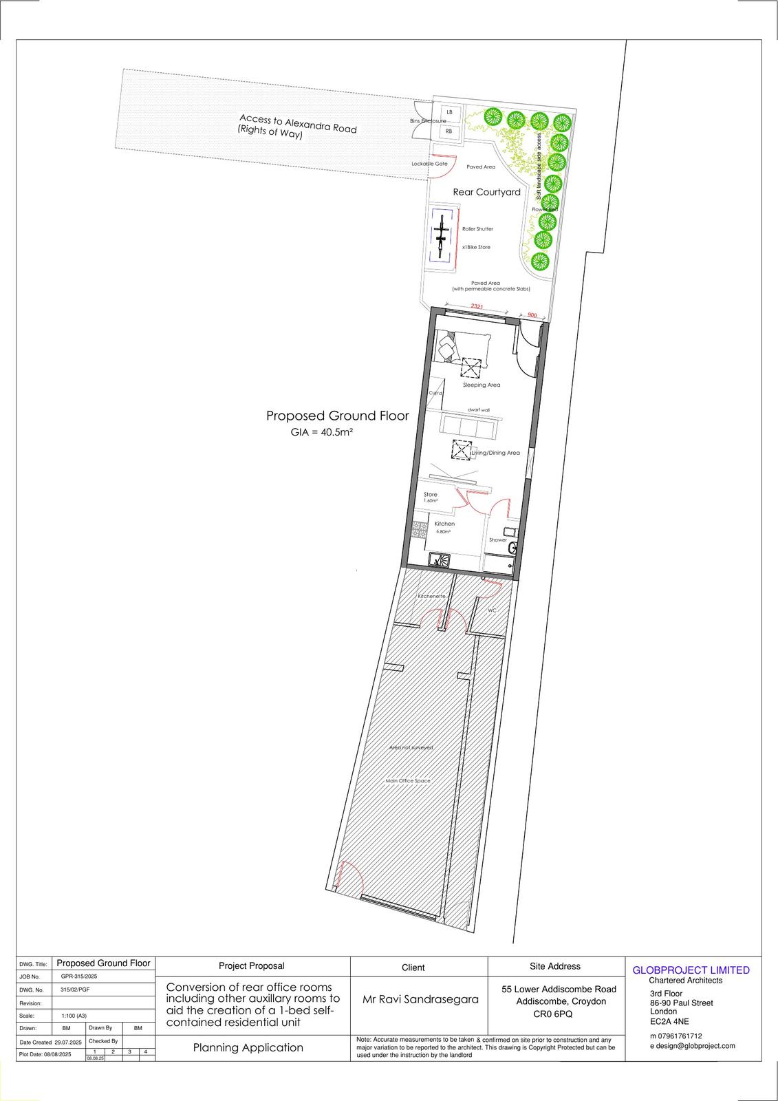
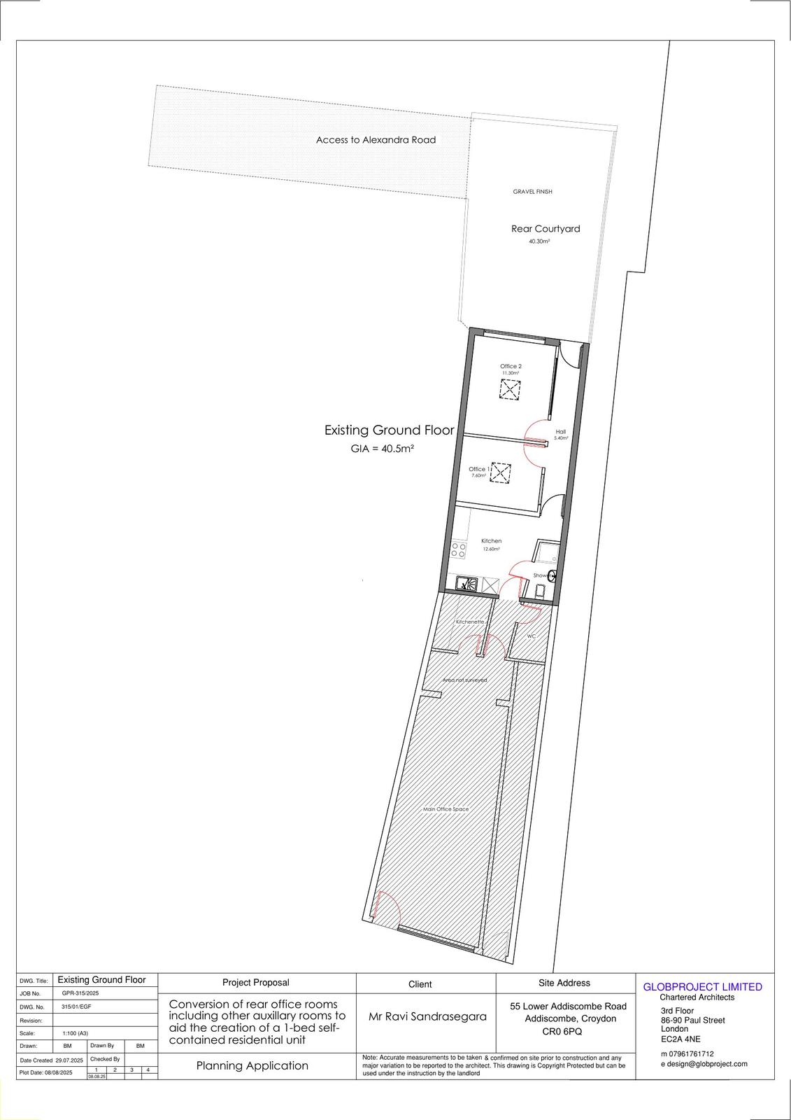
Conversion of office space at rear to create 1x one bedroom self contained flat with associated refuse, cycle storage and amenity space.

Documents

Drawing
Archived · Original link
Statements / Assessments
Archived · Original link
Statements / Assessments
Archived · Original link
Statements / Assessments
Archived · Original link
Drawing
Archived · Original link
Drawing
Archived · Original link
Drawing
Archived · Original link
Drawing
Archived · Original link
Drawing
Archived · Original link
Statements / Assessments
Archived · Original link
Drawing
Archived · Original link

Have your say

Your comment matters. Councils must consider every representation that raises material planning considerations.

Write a comment