← Croydon

Status

Awaiting decision House extension
Received
Last month
New homes
0

Full proposal

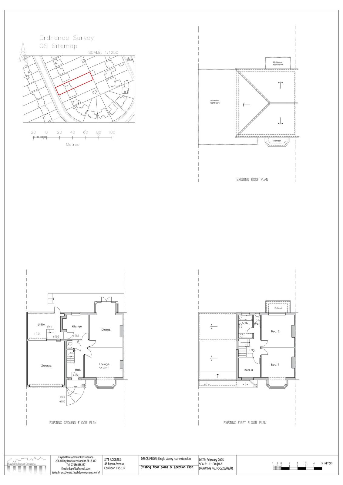
Erection of first floor side extension. Alterations include changes to roof form of existing garage/ utility room.

Documents

Drawing
Archived · Original link
Drawing
Archived · Original link
Statements / Assessments
Archived · Original link
Statements / Assessments
Archived · Original link
Drawing
Archived · Original link
Drawing
Archived · Original link

Have your say

Your comment matters. Councils must consider every representation that raises material planning considerations.

Write a comment