← Croydon

Status

Awaiting decision House extension
Received
Last month
New homes
0

Full proposal

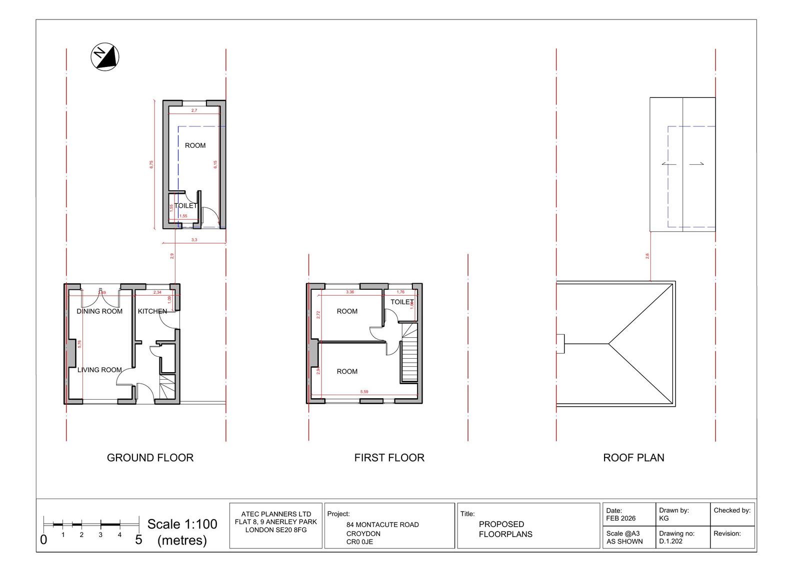
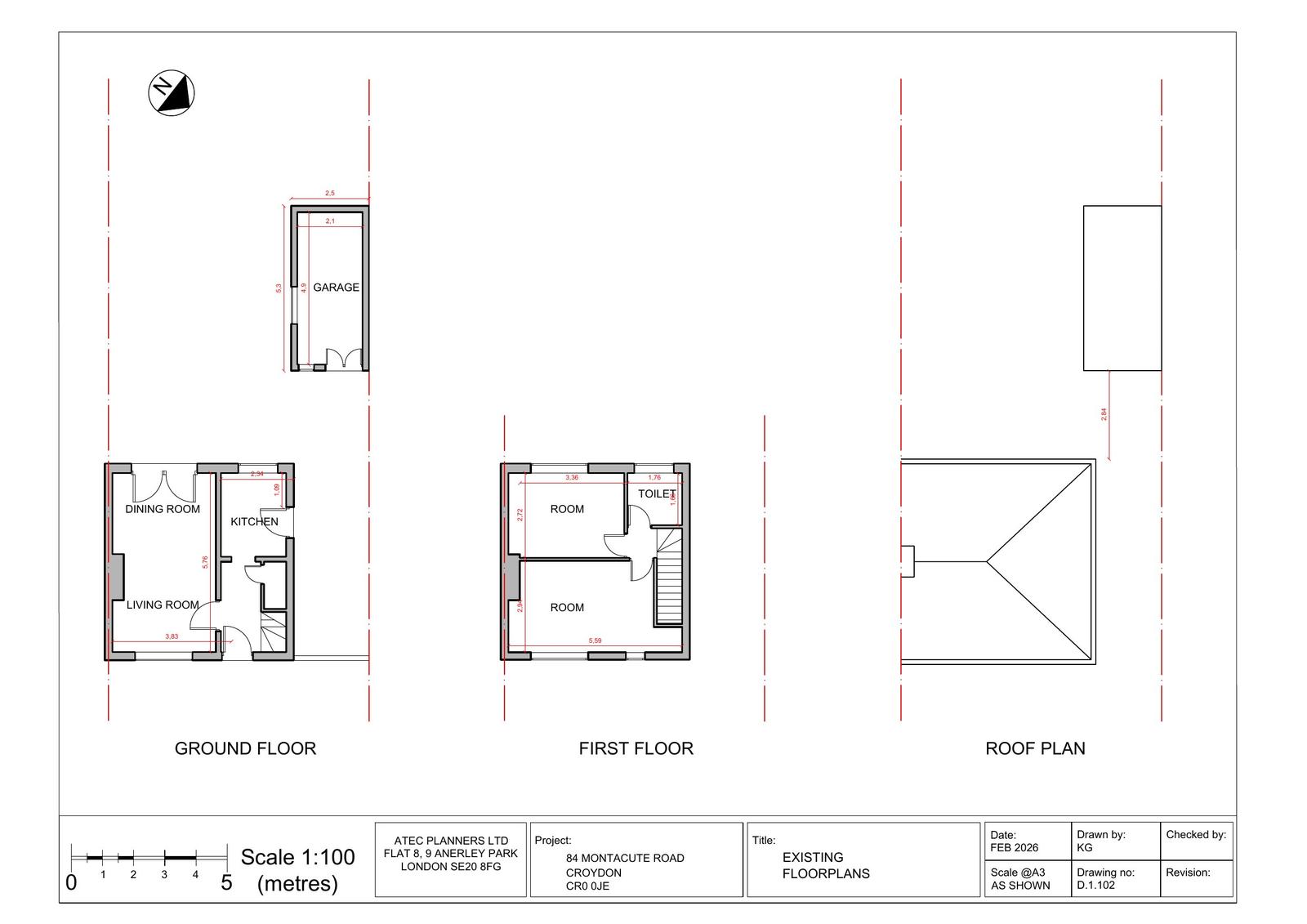
Extension of existing garage and change of use to make it into a habitable room

Documents

ADDITIONAL PLANS
Drawing
Not yet archived · Original link
Statements / Assessments
Archived · Original link
Drawing
Archived · Original link
Drawing
Archived · Original link
PHOTOGRAPHS AND PHOTOMONTAGES
Drawing
Not yet archived · Original link
Drawing
Archived · Original link

Have your say

Your comment matters. Councils must consider every representation that raises material planning considerations.

Write a comment