← Croydon

Status

Awaiting decision House extension
Received
Last month
New homes
0

Full proposal

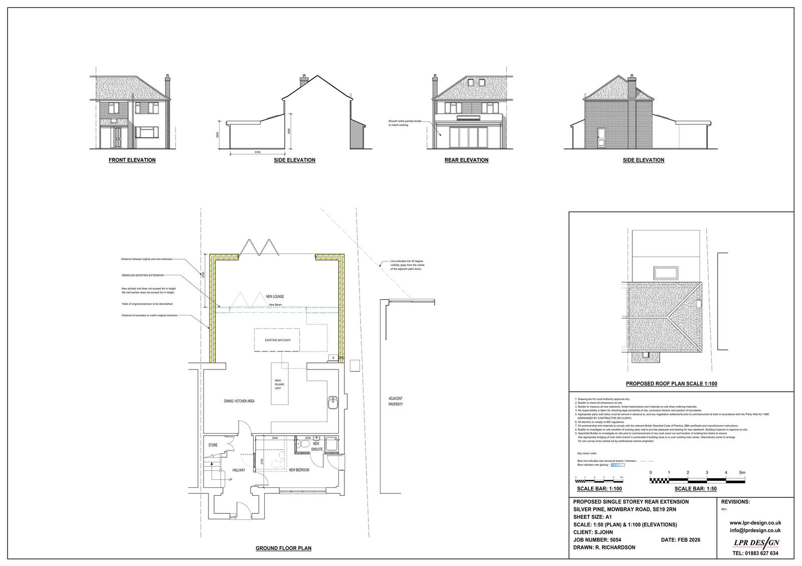
Erection of a single storey rear extension which projects out from the rear wall of the original house by 5.7 metres, with an eaves height of 3.6 metres and a maximum roof height of 2.8 metres.

Documents

Drawing
Archived · Original link
Drawing
Archived · Original link

Have your say

Your comment matters. Councils must consider every representation that raises material planning considerations.

Write a comment