26/00534/HSE
Croydon
Status
Awaiting decision
House extension
Received
Last month
New homes
0
Full proposal
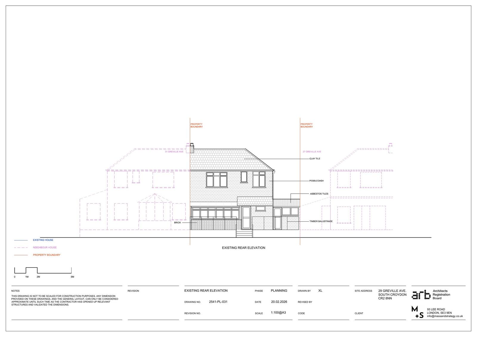
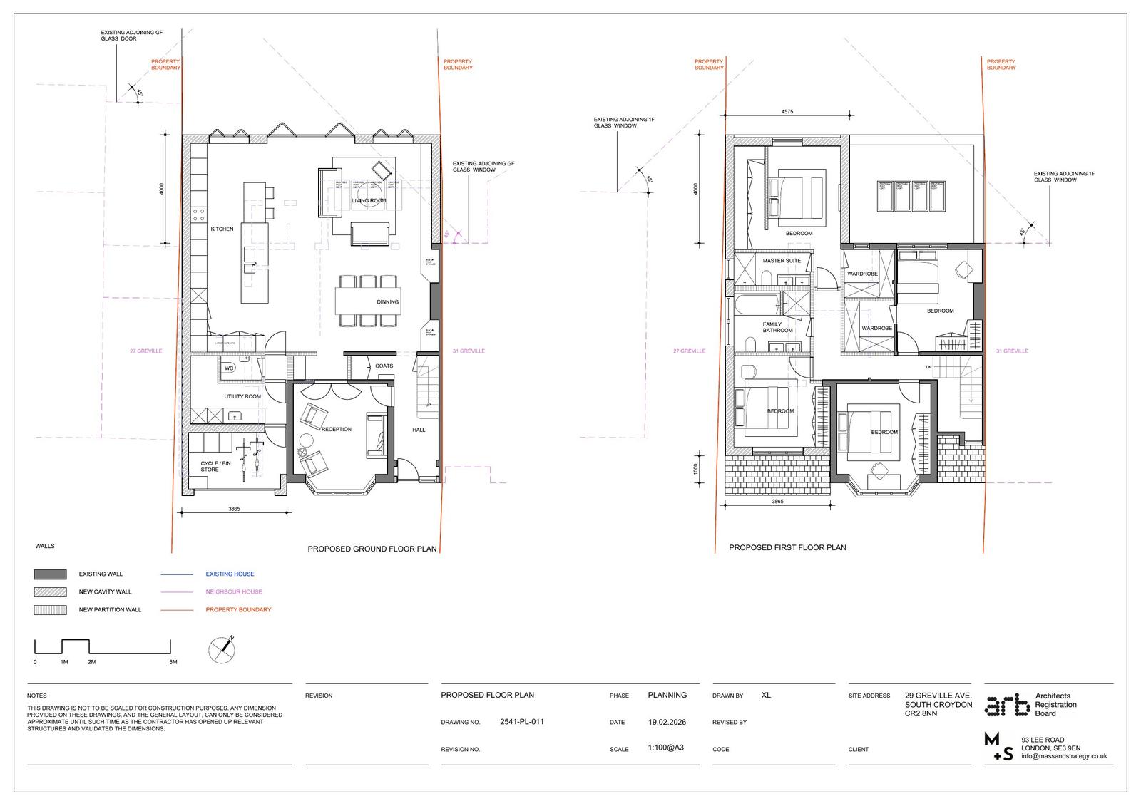
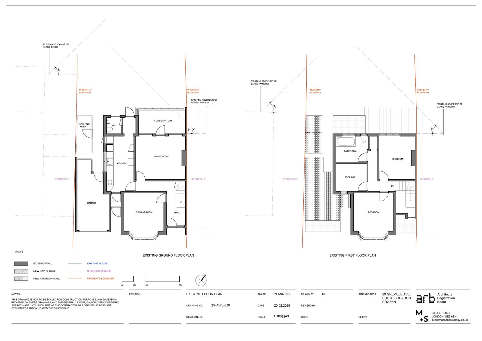
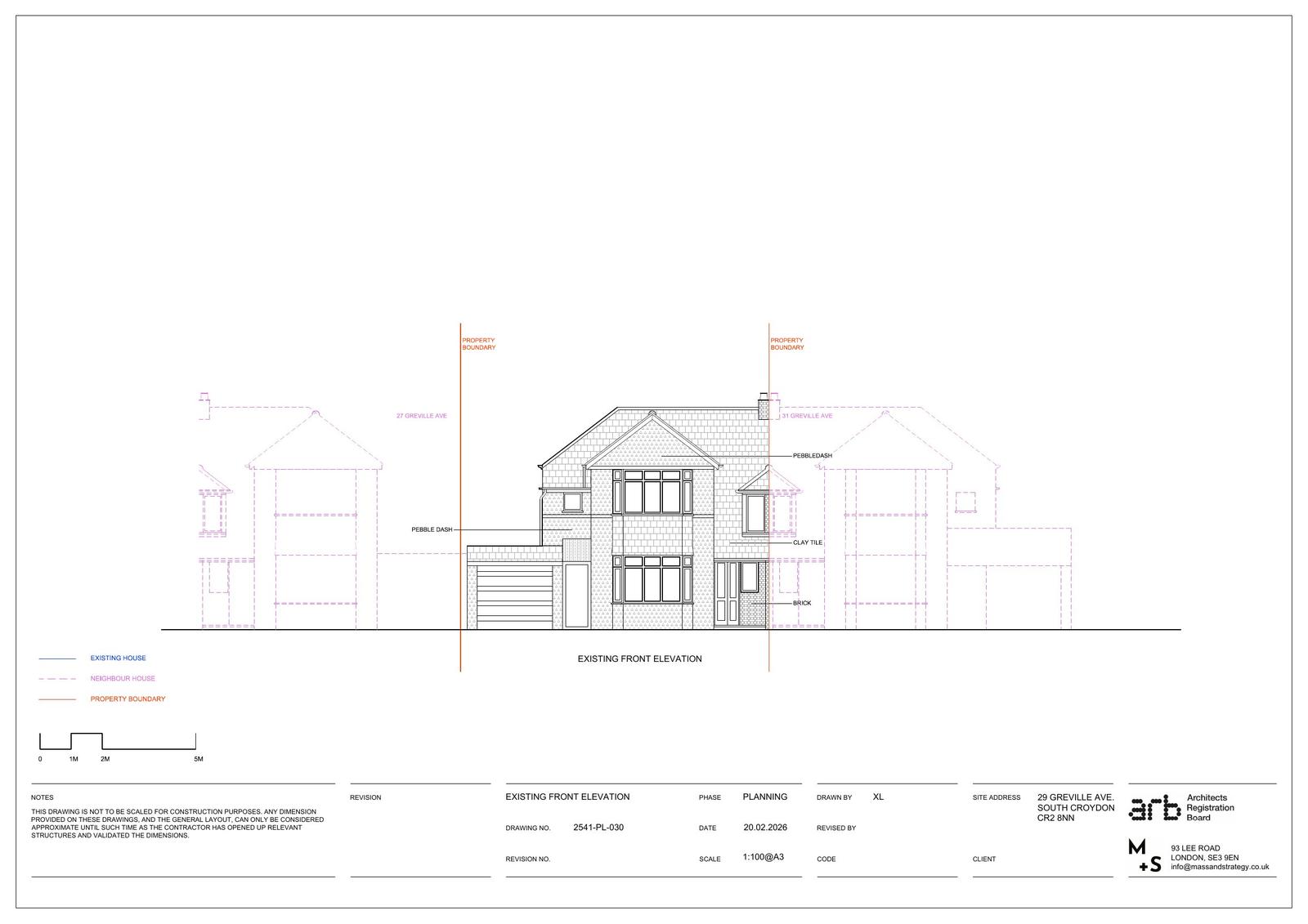
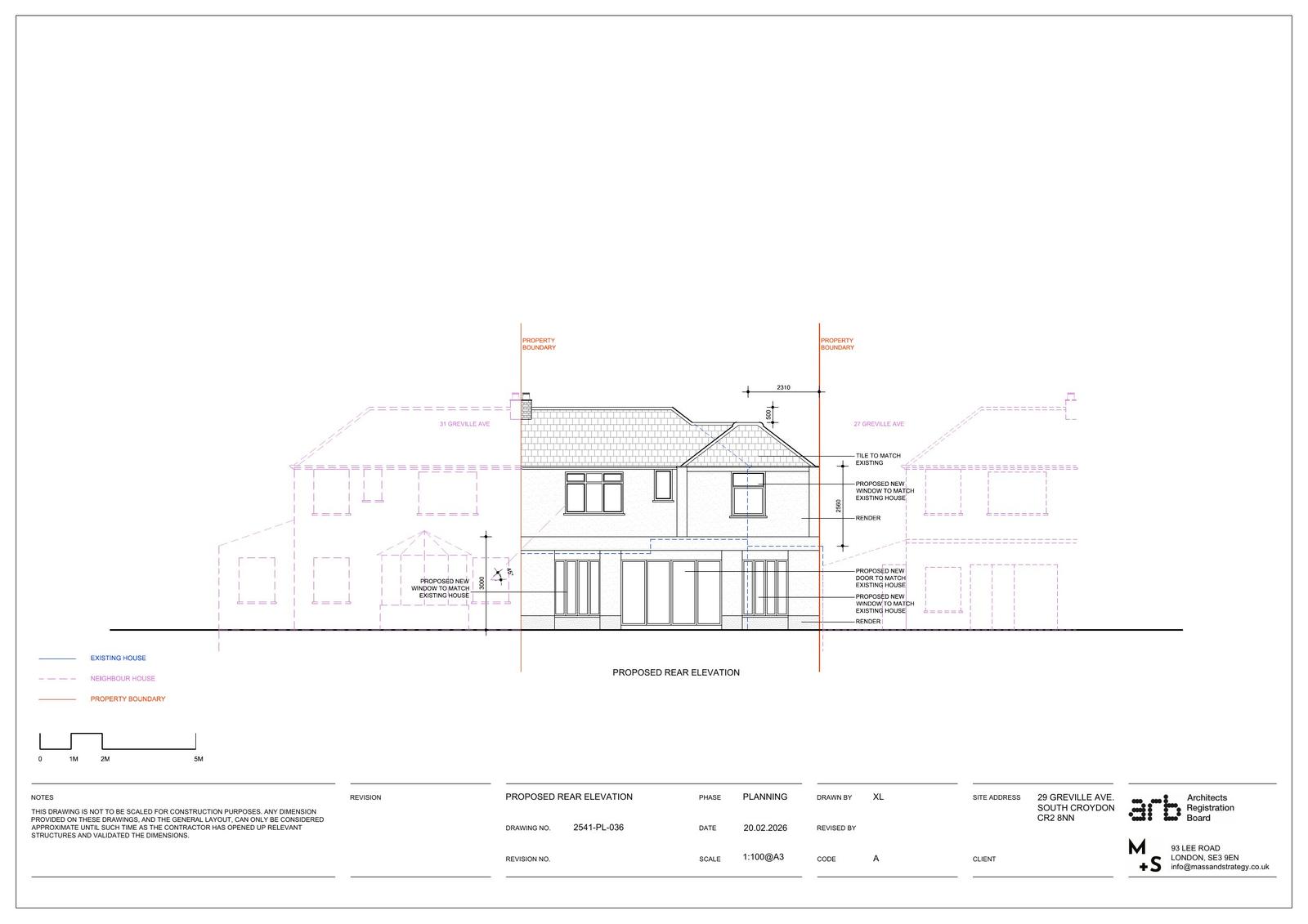
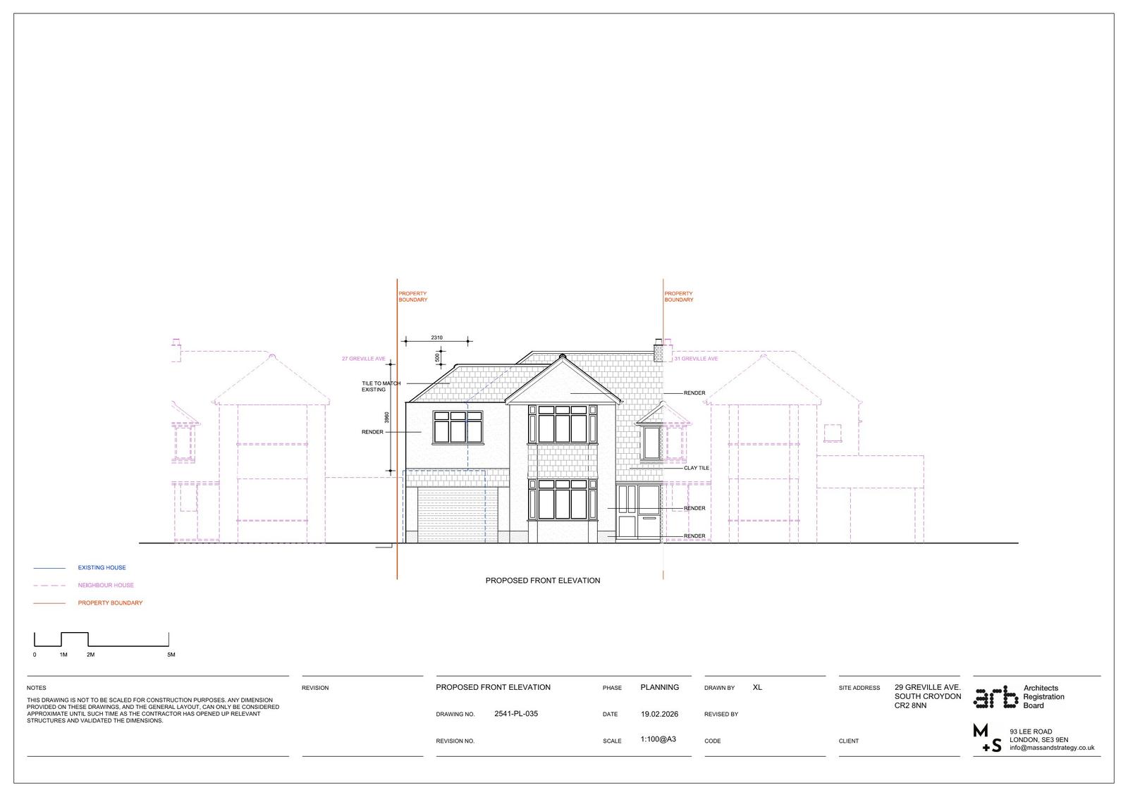
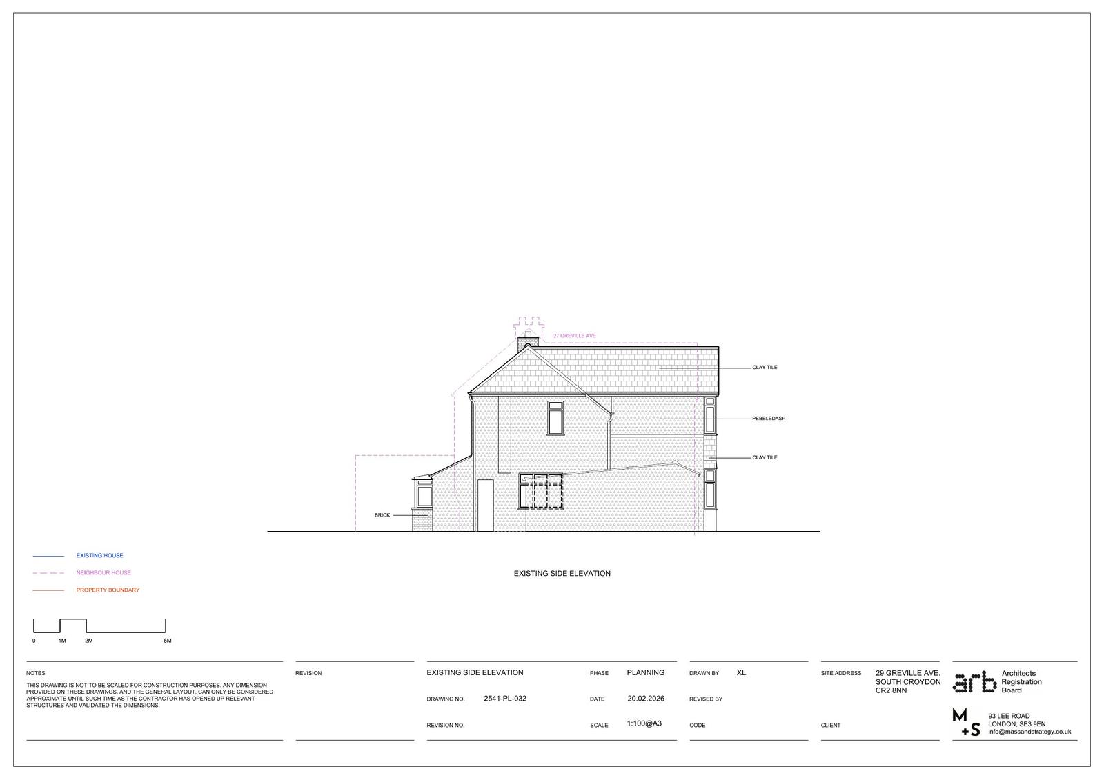
demolition of the existing garage and erection of a double storey side extension, a ground floor rear extension and a first floor rear extension
Documents
Have your say
Your comment matters. Councils must consider every representation that raises material planning considerations.