← Croydon

Status

Awaiting decision House extension
Received
Last month
New homes
0

Full proposal

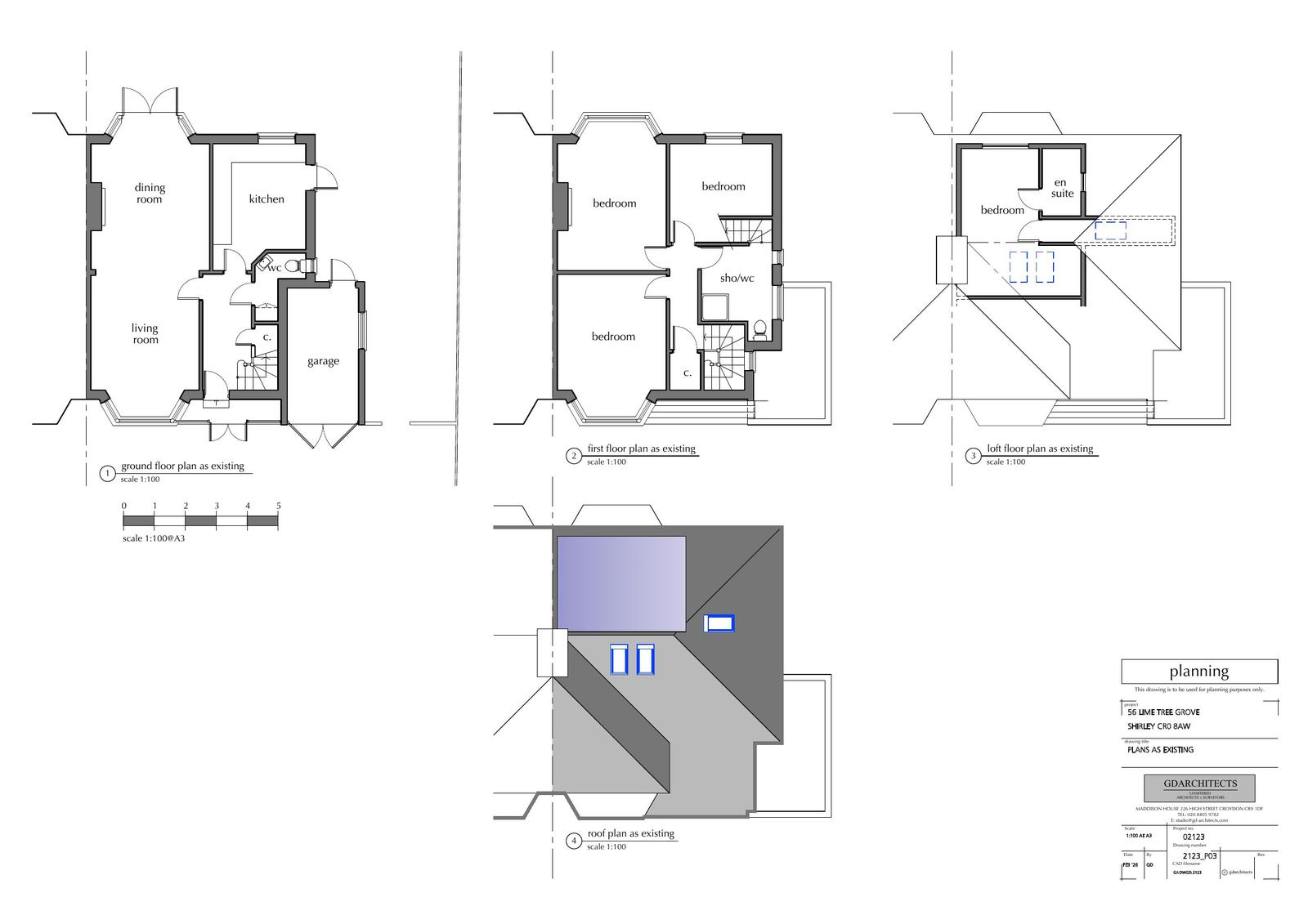
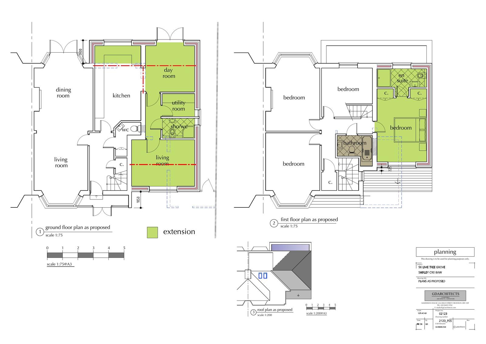
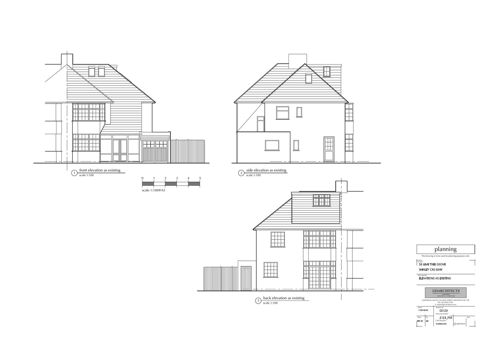
Demolition of existing garage. Erection of a two storey/single storey side and single storey rear extensions.

Documents

Drawing
Archived · Original link
Drawing
Archived · Original link
Statements / Assessments
Archived · Original link
Statements / Assessments
Archived · Original link
Drawing
Archived · Original link
Drawing
Archived · Original link
Drawing
Archived · Original link

Have your say

Your comment matters. Councils must consider every representation that raises material planning considerations.

Write a comment