← Croydon

Status

Awaiting decision House extension
Received
Last month
New homes
0

Full proposal

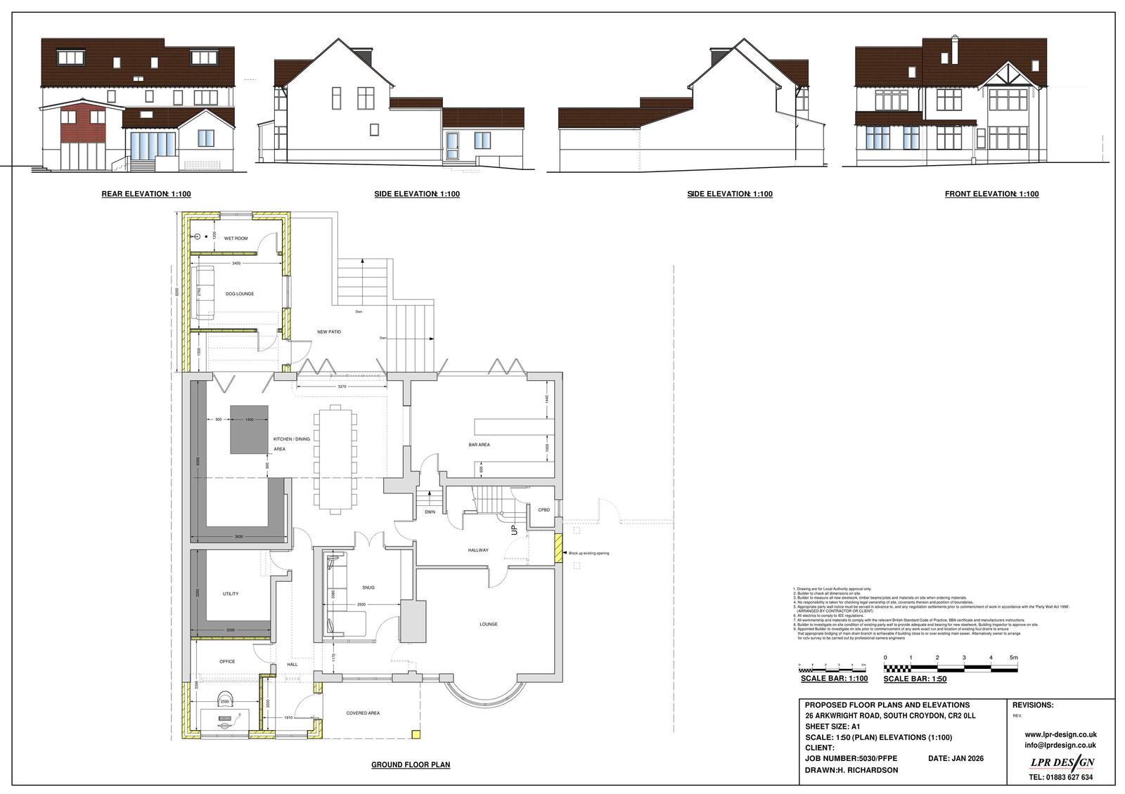
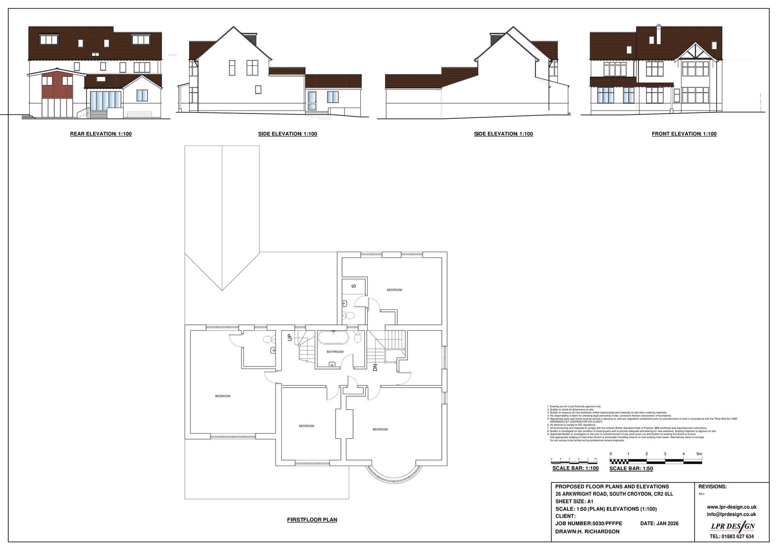
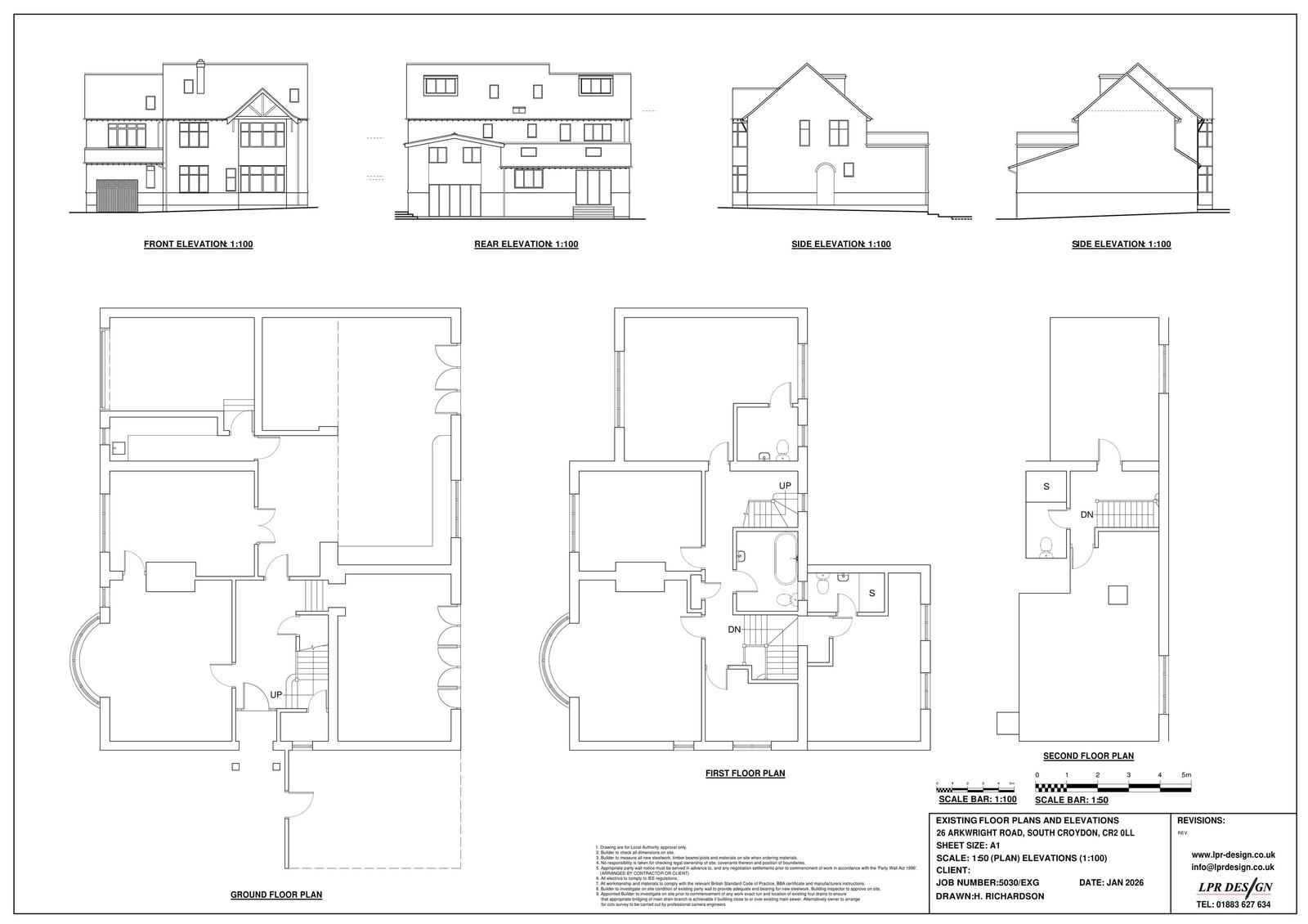
Alterations, erection of single storey front extension and single storey rear extension with raised terrace

Documents

Statements / Assessments
Archived · Original link
Statements / Assessments
Archived · Original link
Drawing
Archived · Original link

Have your say

Your comment matters. Councils must consider every representation that raises material planning considerations.

Write a comment