← Croydon

Status

Awaiting decision House extension
Received
Last month
New homes
0

Full proposal

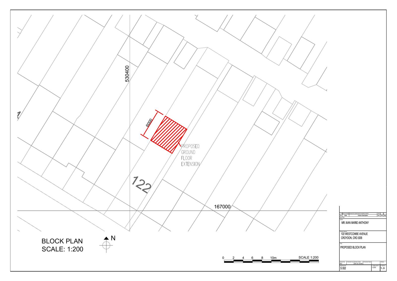
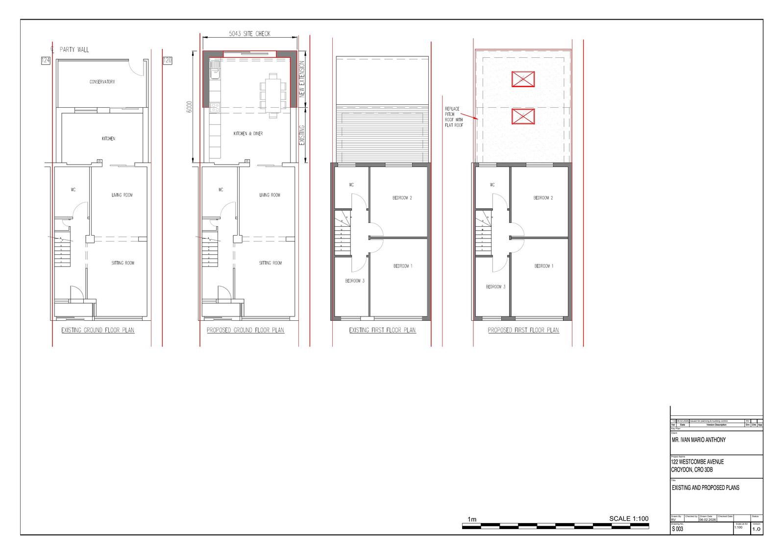
Erection of a single storey rear extension which projects out from the rear wall of the existing property by 6 metres in total, (which includes the existing single storey extension), with an eaves height of 2.96 metres and a maximum overall height of 3.10 metres

Have your say

Your comment matters. Councils must consider every representation that raises material planning considerations.

Write a comment