← Croydon

Status

Awaiting decision House extension
Received
Last month
New homes
0

Full proposal

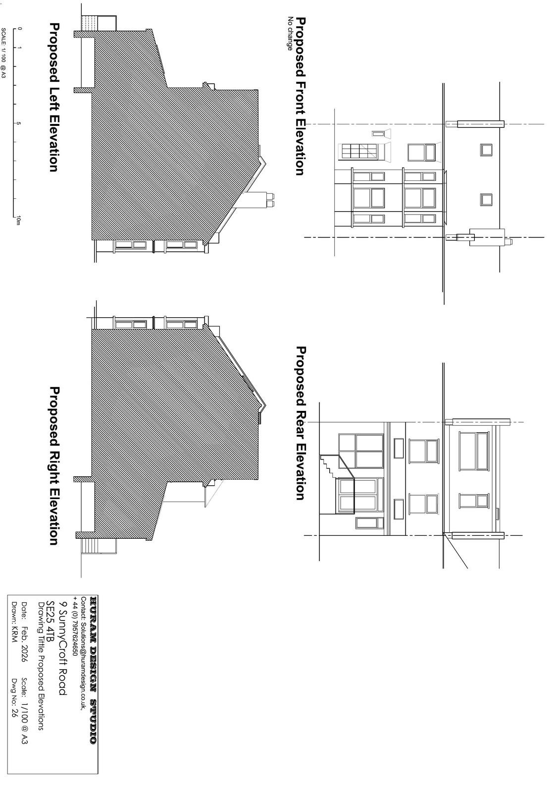
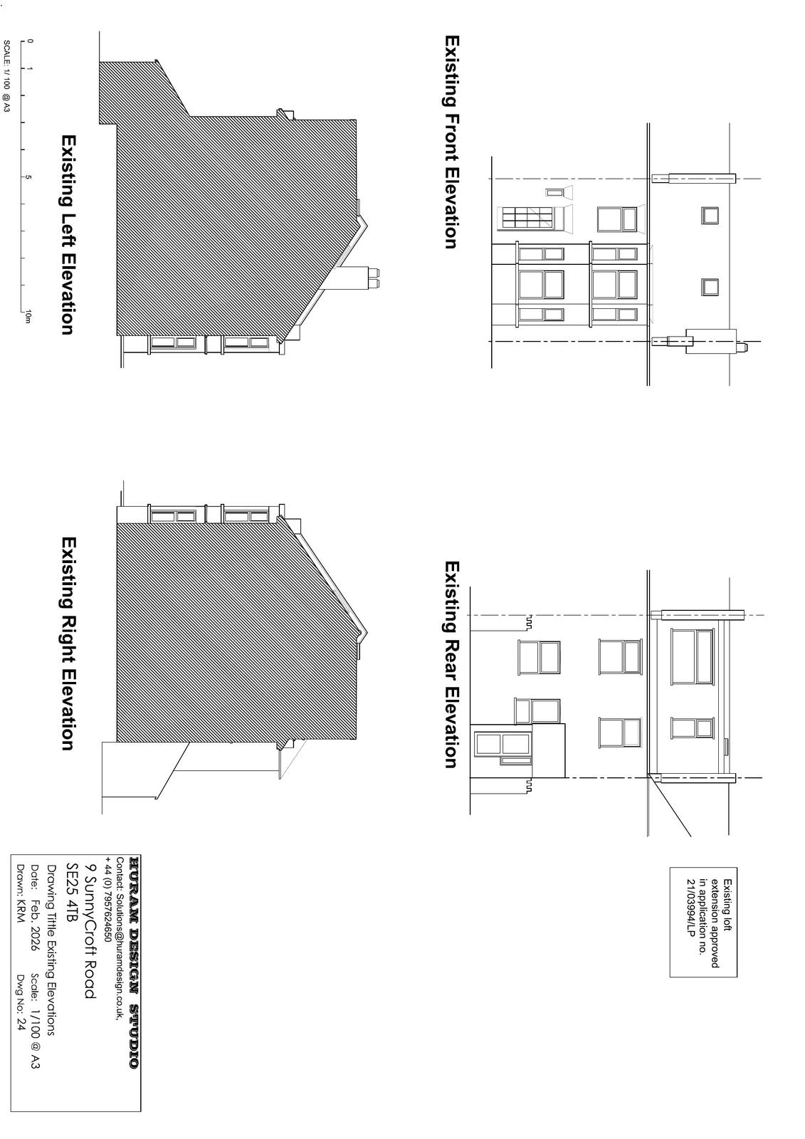
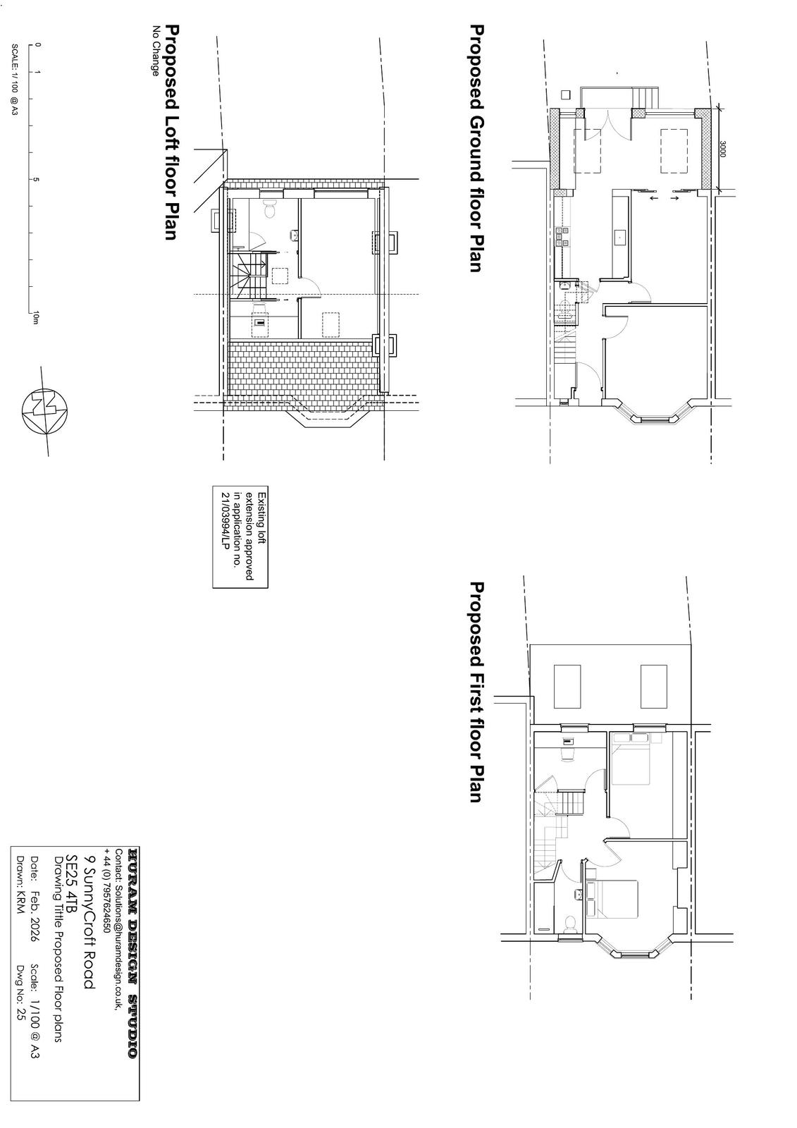
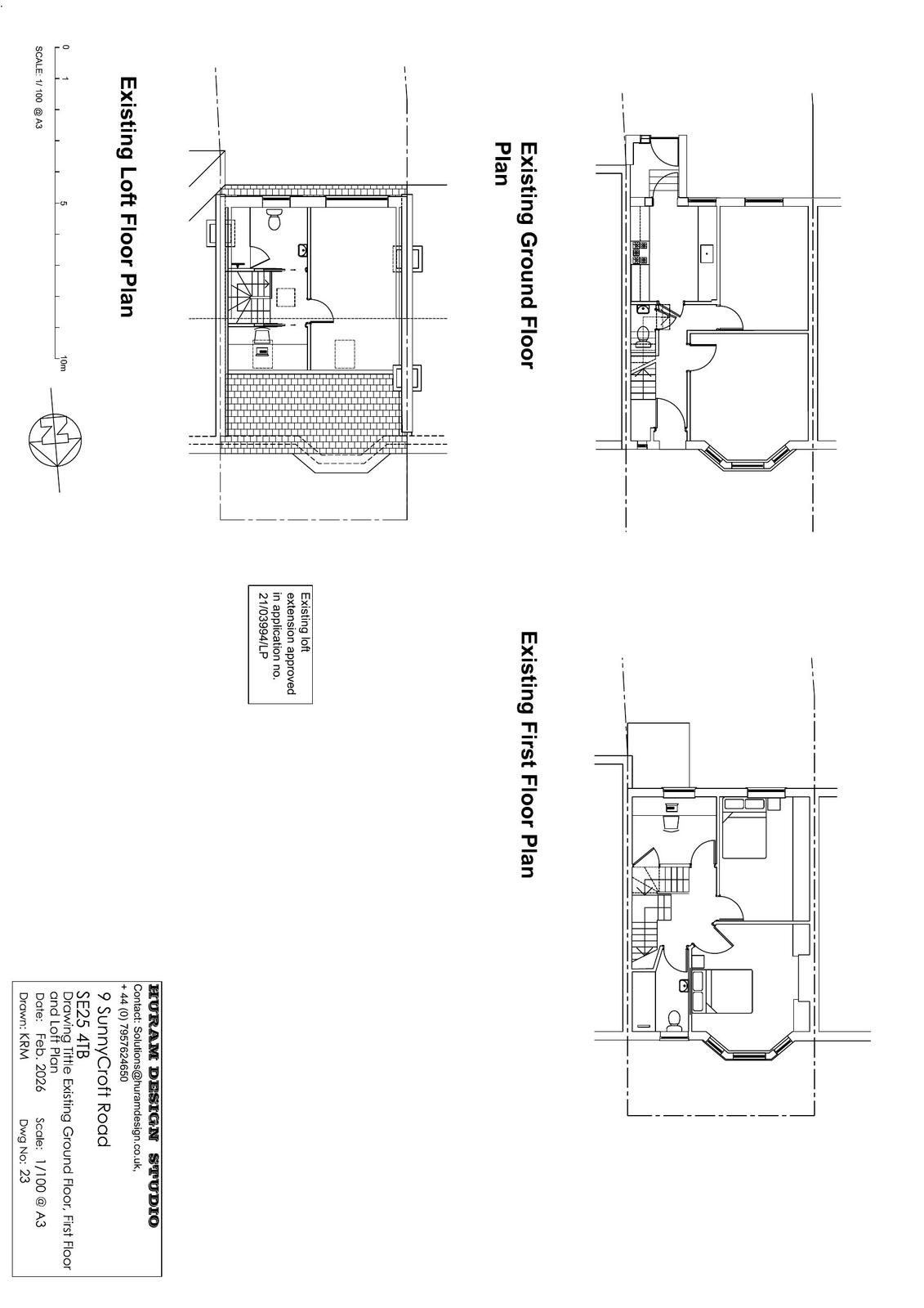
Erection of ground floor rear extension with two roof lights and steps to the garden.

Have your say

Your comment matters. Councils must consider every representation that raises material planning considerations.

Write a comment