← Croydon

Status

Awaiting decision House extension
Received
Last month
New homes
0

Full proposal

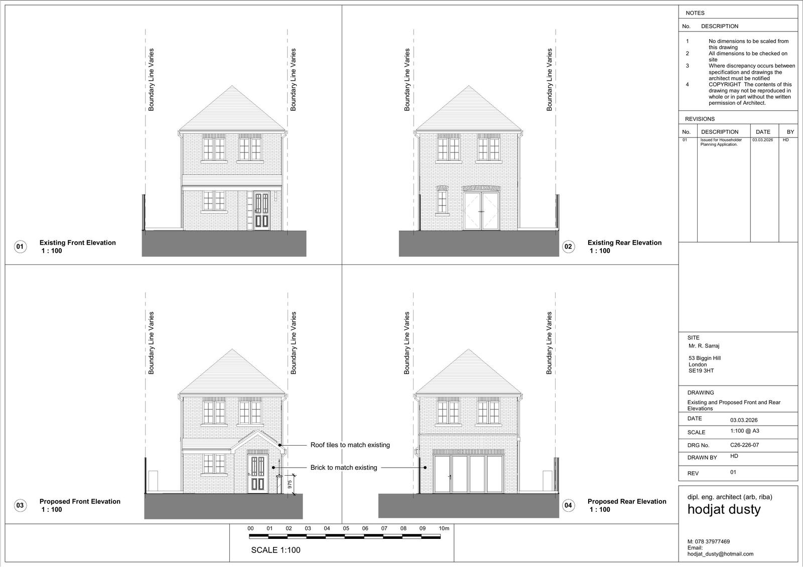
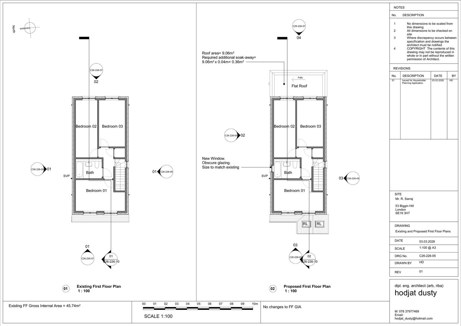
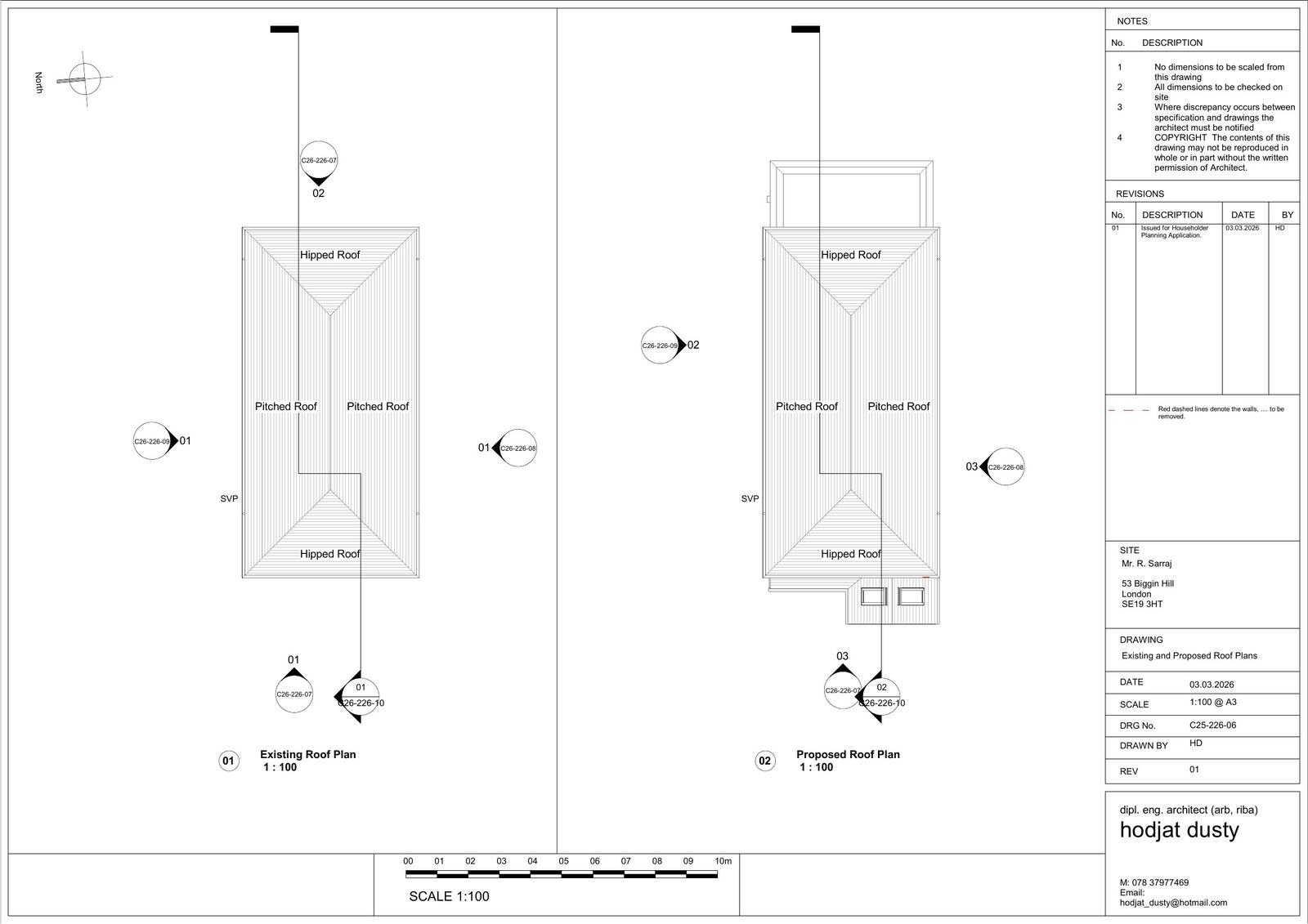
Erection of front porch and single storey rear extension. Erection of front access gates and perimeter walls and metal railing.

Have your say

Your comment matters. Councils must consider every representation that raises material planning considerations.

Write a comment