← Croydon

Status

Awaiting decision House extension
Received
Last month
New homes
0

Full proposal

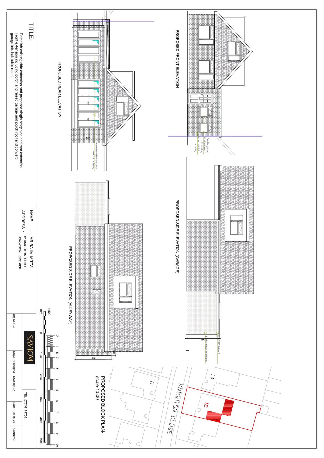
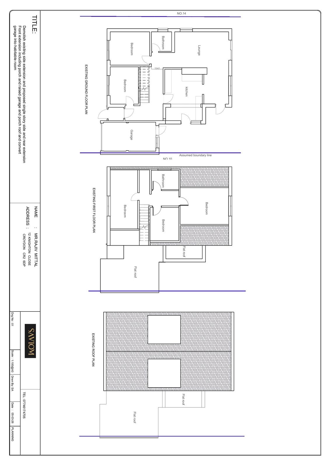
Erection of single storey rear and side extension. Conversion of garage into habitable room including raising of garage roof and front extension to include porch

Documents

Drawing
Archived · Original link
Drawing
Archived · Original link
Statements / Assessments
Archived · Original link
Statements / Assessments
Archived · Original link
Drawing
Archived · Original link
Drawing
Archived · Original link

Have your say

Your comment matters. Councils must consider every representation that raises material planning considerations.

Write a comment