← Croydon

Status

Awaiting decision House extension
Received
Last month
New homes
0

Full proposal

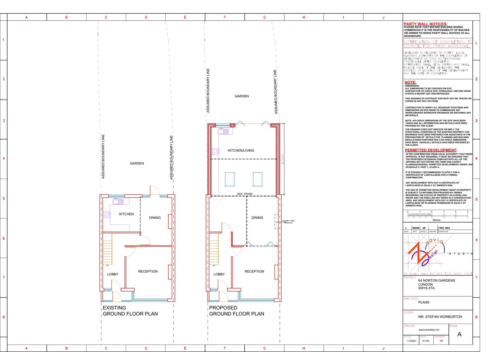
Erection of a single storey rear extension which projects out by 6m metres from the rear wall of the original house, with an eaves height of 2.90 metres and a maximum overall height of 3 metres

Have your say

Your comment matters. Councils must consider every representation that raises material planning considerations.

Write a comment