← Darlington Borough Council

Status

Awaiting decision Change of use
Received
03 Jul 2025
New homes
1

Full proposal

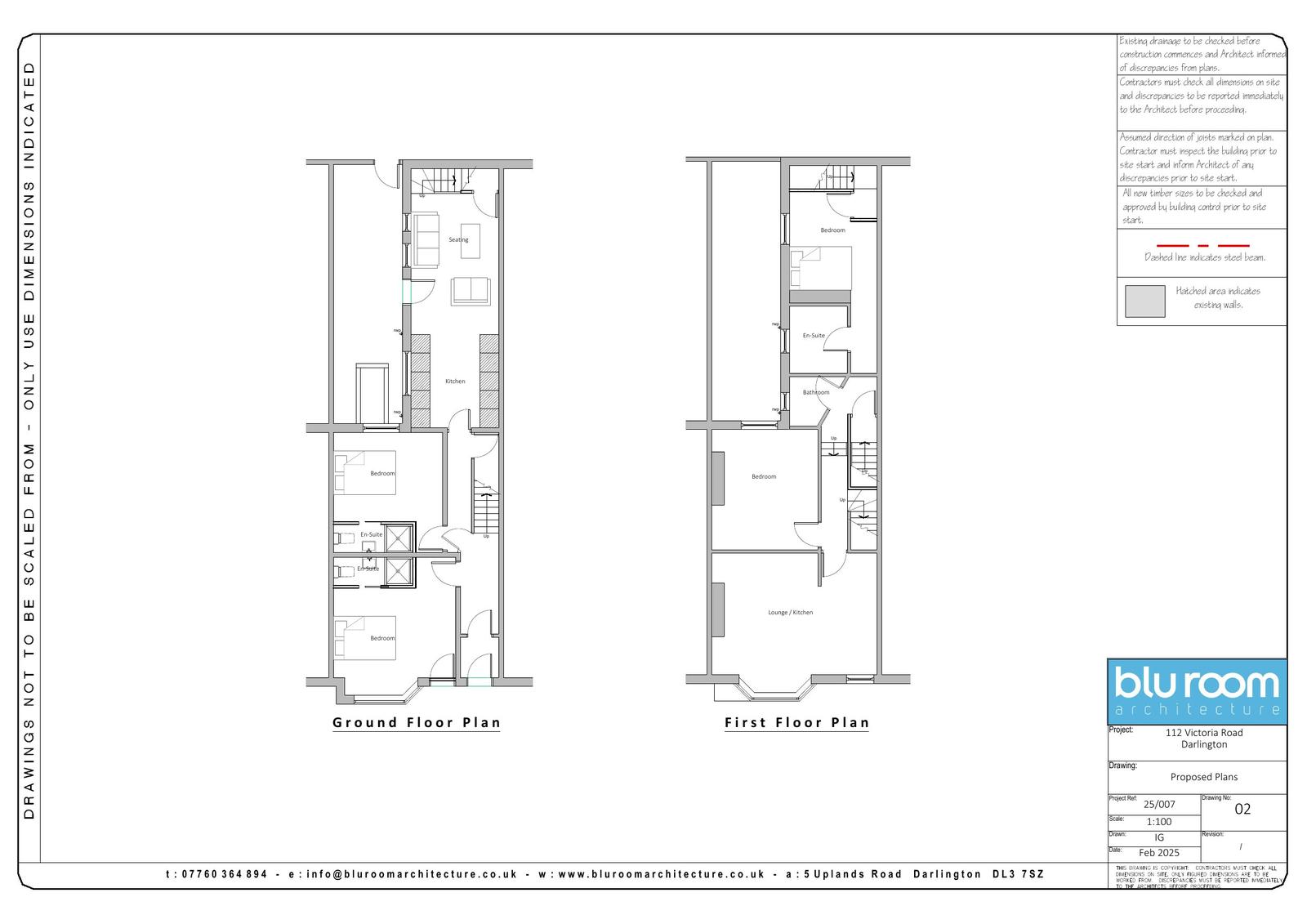
Conversion of shop (Use Class E) at ground floor and part conversion of 1 No. 2 bed self contained flat(Use Class C3) at first floor to 3 bed HMO (Use Class C4) at ground and first floor and 1 No. 1 bed self contained flat (Use Class C3) at first floor together with associated works including blocking up door to rear

Documents

APPLICATIONFORMREDACTED
Application Form
Not yet archived · Original link
ENVIRONMENTAL HEALTH OFFICER
Comment Consultee
Not yet archived · Original link
ENVIRONMENTAL HEALTH OFFICER
Comment Consultee
Not yet archived · Original link
EXISTING PLANS
Drawing
Not yet archived · Original link
Flood Risk Assessment
Flood Risk Assessment
Not yet archived · Original link
HIGHWAYS ENGINEER
Comment Consultee
Not yet archived · Original link
LOCATION PLAN
Location Plan
Not yet archived · Original link
NITRATE CALCULATOR EXCEL
Other
Not yet archived · Original link
OBJECTION - A TUCKER
Comment Objection
Not yet archived · Original link
OBJECTION - M BALL
Comment Objection
Not yet archived · Original link
POLICE ALO
Comment Consultee
Not yet archived · Original link
POLICE ALO
Comment Consultee
Not yet archived · Original link
PRIVATE SECTOR HOUSING
Comment Consultee
Not yet archived · Original link
PRIVATE SECTOR HOUSING
Comment Consultee
Not yet archived · Original link
Drawing Revised
Archived · Original link
Drawing Superseded
Archived · Original link
RESPONSE - NATS SAFEGUARDING
Comment Consultee
Not yet archived · Original link

Have your say

Your comment matters. Councils must consider every representation that raises material planning considerations.

Write a comment