← Darlington Borough Council

Status

Awaiting decision Commercial
Received
15 Dec 2025
New homes
0

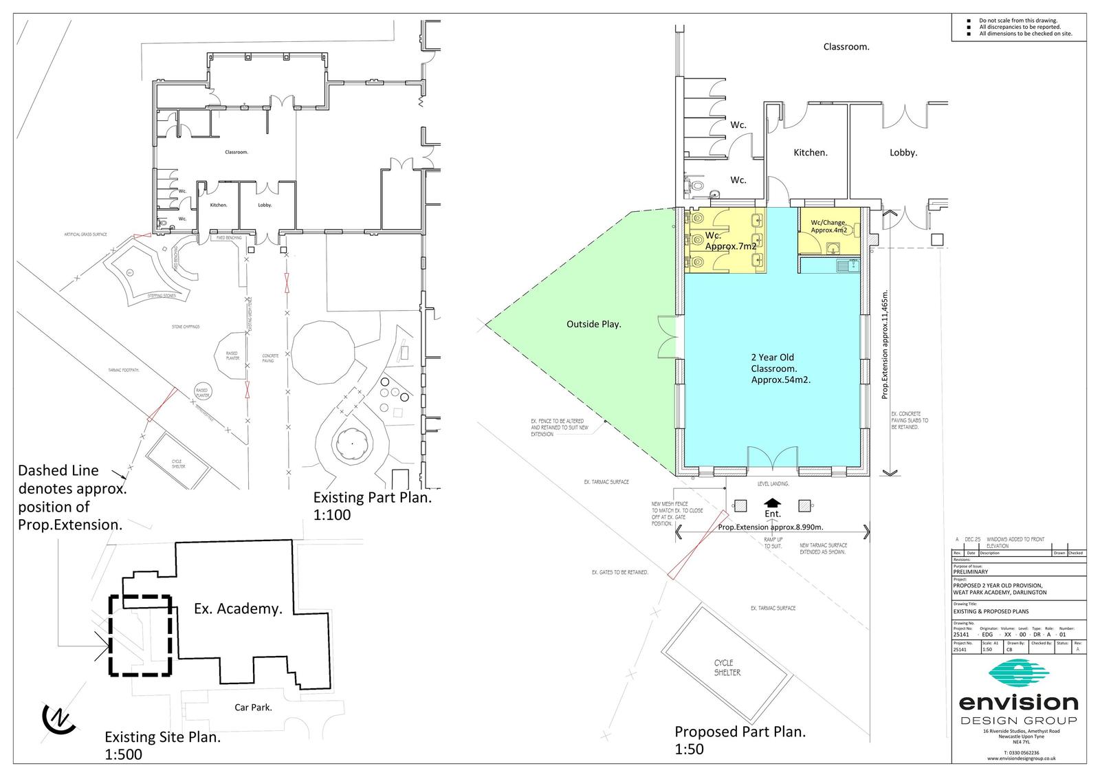
Full proposal

Erection of single storey classroom extension to west elevation together with associated works

Have your say

Your comment matters. Councils must consider every representation that raises material planning considerations.

Write a comment