← Darlington Borough Council

Status

Awaiting decision House extension
Received
05 Jan 2026
New homes
0

Full proposal

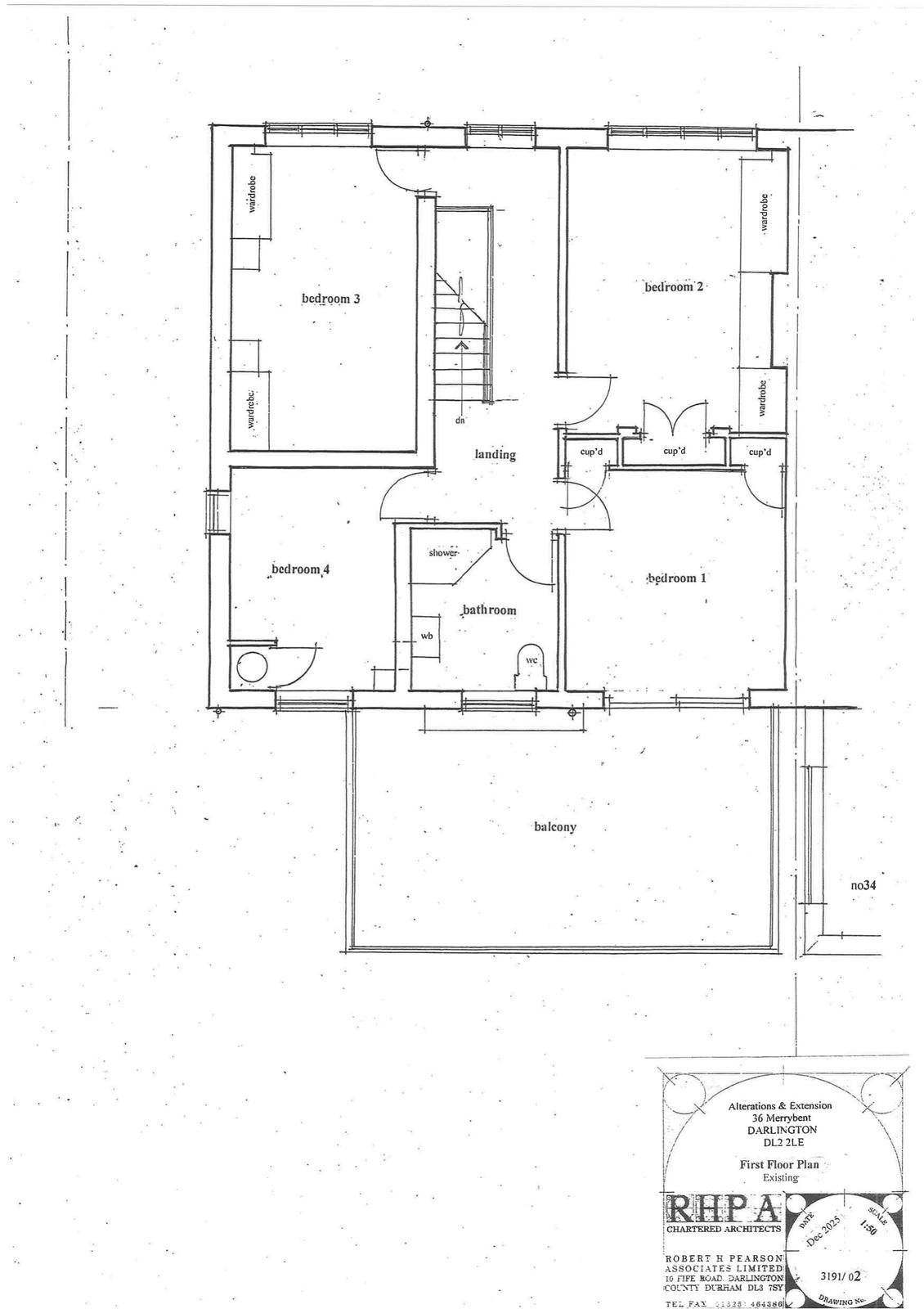
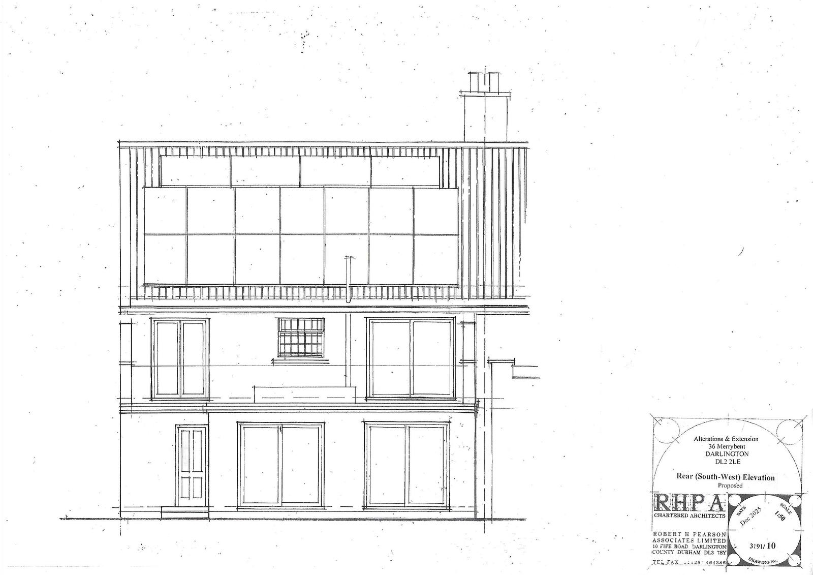
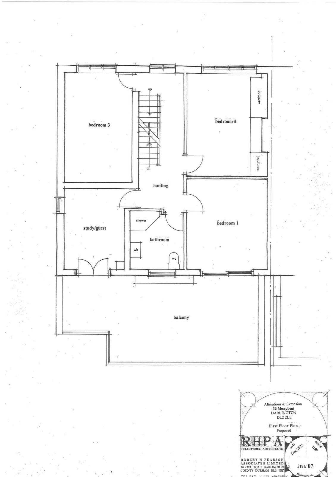
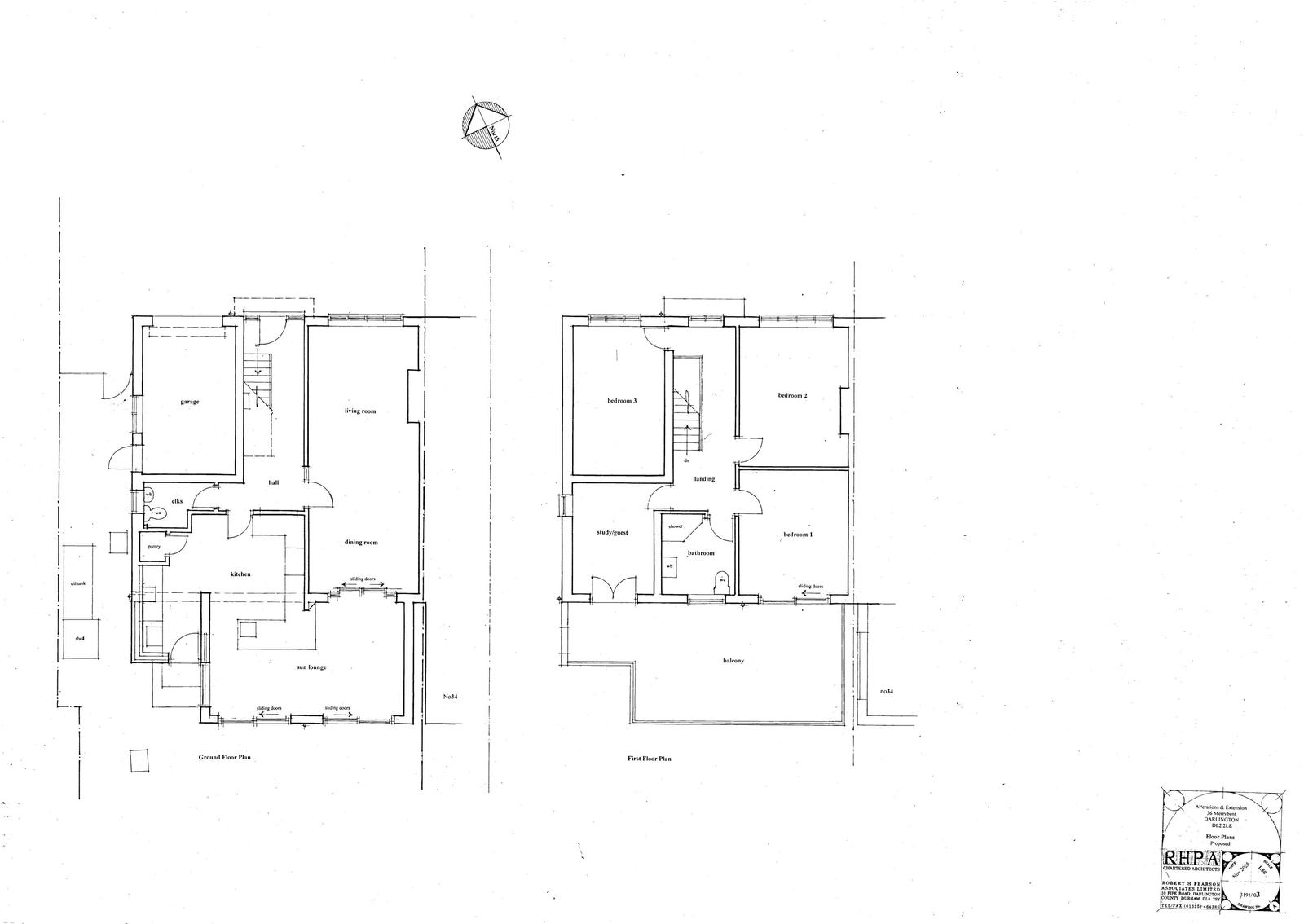
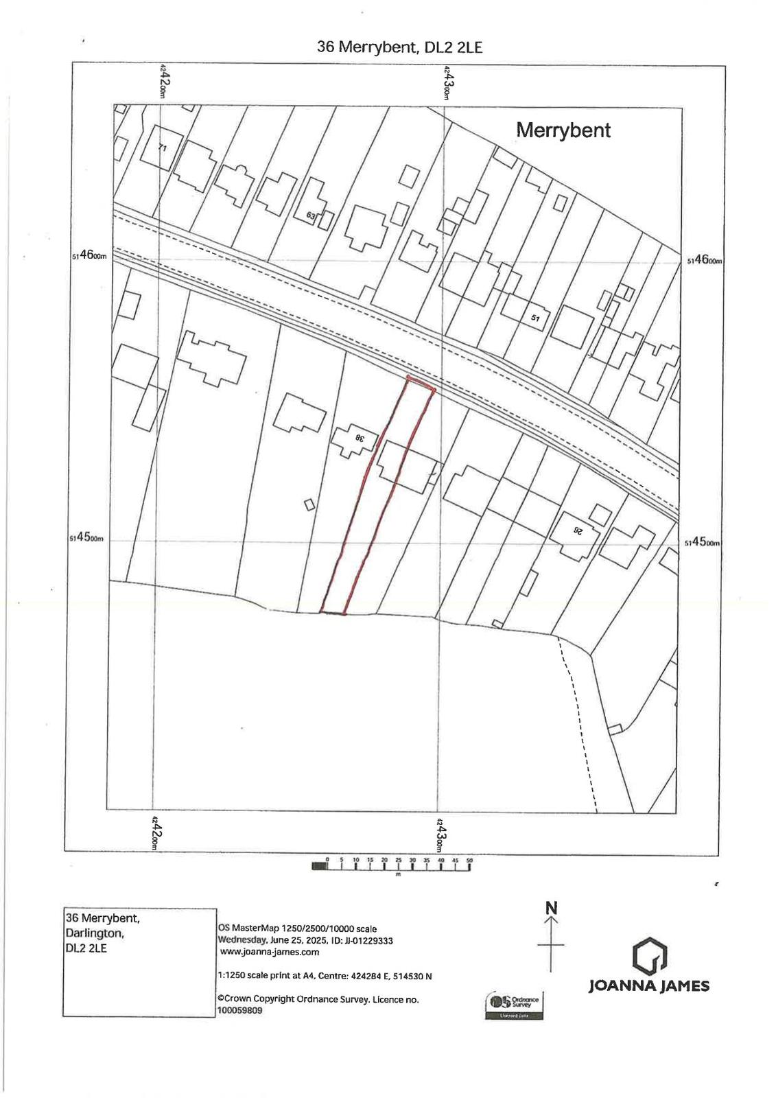
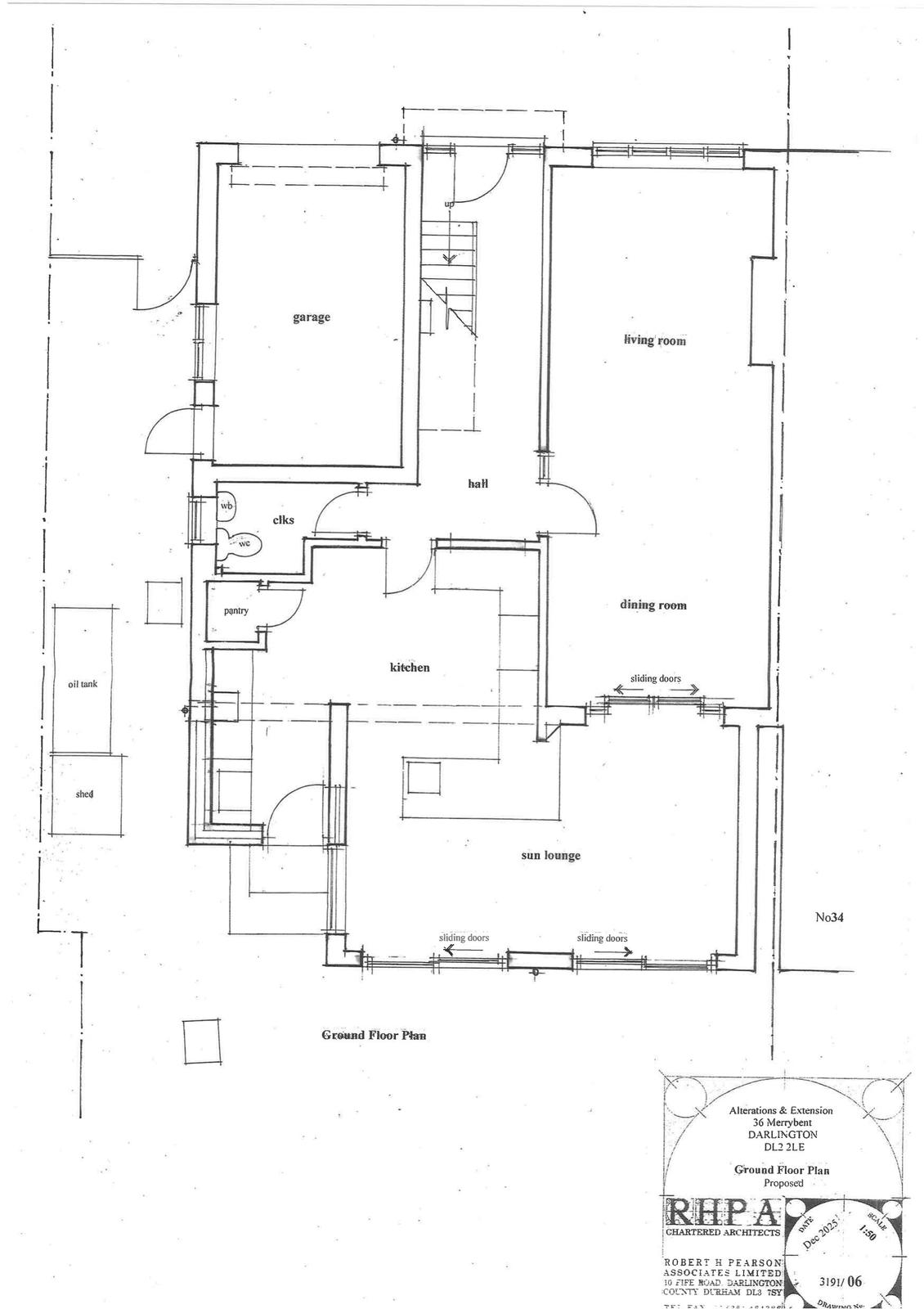
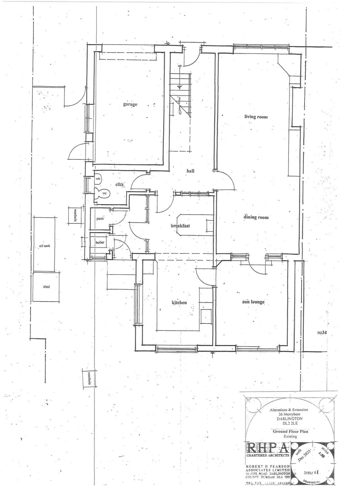
Erection of a single storey rear extension incorporating alterations and extension to existing balcony, construction of a canopy porch to front elevation and associated alterations to windows and doors

Have your say

Your comment matters. Councils must consider every representation that raises material planning considerations.

Write a comment